ویلای «لوسنت» پوسته سفید مینیمال با فضای دبل هایت برای خانواده | تحلیل معماری در مجله ۲۳گانه

ویلای «لوسنت» در تایلند؛ تضاد سادگی سفید و زندگی پرتحرک یک خانواده گسترده
در حاشیه شهری نزدیک ساحل در تایلند، خانهای سفید و کاملاً مینیمال روی زمینی مسکونی شکل گرفته که در نگاه اول مانند حجمی آرام و خنثی در بافت محله دیده میشود. این آرامش بیرونی، عمداً بهصورت پوستهای ساده و بیجزئیات طراحی شده تا در طول زمان، پذیرای تزیینات و زندگی ساکنان باشد و توان تطبیق با سلیقه نسلهای مختلف خانواده را حفظ کند.
در مقابل، فضای داخلی بر اساس ایدهای کاملاً متفاوت شکل گرفته است؛ فضایی پویا، چندسطحی و سرزنده که برای یک خانواده گسترده طراحی شده و هدف اصلی آن، حفظ ارتباط چشمی و کلامی بین اعضای خانواده در طول روز است. نشیمن دوارتفاعی، سطوح نیمطبقه، دیدهای مورب و پیوند دائم فضای مشترک با مسیرهای طبقه بالا، این خانه را به بایگانی زندهای از خاطرات و لحظات روزمره تبدیل کرده است؛ خانهای که با گذشت زمان همراه با ساکنان رشد میکند و تغییر مییابد.
خلاصه اطلاعات پروژه
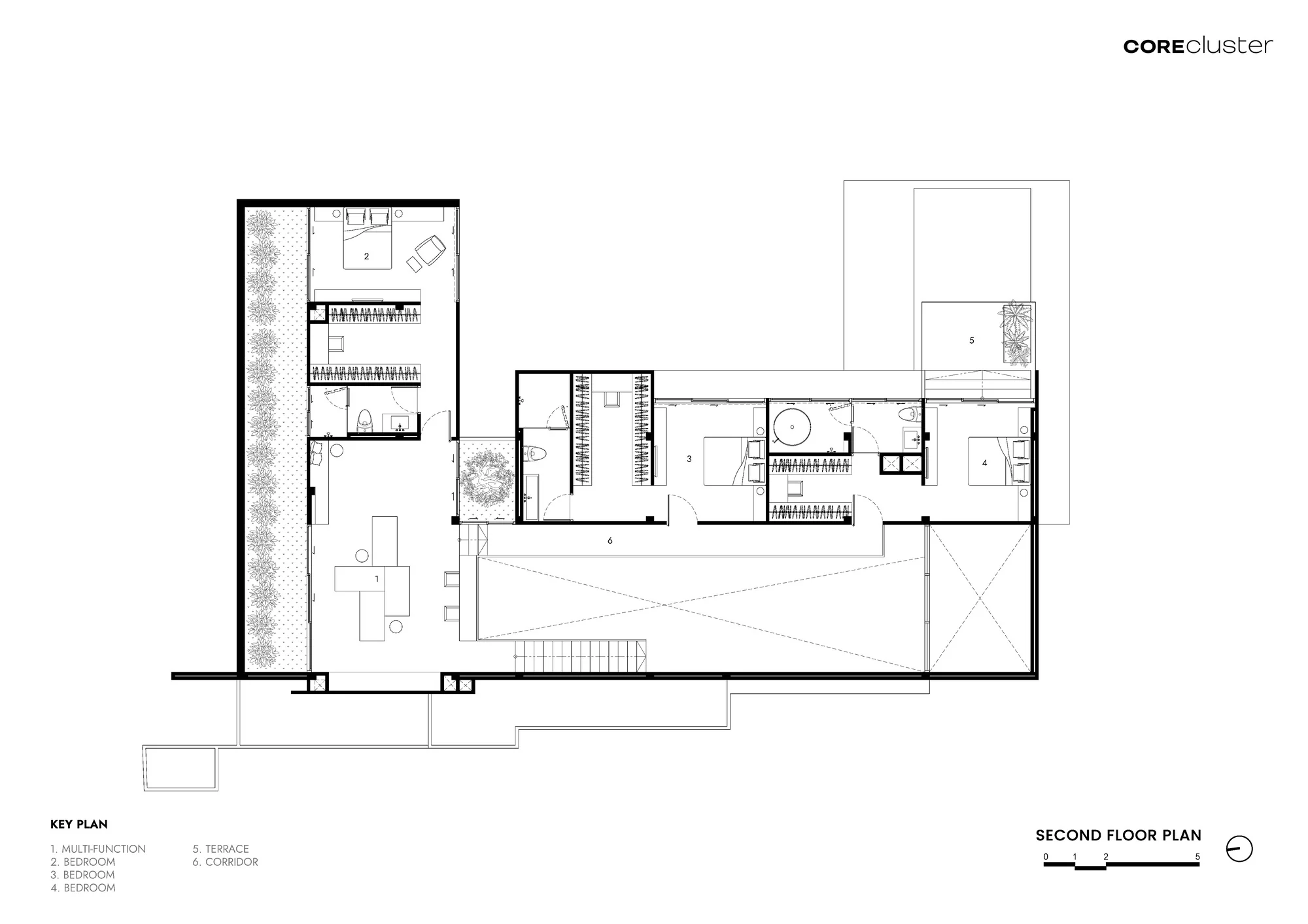
- موقعیت: پاکنام، تایلند
- کاربری: خانه مسکونی برای خانواده گسترده
- معمار: دفتر CORE Cluster
- معمار مسئول: Methaporn Chittrayanont
- زیربنای تقریبی: ۵۰۰ مترمربع
- سال اتمام: ۲۰۲۵
- دستهبندی: خانه مسکونی
ویژگیهای کلیدی معماری
- دوگانهسازی آگاهانه بین بیرون آرام و درون پویا
پوسته بیرونی خانه با دیوارهای سفید، سطوح یکدست و بازشوهای کنترلشده، تصویری بسیار ساده و خنثی ارائه میکند؛ در حالی که فضای داخلی با تنوع سطوح، ارتفاعها و دیدهای متقاطع، کیفیتی پرتحرک و سرزنده دارد. این تضاد، انتخابی آگاهانه برای تفکیک «چهره شهری» و «زندگی روزمره» ساکنان است. - تمرکز بر فضای مشترک مرکزی بهعنوان قلب خانه
ایده اصلی طراحی، پاسخ به این پرسش بوده که «چطور اعضای خانواده بتوانند در طول روز با هم در ارتباط بمانند؟». نتیجه این سوال، شکلگیری یک فضای مشترک بزرگ در مرکز خانه است که نشیمن و غذاخوری را در قالب یک فضای مشترک دوارتفاعی و نیمسطحی در خود جمع میکند. - تعریف مرزها با اختلاف تراز بهجای دیوارهای فیزیکی
سطح نشیمن و غذاخوری با یک اختلاف تراز (split-level) از هم جدا شدهاند؛ بدون اینکه دیوار یا پارتیشن فیزیکی بینشان وجود داشته باشد. این راهحل، هم پیوستگی فضایی را حفظ میکند و هم مرزبندی عملکردی را بهصورت ظریف و خوانا شکل میدهد. - حجم دوارتفاعی و ارتباط بصری با راهروی طبقه بالا
در مرکز خانه، فضایی دوارتفاعی طراحی شده که دید مستقیم به راهروی طبقه دوم را فراهم میکند. اعضای خانواده در حالی که در راهرو و اتاقها حرکت میکنند، با نشیمن و فضای مشترک در ارتباط بصری هستند و احساس تعلق به یک فضای مشترک واحد تقویت میشود. - رویکرد «حداقل لازم» در مصالح و دکوراسیون
بهدلیل بودجه محدود، اصل «minimum necessary» یا حداقل لازم برای انتخاب مصالح و عناصر دکوراتیو در نظر گرفته شده است. دیوارهای ساده و سفید، کفهای خنثی و جزئیات حداقلی، هزینهها را کنترل کرده و بستر مناسبی برای نور طبیعی و تزیینات آینده ساکنان فراهم کرده است. - طراحی اقلیمی با سایبان عمیق و سازماندهی بازشوها
جهتگیری ساختمان، عمق پیشآمدگی بامها و جایگذاری پنجرهها روی نما بهگونهای انتخاب شده که نور روز حداکثر استفاده را داشته باشد، بدون اینکه خانه در معرض مستقیم تابش شدید و گرمای اضافی قرار گیرد. این ترکیب، کیفیت آسایش حرارتی و بصری را ارتقا میدهد و نیاز به نور مصنوعی در روز را کاهش میدهد.
توضیحات ساختار معماری و سازماندهی فضاها
چیدمان فضایی خانه بر پایه یک ایده ساده اما قدرتمند شکل گرفته است؛ تمرکز همه چیز بر «فضای مشترک» که قلب زندگی خانوادگی محسوب میشود. در طبقه همکف، فضای نشیمن و غذاخوری در امتداد هم قرار گرفتهاند، اما با اختلاف تراز، مرز نرم بین این دو عملکرد تعریف شده است. اعضای خانواده، در حالی که در دو سطح متفاوت نشستهاند، همچنان در یک قاب فضایی مشترک حضور دارند.
دور تا دور این فضای مرکزی، فضاهای دیگر خانه سازماندهی شدهاند؛ اتاقها، مسیرها و فضاهای خدماتی هرکدام ارتباطی مستقیم یا غیرمستقیم با این نقطه قلبی دارند. حجم دوارتفاعی در مرکز، بهواسطه پنجره بزرگ رو به حیاط، نور روز را عمیقاً وارد خانه میکند و در عین حال، دیدی وسیع به فضای سبز بیرون میدهد؛ بهگونهای که مرز داخل و خارج نرم و لغزان احساس میشود.
در طبقه بالا، راهروی طولی مانند بالکنی داخلی در امتداد فضای دوارتفاعی کشیده شده است. این راهرو هم مسیر دسترسی به اتاقهاست و هم جبههای برای ارتباط بصری با نشیمن. هر بار که یکی از اعضای خانواده از این راهرو عبور میکند، بهطور طبیعی با فضای مشترک ارتباط چشمی برقرار میشود و مفهوم «خانه» نه بهعنوان اتاقهای جدا، بلکه بهعنوان یک منظومه واحد تجربه میشود.
پوسته بیرونی از سطوح سفید و یکدست تشکیل شده که گاهی با بریدگیها و عقبنشینیها، سایبان و سکو برای فضای بیرونی میسازند. پیشآمدگیهای عمیق بام، هم از نفوذ مستقیم آفتاب جلوگیری میکنند و هم به نما عمق و سایه میبخشند. بازشوهای افقی ممتد در جبهه رو به حیاط، پیوند قوی بین فضای داخل و فضای سبز جلوی خانه ایجاد کردهاند.
رویکرد «حداقل لازم» در مصالح به این معناست که هیچ عنصر اضافی صرفاً برای نمایش به کار نرفته است. دیوارهای سفید ساده، سقفهای صاف، کفهای یکدست و مبلمان با خطوط خالص، پسزمینهای آرام ایجاد میکنند تا زندگی روزمره، حضور انسان و جزئیات کوچک دکوراتیو بهتدریج نقش اصلی را در فضا بهعهده بگیرند. این سادگی، در عین کاهش هزینهها، فضای قابلتغییری را برای آینده خانواده فراهم کرده است.
با گذر زمان، این خانه قرار است به ظرفی برای خاطرات جمعی تبدیل شود؛ ظرفی که در آن، جشنها، دورهمیها، تغییر سلیقه نسلها و حتی تبدیل عملکرد بعضی فضاها، بدون نیاز به مداخلههای سنگین معماری، قابل مدیریت است. انعطافپذیری فضایی و خنثی بودن متریالها، این امکان را فراهم میکند که خانه همراه با خانواده رشد کند.
معرفی پلتفرم ۲۳گانه
مجله معماری ۲۳گانه فضایی تخصصی برای تحلیل پروژههای معماری ایران و جهان است؛ جایی که هر پروژه، فراتر از چند تصویر، از منظر سازماندهی فضا، بستر، سازه و تجربه زیسته بررسی میشود. در این مجله، خانههای معاصر، فضاهای عمومی، پروژههای آموزشی و فرهنگی با نگاهی تحلیلی و قابل استفاده برای معماران و دانشجویان ارائه میشوند.
در کنار مطالب تحلیلی، موتور جستوجوی هوشمند ۲۳گانه امکان دسترسی سریع و هدفمند به مباحث «مقررات ملی ساختمان ایران» را فراهم میکند. این ابزار، جستوجوی بندها، مبحثها و موضوعات اجرایی را سادهتر کرده و به مهندسان، طراحان و ناظران کمک میکند در زمان کوتاه به بندهای مرتبط با پروژه خود برسند.
سوالات متداول درباره خانه «لوسنت»
در این خانه تضاد بین سادگی و پیچیدگی چگونه در معماری ترجمه شده است؟
در پوسته بیرونی، سطوح سفید و بیجزئیات، تصویری کاملاً ساده و مینیمال ایجاد کردهاند؛ در حالی که فضای داخلی با اختلاف تراز، حجم دوارتفاعی، دیدهای متقاطع و مسیرهای باز، کیفیتی پیچیده و سرزنده دارد. این دوگانهسازی باعث میشود بنا از بیرون آرام و از درون پویا باشد.
چطور بدون استفاده از دیوار، مرزبندی بین نشیمن و غذاخوری انجام شده است؟
مرز بین نشیمن و فضای غذاخوری با استفاده از اختلاف تراز کف تعریف شده است. سطح نشیمن و غذاخوری در دو ارتفاع متفاوت قرار دارند؛ بنابراین درک فضایی «دو فضا» ایجاد میشود، بدون آنکه دیوار یا پارتیشن، پیوستگی و ارتباط بصری را قطع کند.
اصل «حداقل لازم» در انتخاب مصالح چه تأثیری بر طراحی داشته است؟
در این پروژه، دیوارهای ساده، رنگهای خنثی و حذف دکورهای غیرضروری باعث کاهش هزینه و سهولت اجرا شده است. این رویکرد، در عین صرفهجویی اقتصادی، بستر مناسبی برای نور طبیعی و امکان شخصیسازی فضا توسط ساکنان در آینده فراهم کرده است.
چگونه معماری خانه، ارتباط اعضای خانواده را در طول روز تقویت میکند؟
فضای مشترک مرکزی، حجم دوارتفاعی و راهروی طبقه بالا بهگونهای طراحی شدهاند که اعضای خانواده در حال حرکت بین اتاقها، همیشه در تماس بصری با نشیمن و دیگران باشند. این سازماندهی، احتمال دیدن یکدیگر، گفتوگوهای کوتاه و حضور جمعی را افزایش میدهد و خانه را به فضایی واقعاً مشترک تبدیل میکند.
بیوگرافی کوتاه دفتر CORE Cluster
دفتر معماری CORE Cluster استودیویی مستقر در تایلند است که تمرکز آن بر معماری مسکونی معاصر و خانههایی با سازماندهی فضایی خلاقانه است. در پروژههای این دفتر، معمولاً تضاد بین پوسته آرام و فضای داخلی پویا، توجه به نور طبیعی، و استفاده از متریالهای خنثی و کمجزئیات بهچشم میخورد.
در کنار خانه «لوسنت»، پروژههای دیگری نیز در کارنامه این دفتر به چشم میخورند که در آنها، مفاهیمی مانند حیاط مرکزی، فضاهای دوارتفاعی، و پیوند بین زندگی روزمره و ساختار فضایی، محور اصلی طراحی هستند. این رویکرد، CORE Cluster را به یکی از چهرههای قابل توجه در معماری مسکونی معاصر تایلند تبدیل کرده است.
جمعبندی؛ نکات الهام بخش خانه «لوسنت» برای معماران
این پروژه یادآوری میکند که میتوان با حداقل ابزارهای فرمی و متریالی، حداکثر کیفیت فضایی و زندگی اجتماعی را ایجاد کرد. بیرونی آرام و درونی پرتحرک، فضای مشترک دوارتفاعی، مرزبندی با اختلاف تراز و رویکرد «حداقل لازم» در مصالح، مجموعهای از تصمیمهای طراحی هستند که با هم، خانهای انعطافپذیر و آیندهنگر برای یک خانواده گسترده خلق کردهاند.
برای معماران و دانشجویان، خانه «لوسنت» نمونهای است از اینکه چگونه یک سوال ساده – حفظ ارتباط بین اعضای خانواده در طول روز میتواند به محور اصلی شکلگیری پلان، مقطع، نما و حتی انتخاب مصالح تبدیل شود؛ و چطور یک خانه میتواند نه فقط محل سکونت، بلکه ظرفی برای ذخیره و ساختن خاطرات مشترک باشد.

































