logo
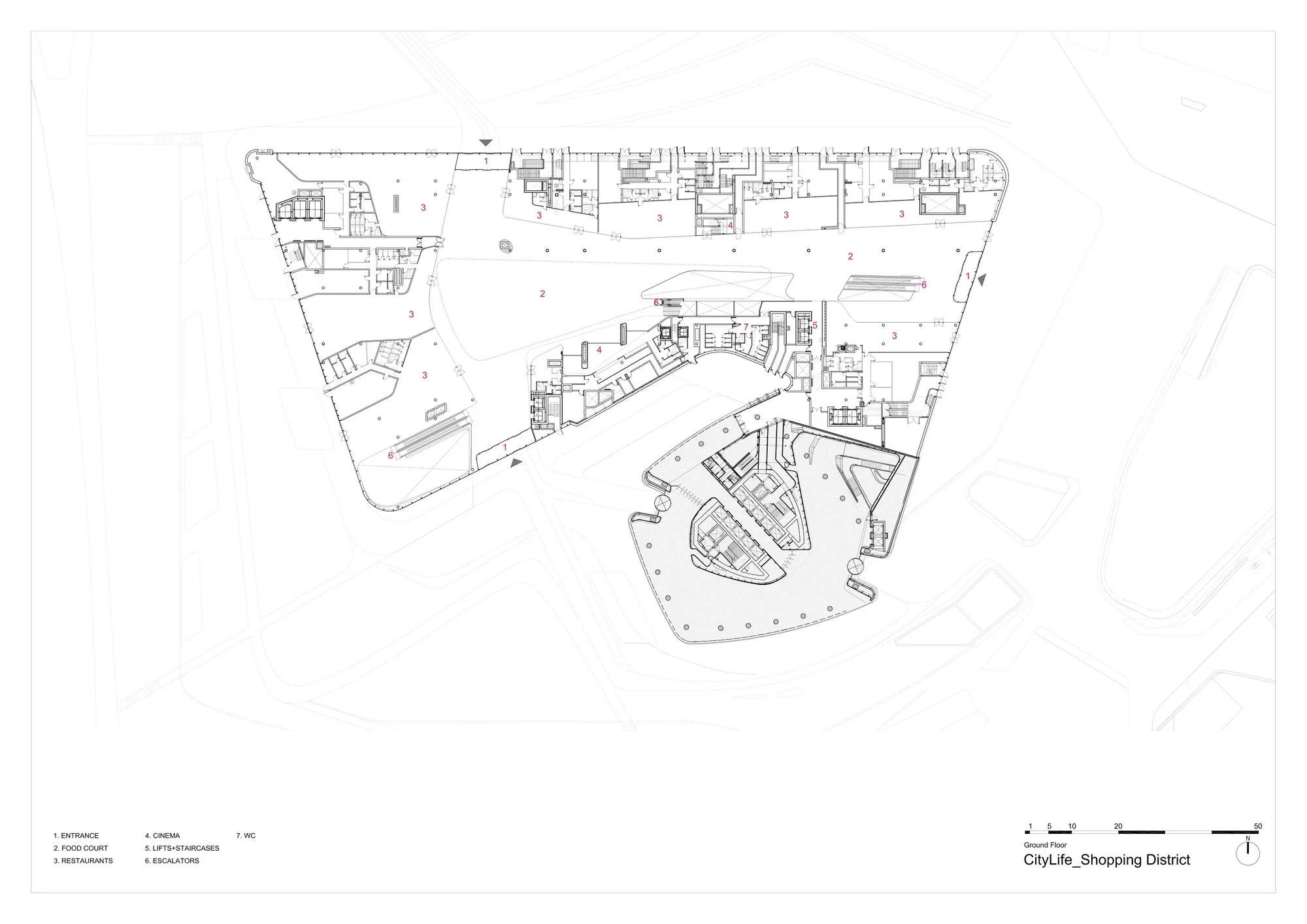
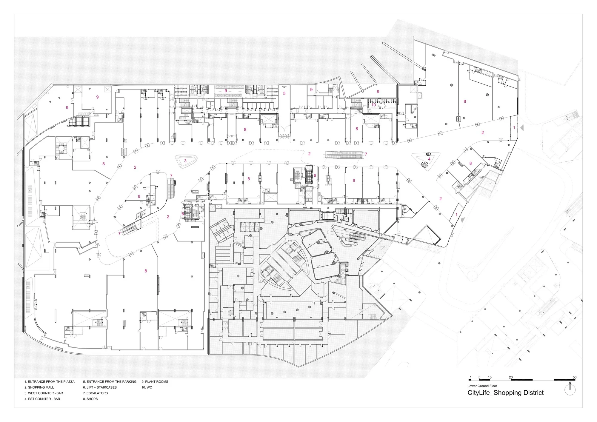
۲. معماری سیتی‌لایف میلان؛ مرکز خریدی با فرم سیال و فضای داخلی بامبویی شاهکار دیگری از زاها حدید.