
مرکز دادهٔ ZED Ishikari در شهر ایشیکاری، منطقه هوکایدو ژاپن، نمونهای برجسته از طراحی صنعتی معماری پایدار است که با استفاده از انرژی ۱۰۰٪ تجدیدپذیر و سیستم های خنککننده نوآورانه، به «صفر انتشار کربن» (Zero Emissions) دست یافته است.
این پروژه با هدف ایجاد کارکردی آینده نگر برای فناوری اطلاعات، همزمان با حساسیت نسبت به بستر طبیعی منطقه، طراحی شده است.
سبک معماری این مرکز داده، صنعتی با تأکید بر شفافیت عملکردی و پایداری محیطی است. حجم ساختمان با پوستهای ساده و عملکردگرا شکل یافته و فضاهای داخلی با تأکید بر کارکرد سرور و تهویه طبیعی طراحی شدهاند. طراحی دغدغهمند برای کاهش اثرات زیستمحیطی نشاندهندهای از ترکیب معماری صنعتی با رویکرد اکولوژیک است.




پلان سایت این مرکز داده حول محور اصلی دریافت و توزیع توان، ذخیره باتری و اتاقهای سرور شکل گرفته است. پنجرههای بزرگ وجود ندارد؛ عملکرد دستگاهها با شبکهسازی فنی و مسیرهای خدماتی تعبیه شده است. مسیر رفتوآمد کارکنان، سرویسهای فنی و تجهیزات با دقت تفکیک شدهاند تا امنیت و عملکرد بهینه حفظ شود. حجم ساختمان در سایت صنعتی مجاور خلیج ایشیکاری مستقر شده و قرارگیری تجهیزات انرژی در محیط پیرامون آن گردش انرژی محلی را ممکن کرده است.



شرکت TAISEI DESIGN Planners Architects & Engineers یکی از دفاتر مطرح ژاپنی در حوزهٔ معماری فنی و صنعتی است که تمرکز ویژهای بر پروژههایی با کارکرد بالا و پایداری زیستمحیطی دارد. این مرکز داده نشاندهنده نگاه آنها به ترکیب فناوری، عملکرد و مسئولیت زیستمحیطی است.
۱. چرا این پروژه «صفر انتشار» نامیده میشود؟
زیرا تمام برق مصرفی آن از منابع تجدیدپذیر تامین میشود و سیستمهایی برای بازیافت گرما و کاهش مصرف طراحی شدهاند.
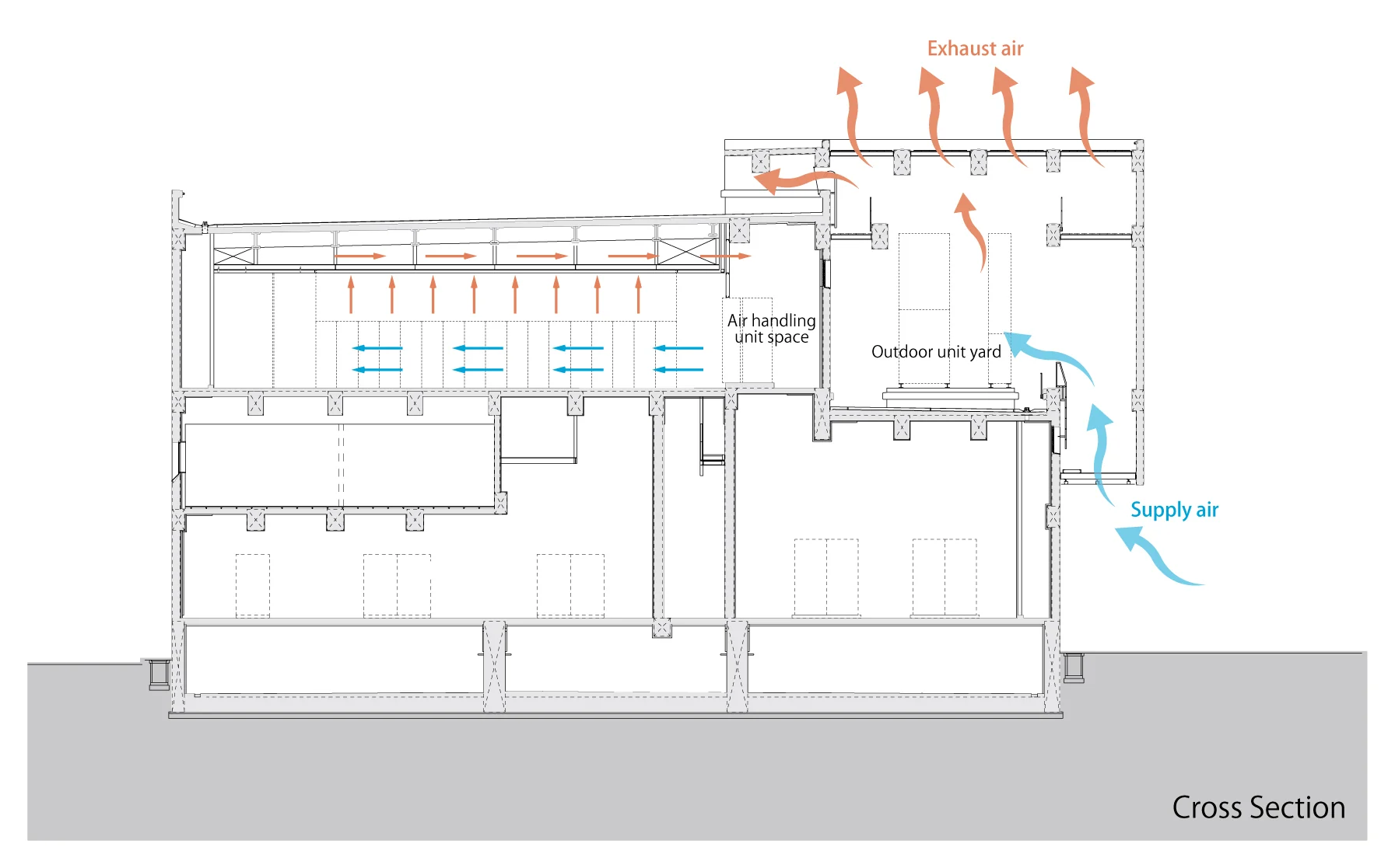
۲. چگونه تهویه طبیعی در مرکز داده میسر شده است؟
با استفاده از هوای بیرون منطقه سرد و سیستم خنککننده مستقیم/غیرمستقیم، که مصرف انرژی را کاهش داده است.
۳. چه ظرفیتی برای ذخیره انرژی در پروژه وجود دارد؟
باتری با ظرفیت حدود ۶ مگاواتساعت در سایت نصب شده تا پایداری عملیات تأمین شود.
۴. چه ارتباطی میان سایت صنعتی و انرژی محلی برقرار شده؟
نیروگاه خورشیدی و بادی مجاور سایت انرژی تولید میکنند و مرکز داده در همان منطقه نصب شده تا چرخه تولید–مصرف انرژی محلی تقویت شود.
۵. این پروژه چه تاثیری بر معماری صنعتی دارد؟
نمونهای از طراحی صنعتی با عملکرد بالا است که پایداری، معماری و تکنولوژی را در هم ادغام کرده و الگویی برای مراکز داده آینده ارائه میدهد.







سامانه مقررات ملی ساختمان، بستری هوشمند برای دسترسی مهندسان و طراحان کشور به تمامی مباحث مقررات ملی ساختمان است. این سامانه امکان جستجوی ساده و رایگان در بین ضوابط نظام مهندسی ساختمان را فراهم میکند و ابزار کارآمدی برای طراحی و نظارت محسوب میشود.










