ویلای سیپات و ساو در بالی؛ طراحی با پوسته شیشه ای و حیاط مرکزی | تحلیل معماری در مجله ۲۳گانه

ویلای «سیپات و ساو» در بالی؛ طراحی با پوسته شیشه ای و حیاط مرکزی | تحلیل معماری در مجله ۲۳گانه
در یکی از محله های پررفت و آمد جزیره بالی، خانهای طراحی شده که تصویر رایج «ویلای اجارهای» را زیر سؤال میبرد. در بسیاری از ویلاهای اجارهای، همهچیز حول نمایش تجمل و لوکس بودن میچرخد، اما در این پروژه، تمرکز اصلی روی فاکتور بسیار ارزشمندتری است؛ حس خانه بودن، صمیمیت و امکان زندگی روزمره.
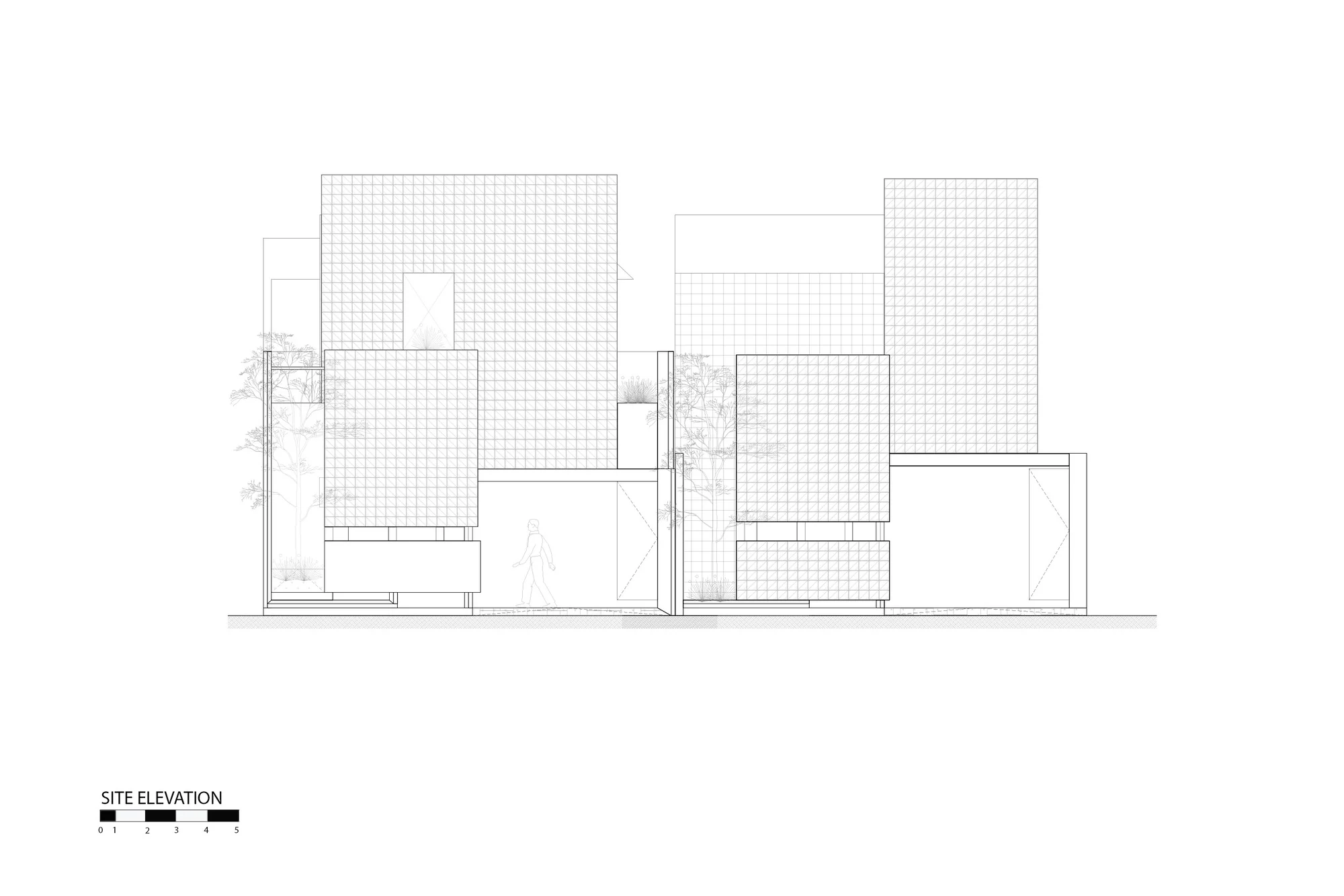
پوستهای از بلوک های شیشهای نیمه شفاف، حجم فشرده و دوطبقه خانه را در بر گرفته و درون آن، مجموعهای از فضاهای پیوسته، نورهای کنترلشده و ویوهای حساب شده به حیاط و استخر شکل گرفته است. زمین کوچک، محدودیت دید و کاربری اجارهای بهجای تبدیل شدن به مانع، به نقطه شروع خلاقیت معماران تبدیل شده است.
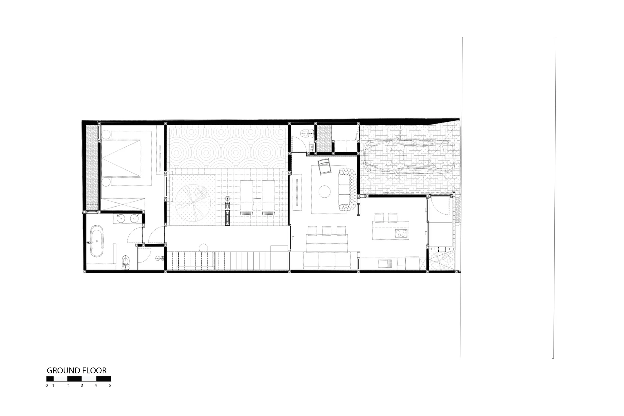
مسیر حرکت در خانه از الگوی معمول فاصله میگیرد؛ ورود از یک پیشفضای روباز با آسمان قابل رؤیت آغاز میشود، سپس کاربر مستقیماً وارد آشپزخانه و بعد به نشیمن و حیاط استخر هدایت میشود. این ترتیب، از همان لحظه اول فضایی صمیمی و بیتکلف میسازد؛ فضایی که بیشتر شبیه خانهای شخصی است تا یک ویلای نمایشی برای گردشگران.
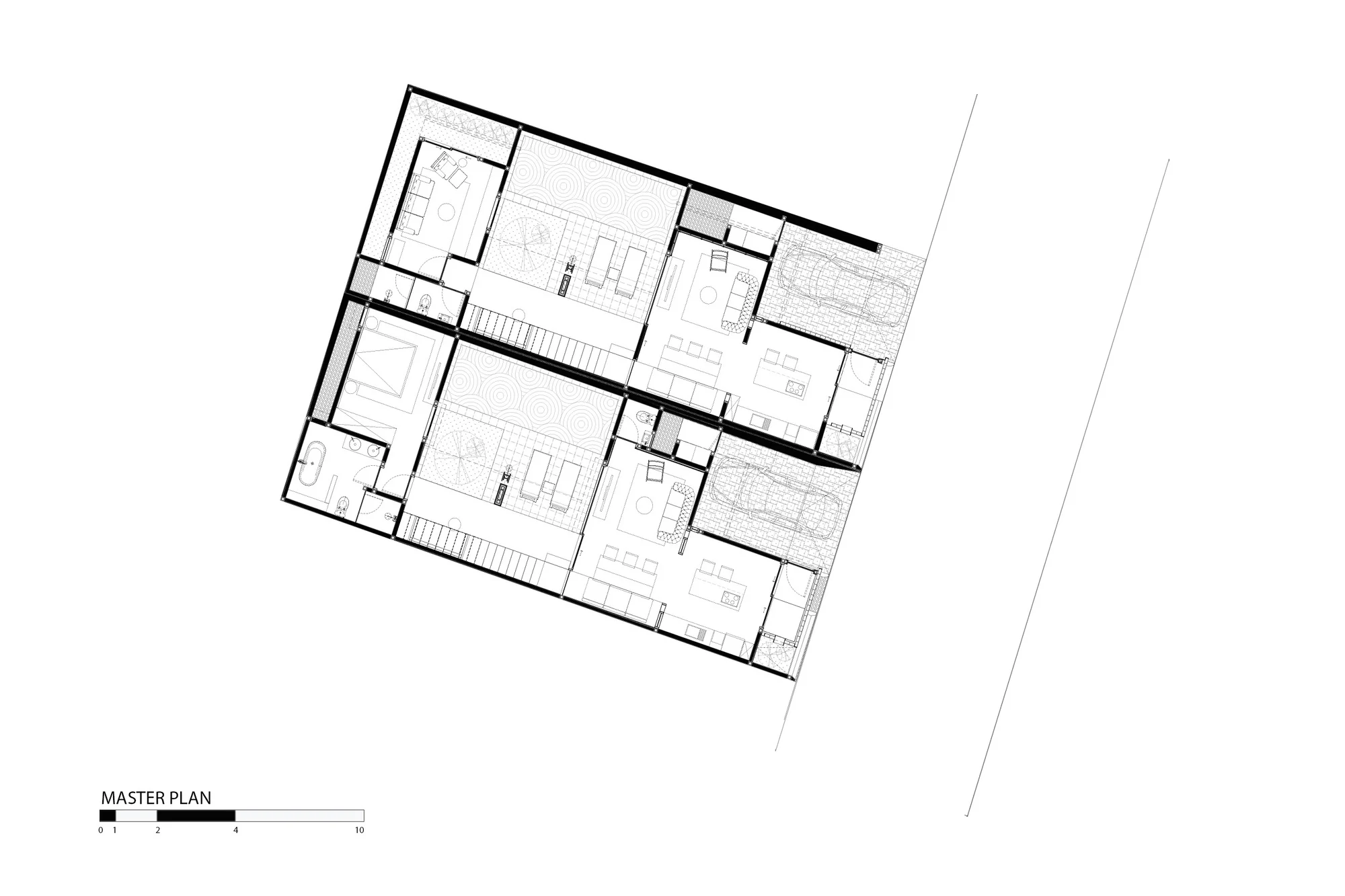
خلاصه اطلاعات پروژه
- موقعیت: بالی، اندونزی
- کاربری: ویلای مسکونی اجارهای (Pool Villa برای اقامت کوتاهمدت)
- معمار: دفتر Arkana Architects
- مساحت تقریبی سایت: حدود ۱۵۰ مترمربع
- زیربنای تقریبی: حدود ۱۹۰ تا ۲۵۰ مترمربع در دو طبقه
- سال اتمام پروژه: ۲۰۲۵
- برخی برندهای متریال و تجهیزات: Mulia Glass Block، Tostem، Toto



ویژگیهای کلیدی معماری
- پوسته بلوک شیشهای بهعنوان زبان اصلی نما
استفاده گسترده از بلوکهای شیشهای نیمهشفاف، پوستهای روشن و نرم ایجاد کرده که نور طبیعی را فیلتر میکند، حریم داخلی را حفظ میکند و در عین حال حضور زندگی درون را بهصورت سایه و سیلوئت به بیرون منتقل میکند. در شب، خانه مانند منبع نوری ملایم در بافت اطراف دیده میشود. - تعریف ویلای اجارهای با حس خانه شخصی
بهجای شروع با یک لابی رسمی، کاربر بعد از ورود، مستقیماً وارد آشپزخانه میشود؛ جایی که یک جزیره ساده مرکز فضا را شکل میدهد. این انتخاب، از نظر رفتاری و روانی، حس «خانه» را تقویت میکند؛ جایی که غذا، گفتگو و زندگی روزمره در قلب فضا جریان دارد، نه فقط تصویر لوکس بودن. - حیاط میانی و استخر بهعنوان قلب پروژه
استخر در حیاط داخلی قرار گرفته و در نقش فضای باز مرکزی عمل میکند. این حیاط، بین بخش عمومی جلو و اتاقخوابهای عقب و طبقه بالا قرار گرفته و مانند یک فضای واسط، نور، هوا و دید را بین آنها پخش میکند. مسیر پله که در امتداد استخر بالا میرود، ارتباط عمودی را به تجربهای پیوسته با آب و آسمان تبدیل کرده است. - پیوند نرم بین فضاهای عمومی داخلی
آشپزخانه، ناهارخوری و نشیمن بهصورت یک توالی پیوسته در امتداد هم قرار گرفتهاند. جداسازی این فضاها نه با دیوارهای سخت، بلکه با پارتیشنی از چوب و شیشه فلوتشده انجام شده است؛ بهطوری که مرز عملکردی مشخص است اما نور و دید قطع نمیشود. این نحوه تقسیمبندی، برای زمینهای کوچک یک ابزار مؤثر برای حفظ سیالیت فضایی است. - ترکیب شفافیت، نیمهشفافیت و سطوح صلب
بلوک شیشهای، شیشه شفاف و سطوح مات کنار هم قرار گرفتهاند؛ این سهگانه باعث میشود نما و فضاها فقط «باز» یا «بسته» نباشند، بلکه درجات مختلفی از حریم و دید شکل بگیرد. این رویکرد، کنترل دقیقتری بر نور، اقلیم و حریم خصوصی فراهم کرده است. - نگاه معاصر به اقلیم تروپیکال
در بسیاری از پروژههای تروپیکال، سقفهای شیبدار و جزئیات تزئینی غالب هستند؛ در این ویلا، حجم ساده، هندسی و فشرده است. تمرکز روی تناسبات، سایهاندازی، تهویه طبیعی و انتخاب متریال صادق، پروژه را به نمونهای معاصر از سکونت تروپیکال تبدیل کرده است؛ بدون وابستگی به کلیشههای تزئینی.






معرفی پلتفرم ۲۳گانه
مجله معماری ۲۳گانه با تمرکز بر معرفی پروژههای شاخص معماری در ایران و جهان، سعی میکند تصویر کامل تری از روند طراحی تا اجرای یک پروژه به مخاطب حرفهای ارائه دهد. هدف فقط نمایش تصاویر چشمنواز نیست؛ بلکه تحلیل فضا، کانسپت، سازمان دهی پلان، متریال و رابطه بنا با بستر است.
در کنار پروژههایی مانند خانه سیپات و ساوه در بالی، محتوای ۲۳گانه به معماران، دانشجویان و فعالان حوزه ساختوساز کمک میکند تا با شناخت بهتر از اقلیم، اقتصاد ساخت، رفتار کاربر و تکنیکهای طراحی، تصمیمهای دقیقتری برای پروژههای خود بگیرند.
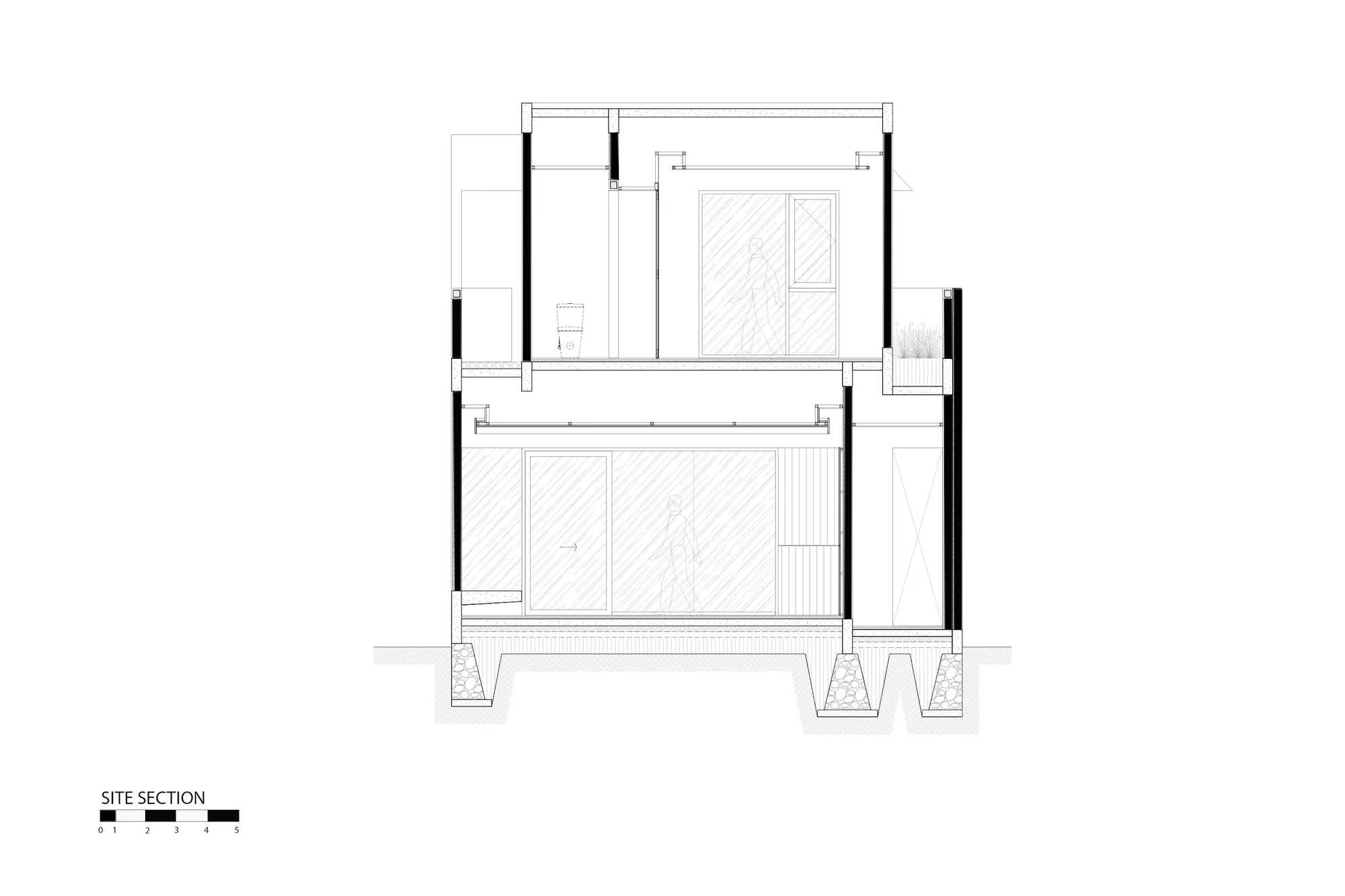
توضیحات ساختار معماری و سازمان دهی فضاها
ورود به خانه با یک پیشفضای روباز آغاز میشود؛ فضایی که با بلوک های شیشهای احاطه شده و سقف آن باز است. نور خورشید بهصورت فیلترشده وارد این حیاط کوچک میشود و در روزهای بارانی، صدا و تصویر باران قبل از ورود به فضای داخلی تجربه میشود. این پیشفضا نقش «منطقه گذار» بین خیابان و داخل خانه را بر عهده دارد و ذهن کاربر را برای ورود به فضای آرامتر آماده میکند.
پس از گذر از این بخش، آشپزخانه بهعنوان اولین فضای اصلی ظاهر میشود. جزیره آشپزخانه محور این فضاست و امکان تعامل، آمادهسازی غذا و گفتگو را فراهم میکند. این انتخاب، ساختار روانی خانه را تعریف میکند؛ جایی که زندگی واقعی در مرکز است، نه فقط نما و دکور.
در امتداد آشپزخانه، فضای ناهارخوری و سپس نشیمن قرار گرفتهاند. پارتیشن چوبی همراه با شیشه فلوتشده بین آنها قرار دارد؛ این پارتیشن، تفکیک عملکردی ایجاد میکند اما مسیر نور و دید را محدود نمیکند. حاصل این ترکیب، فضایی است که هم خوانا و قابل درک است و هم حس باز بودن و جریان آزاد را حفظ میکند.
در میانه پلان، حیاط باز با استخر جای گرفته است. این حیاط بهطور همزمان منبع نور طبیعی، فضای تفریحی و عنصر اصلی سازماندهی است. نشیمن به سمت استخر باز میشود و مرز داخل و خارج در این نقطه بسیار نرم است. پله کنار استخر، حرکت به طبقه بالا را با دیدهای متفاوت به آب، حیاط و بلوکهای شیشهای همراه میکند و هر بار رفتوآمد را به تجربهای فضایی تبدیل میکند، نه فقط تغییر تراز.
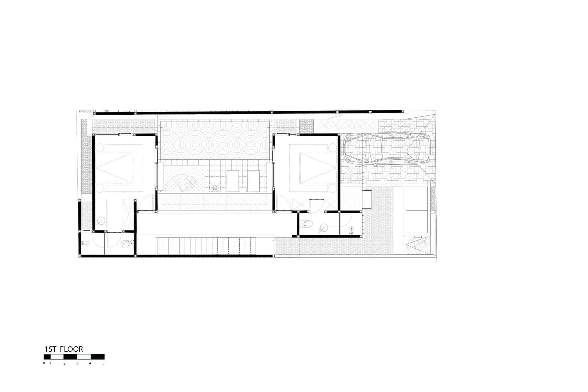
در طبقه بالا، اتاقخوابها و فضاهای خصوصی حول این حیاط و فضای خالی مرکزی شکل گرفتهاند. پنجرهها و بازشوها بهگونهای طراحی شدهاند که نور طبیعی کنترلشده وارد فضا شود و در عین حال حریم کاربران حفظ شود. در برخی بخشها، بلوک شیشهای و شیشه نیمهشفاف جایگزین بازشوهای کامل شده تا نور و حریم همزمان تأمین شود.
از بیرون، ترکیب بلوکهای شیشهای و سطوح صلب، به حجم عمق میدهد. در طول روز، نما ترکیبی از بافت شیشه و سایه است و در شب، نور داخلی مانند لایهای نرم در پس زمینه بلوکها دیده میشود. این تغییر چهره در شب و روز، پروژه را در مقیاس شهری نیز خوانا و قابل تشخیص میکند.
در مجموع، خانه سیپات و ساوه نشان میدهد که چگونه میتوان در یک زمین کوچک و با کاربری اجارهای، فضایی ساخت که هم کارکردی، هم صمیمی و هم از نظر معماری دقیق و فکرشده باشد.






بیوگرافی کوتاه دفتر معماری Arkana Architects
دفتر معماری Arkana Architects در بالی فعالیت میکند و تمرکز خود را بر پروژههای مسکونی و ویلایی معاصر گذاشته است؛ پروژههایی که بهشدت به اقلیم، نور طبیعی، تهویه و تجربه کاربر حساس هستند. رویکرد این دفتر بر سادگی فرمی، استفاده صادقانه از متریال و ترکیب سنجیده فضاهای داخلی و بیرونی است.
در کارهای Arkana میتوان حضور پررنگ فضاهای نیمهباز، حیاطهای داخلی و لایهبندی دقیق نور را دید. پروژههایی مانند ویلاهای معاصر دیگر این دفتر در بالی نشان میدهد که برای این معماران، معماری فقط تولید یک تصویر نیست؛ بلکه ساختن بستری پایدار برای زندگی روزمره است. خانه سیپات و ساوه نمونهای روشن از این دیدگاه است؛ خانهای که در عین جمعوجور بودن، تجربه فضایی غنی و چندلایهای را به کاربر ارائه میدهد.














سوالات متداول درباره خانه سیپات و ساو
چه چیزی خانه سیپات و ساوه را از دیگر ویلاهای اجارهای در بالی متمایز میکند؟
مهمترین تفاوت این پروژه تمرکز بر حس سکونت واقعی است. ترتیب فضاها، شروع مسیر از آشپزخانه، حضور حیاط مرکزی و انتخاب متریالها همگی بهگونهای است که کاربر احساس کند وارد خانهای شخصی شده، نه فقط یک فضای لوکس موقت برای عکاسی و استراحت کوتاه.
در این ویلا تعادل میان حریم خصوصی و ارتباط با محیط بیرون چگونه تأمین شده است؟
پوسته بلوک شیشهای اجازه میدهد نور و سایهها به بیرون منتقل شوند، اما جزئیات زندگی داخلی دیده نشود. در داخل نیز، حیاط مرکزی، پارتیشنهای نیمهشفاف و کنترل جهتگیری بازشوها کمک کردهاند تا اتاقخوابها و فضاهای خصوصی در عین دریافت نور و دید مناسب، حریم خود را حفظ کنند.
این پروژه با محدودیت مساحت سایت چگونه برخورد کرده است؟
بهجای تقسیم زمین به فضاهای کوچک و بسته، از یک حیاط مرکزی، فضای خالی عمودی (void)، و پیوستگی دیدها استفاده شده است. حذف راهروهای بیاستفاده، استفاده از متریال نیمهشفاف و ارتباط مستقیم فضاهای داخلی با حیاط باعث شده حس فضایی بزرگتر از متراژ واقعی ایجاد شود.
حیاط استخر چه نقشی در کیفیت فضایی خانه دارد؟
حیاط استخر فقط یک فضای تفریحی نیست؛ این بخش، منبع نور، تهویه طبیعی و محور اصلی سازماندهی است. نشیمن، اتاقها و مسیر پله حول این حیاط شکل گرفتهاند و به همین دلیل، حضور آب، آسمان و فضای باز در تمام مسیر حرکت در خانه احساس میشود.




![صد طراحی برتر، معماری برج سیتی لایف میلان [گرئه معماری زاها حدید] | طرح شماره 13](/_next/image/?url=https%3A%2F%2Fback-api.23gane.com%2Fstorage%2Fblogs%2F69183bfc534c4_15152.jpg&w=1920&q=75)




