معماری آپارتمان سروستان در پاسداران | آرشیتکت : گروه معماری کارابن

ساختمان مسکونی سروستان همراه پلان معماری
پروژه ساختمان مسکونی سروستان واقع در منطقه پاسداران تهران، با طراحی دفتر معماری کارابن، نمونه ای از پاسخ معماری به چالش تراکم شهری، بازتولید فضای سبز و تعامل با محیط شهری است. در شرایطی که این ناحیه با افزایش جمعیت و تراکم رو به رو شده بود، این پروژه تلاش کرد با خلق فضای باز در دل محوطه و انتخاب متریال، تجربهای آرامش بخش در میان فشردگی شهری تهران ارائه دهد.
مشخصات پروژه
- معمار: دفتر معماری کارابن
- موقعیت: تهران، منطقه پاسداران، ایران
- زیربنا: حدود ۲٬۲۸۰ مترمربع
- سال تکمیل: ۲۰۲۰
- کاربری: مسکونی
سبک معماری پروژه
این پروژه را میتوان در چارچوب معماری معاصر خواند که توجه ویژهای به ترکیب محیط شهری، فضای داخلی و فضای سبز داشته است. نمای آجری با شبکهای ساده و روشن، بافت محلی را بازتاب میدهد و فضای باز میانی (حیاط) با حذف دیوار مرزی، پیوند میان ساختمان و شهر را تقویت میکند.





مفاهیم طراحی پروژه
ایدههای بنیادی پروژه عبارتاند از:
- خلق فضای سبز میانی: با هدف انتقال حس آرامش و انرژی طبیعت به ساکنان، همسایگان و عابرین، بنا طوری طراحی شده است که فضای سبز محوطه به چشم آید و حضورش محسوس باشد.
- انتخاب مصالح بومی و پایدار: با توجه به بافت غالب محلی و تأکید بر هویت معماری ایرانی معاصر، آجر بهعنوان متریال اصلی نمای ساختمان انتخاب شد تا ارتباط مستقیمی با زمینه داشته باشد.
- تأمین نور و تهویه در بافت متراکم: در طراحی نما و پلان، تلاش شده است که هم سطح حداکثری برای دریافت نور فراهم شود و هم پوسته ساختمان بهعنوان عنصری هویتساز دیده شود. همینطور، حذف دیوار حیاط به خیابان، ارتباط بصری با فضای سبز را فراهم کرده است.
ویژگیهای کلیدی پروژه
- حذف دیوار مرزی حیاط به خیابان؛ این اقدام امکان ارتباط مستقیم عابر با فضای سبز داخلی را فراهم میکند و تجربهٔ شهری را تقویت مینماید.
- نمای آجری روشن با شبکهای ساده که ضمن نمایان کردن فرم ساختمان، نور و رشد گیاهان را نیز تسهیل میکند.
- بیان فضایی برای واحدهای مسکونی “ناشناخته”: با توجه به اینکه کاربران نهایی واحدها مشخص نبودند، واحدها بهگونهای طراحی شدند که بیشترین انعطاف را داشته باشند و فضاهای عمومی و سرویس مشترک کمینهشدهاند.
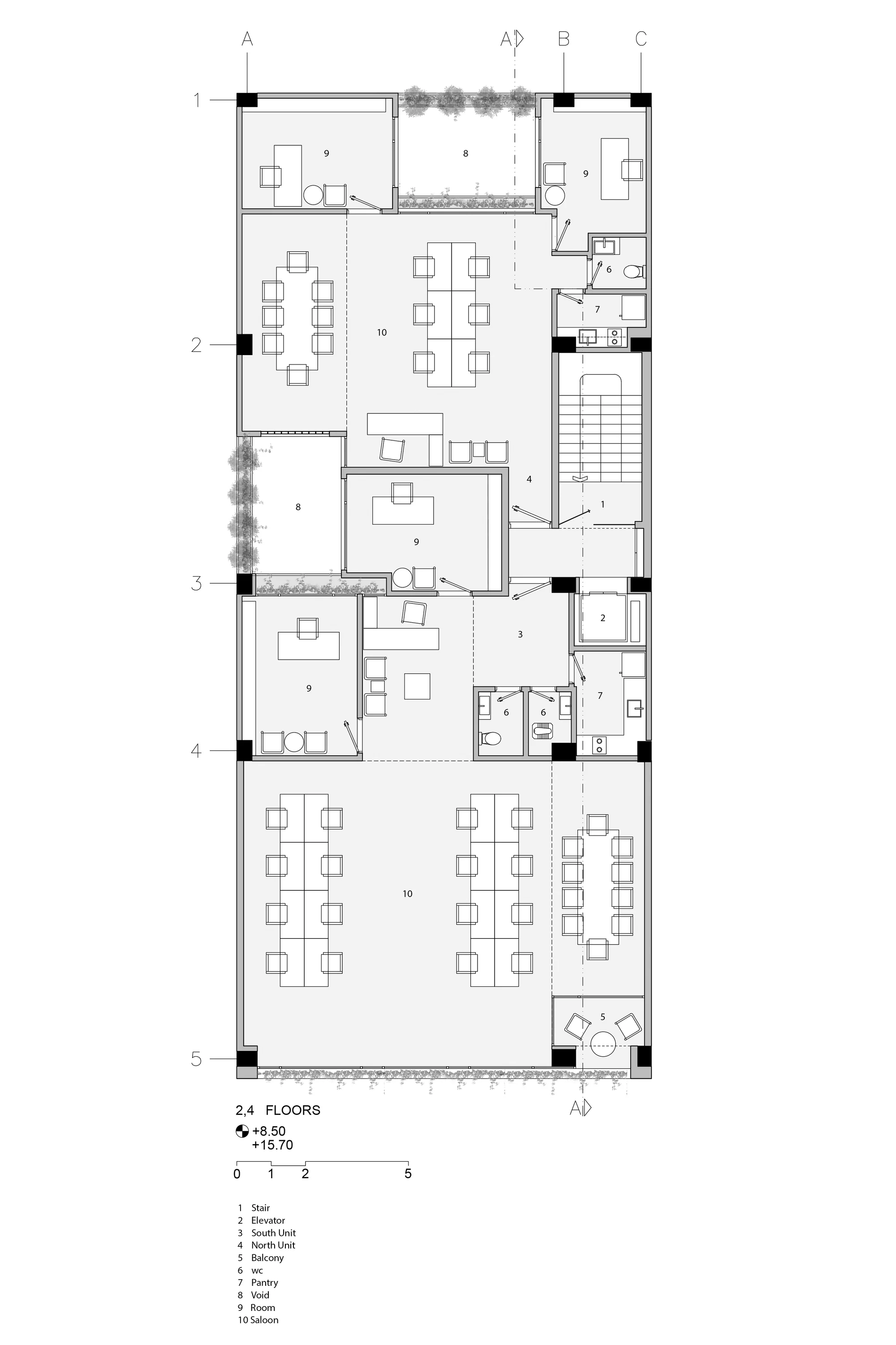
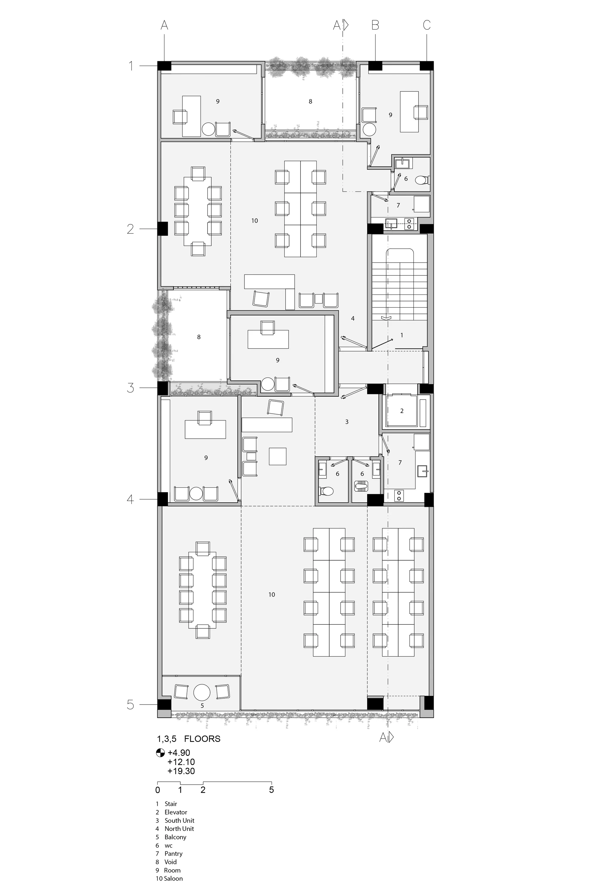
پلان معماری پروژه
پلان پروژه حول محور فضای سبز و باز طراحی شده است. حیاط میانی با دسترسی از خیابان و بدون دیوار مرزی، بهعنوان ترکیبی از فضای عمومی و خصوصی عمل میکند. واحدهای مسکونی پیرامون این حیاط قرار گرفتهاند و پلان آنها انعطافپذیر طراحی شده است، به گونهای که امکان تنظیم فضاها بر اساس نیازهای مختلف فراهم است.



مصالح و متریال استفادهشده
- آجر: نمای بیرونی با استفاده از آجر بومی (Namachin Brick) اجرا شده که بهعنوان عنصر هویتی و پایدار انتخاب گردیده است.
- رنگ روشن نمایی: رنگ روشن نمای آجری بهمنظور کاهش جذب تابش خورشید و بهبود رشد گیاهان در محوطه انتخاب شده است.
- فضای سبز داخلی: در طراحی حیاط و دسترسیها، به رشد و دیده شدن گیاهان برای ساکنان، همسایگان و عابرین توجه ویژه شده است.
بیوگرافی معمار پروژه
دفتر معماری KARABON، با معمار مسئول مهدی پناهی، در تهران فعال است و معماری مسکونی و میانمرتبه با کیفیت فضایی بالا طراحی میکند. ساختار این دفتر بر پایه استفاده از متریال بومی، پاسخگویی به زمینه شهری و ایجاد فضاهای معنادار قرار دارد. پروژه ساختمان مسکونی سروستان یکی از آثار شاخص معاصر این دفتر به شمار میآید.
پرسشهای متداول
۱. چرا حیاط پروژه بدون دیوار مرزی طراحی شده است؟
برای ایجاد ارتباط مستقیم بین فضای سبز داخلی و خیابان، افزایش حس عمومی بودن فضا و ارتقای کیفیت شهری.
۲. انتخاب آجر بهعنوان متریال اصلی نما چه مزیتی داشته است؟
آجر مقیاسی بومی دارد، دوام بالا دارد، با زمینه شهری تهران هماهنگ است و امکان خلق جلوه بصری مورد نظر پروژه را فراهم کرده است.
۳. چگونه نور طبیعی و تهویه در این پروژه تأمین شده است؟
با طراحی باز نمای آجری روشن، حیاط سبز میانی و حذف دیوار مرزی، جریان نور و هوای تازه تقویت شده است.
۴. واحدها به چه نحوی طراحی شدهاند؟
با فرض عدم شناخت کاربران نهایی، واحدها با انعطاف فضایی بالا طراحی شدهاند، سرویسها کمینه شده و پلان آزاد در نظر گرفته شده است.
۵. این پروژه چه تأثیری بر بافت شهری منطقه پاسداران دارد؟
با ارائه فضای سبز، حذف حصار مرزی و نمای هویتساز، به بازتعریف کیفیت زندگی در منطقه متراکم پرداخته و الگویی برای طراحی بینابینی در بافت شهری ارائه کرده است.








سامانه مقررات ملی ساختمان
سامانه هوشمند مقررات ملی ساختمان، ابزاری رایگان برای مهندسان و معماران ایرانی است که امکان جستجو در تمام مباحث مقررات ملی ساختمان و ضوابط نظام مهندسی ساختمان را فراهم میکند. این پلتفرم، زمینهای برای ارتقای کیفیت طراحی و اجرا در پروژههای ساختمانی کشور است.













