صد طراحی برتر، بازسازی برج اداری کاستلانا در مادرید اسپانیا | طرح شماره 41

برج اداری Castellana 77 در مادرید اسپانیا همراه پلان معماری
مقدمه
پروژه Castellana 77 در قلب منطقه مالی AZCA مادرید بازسازی شده است تا بنایی دفتری که در طول دهها سال هویتش را از دست داده بود، بار دیگر به شکوه و کارایی اقتصادی و محیطی دست یابد. این پروژه نشان میدهد چگونه معماری میتواند هویت شهری را احیا کند و با طراحی مدرن و پایدار، ارزش بازار و کیفیت استفاده را بالا ببرد.
مشخصات پروژه
- معمار: Luis Vidal + Arquitectos
- موقعیت: مادرید، اسپانیا
- سال تکمیل بازسازی: حدود ۲۰۱۷
- زیربنای کل: تقریباً ۲۱٬۰۰۰ متر مربع
- تعداد طبقات بالای زمین: ۱۸ طبقه
- طبقات زیرزمین و پارکینگ: ۵ طبقه زیرزمین با بیش از ۲۰۰ پارکینگ



سبک معماری پروژه
بازسازی Castellana 77 دارای سبکی معاصر با تأکید بر نمای پوستهای و کنترل نور است. نمای جدید همراه با شیشههای انتخابی با ضریب کنترل تابش بالا و لامِههایی (slats) با انحنای متفاوت بر روی نما، طراحی شدهاند تا نور شدید خورشید را مهار کنند و در عین حال دید طبیعی و تابش ملایم را به داخل فضاها برسانند.
مفاهیم طراحی پروژه
- هویتسازی مجدد ساختمان با پوسته تازه که هم جنبه بصری دارد و هم در مصرف انرژی تأثیرگذار است.
- کارایی زیستمحیطی همراه با آسایش کاربران؛ مطالعه دقیق تابش خورشید در جهات مختلف (شرق، غرب، جنوب) و طراحی لامِههایی که در ساعات مختلف سال و روز تنظیم شوند.
- انعطافپذیری داخلی؛ بازسازی بخشهای اداری با پلان قابل تنظیم و امکان ترکیب کاربریهای تجاری در طبقه همکف.
ویژگیهای کلیدی پروژه
- نمای جدید با لامِههای عمودی که از تابش مستقیم محافظت میکند و در ساعات شب به وسیله نور پسزمینه قابلروشن شدن است.
- شیشههای ویژه (Guardian SunGuard® SN 70/41) با عملکرد کنترل حرارت و شفافیت مناسب برای قسمتهای مختلف نما.
- انعطاف در پلان همکف و نیمزیرزمین برای ترکیب دفاتر و فضاهای تجاری.
- پارکینگ زیرزمینی وسیع با بیش از دویست جای پارک، شامل امکانات برای دوچرخه و وسایل حملونقل کمانتشار.





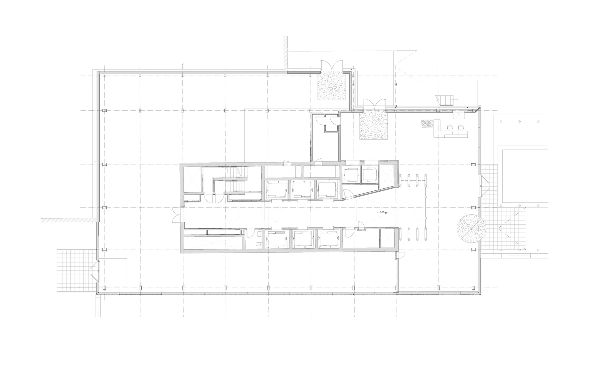
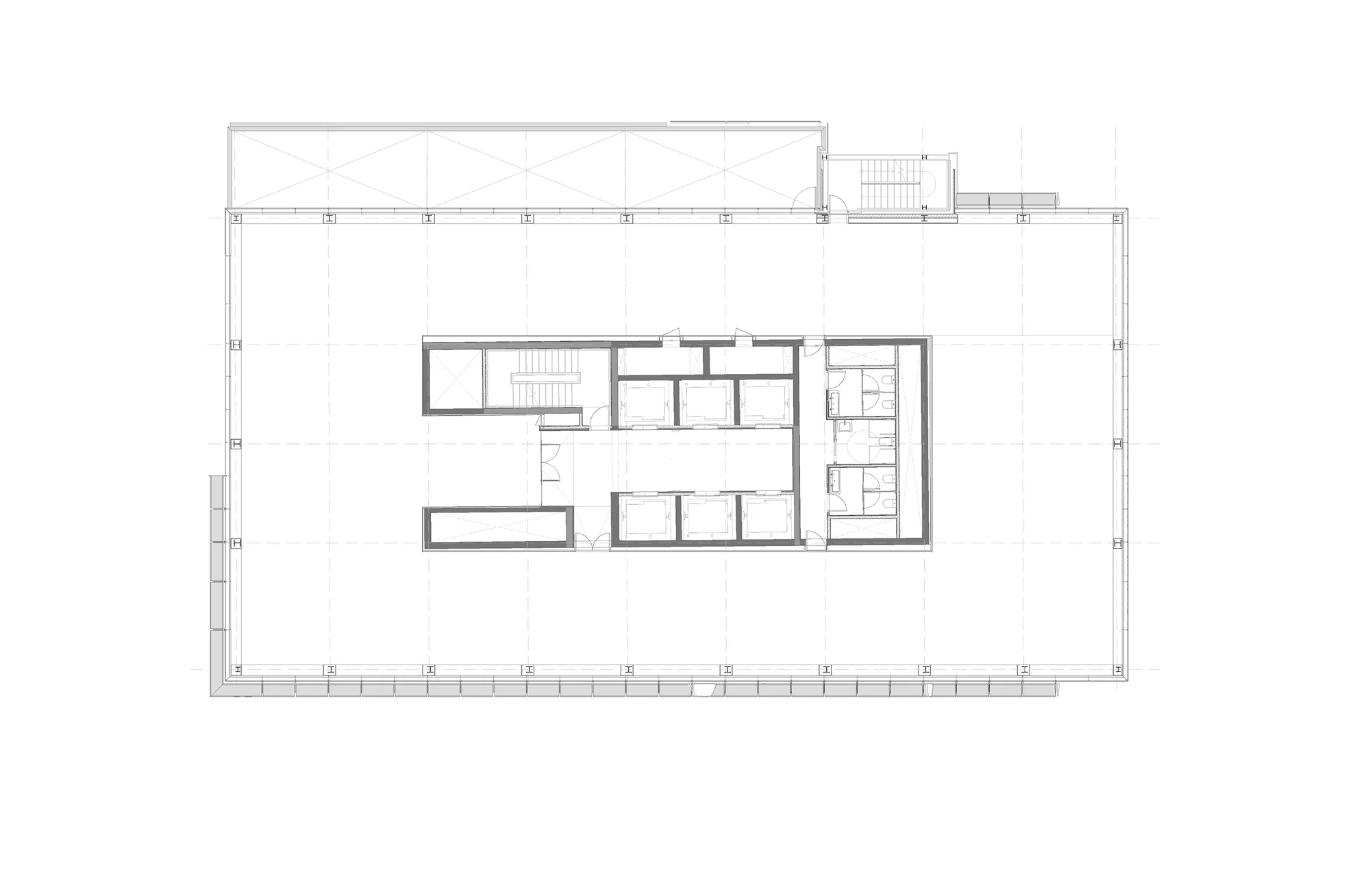
پلان معماری
پلان کلی ساختمان به گونهای سازماندهی شده است که طبقات بالای زمین عمدتاً مخصوص دفاتر اداری هستند. طبقه همکف و نیمزیرزمین به فضاهای عمومی و تجاری اختصاص دارند. امکانات پارکینگ در طبقات زیرزمین گسترده شدهاند. تراسها و ورودی اصلی برای دسترسی و تعامل با محیط شهری طراحی شدهاند.
بیوگرافی معمار پروژه
استدیو معماری Luis Vidal + Arquitectos از دفاتر معماران شناخته شدهای در اسپانیا هستند که در طراحی ساختمانهای اداری و بازسازی ساختمانهای قدیمی با تمرکز بر کارایی و پایداری تخصص دارند. پروژه Castellana 77 یکی از آثار برجسته آنها در بازسازی و هویتبخشی شهری است.
مصالح و متریال استفاده شده
- شیشه انتخابی با پوشش ضدتابش (و Guardian SunGuard®) برای نما
- لامِههای سفید یا رنگ روشن از جنس ETFE برای محافظت در برابر تابش نور و جنبه تزئینی نما
- قاب آلومینیومی برای نگهداری نما و لامِهها
- بتن و سازه اصلی موجود که در بازسازی نگهداری شده و بهبود یافته است
جوایز و افتخارات
- کسب گواهی LEED Platinum
- جایزه بهترین معماری ساختمانهای اداری در اسپانیا – European Property Awards ۲۰۱۷
- تقدیر ویژه در German Design Awards ۲۰۱۹
پرسشهای متداول
۱. ارتفاع ساختمان Castellana 77 چقدر است؟
ارتفاع بازسازیشده ساختمان تقریباً ۶۲ متر است.
۲. لامِه های نمای ساختمان چگونه عمل میکنند؟
لامِهها با انحنای متفاوت و عرضی حدود ۰٫۶ متر و طول حدود ۱٫۵۲ متر طراحی شدهاند تا نور مستقیم را فیلتر کنند؛ بین لامِه و نمای اصلی فاصلهای برای نگهداری دیده شده است.
۳. چه میزان فضا برای پارکینگ در نظر گرفته شده است؟
بیش از ۲۰۰ جای پارک در پنج طبقه زیرزمین موجود است و امکاناتی برای دوچرخه و خودروهای کمانتشار پیشبینی شدهاند.
۴. چگونه برنامههای کاربری تلفیقی شدهاند؟
طبقه همکف برای دفاتر و فضاهای تجاری، طبقات بالای زمین برای دفاتر اداری و بخشهای زیرزمین برای پارکینگ و خدمات پشتیبانی در نظر گرفته شدهاند.




سامانه مقررات ملی ساختمان
سامانه مقررات ملی ساختمان پلتفرم هوشمند مباحث ۲۳گانه مقررات ملی ساختمان است که با امکان جستجوی سریع در ضوابط طراحی، مصالح، سازه و تهویه کمک میکند تا پروژههایی مانند Castellana 77 با استانداردهای مقررات ملی ساختمان و نظام مهندسی ساختمان هم راستا شوند؛ این تضمینکننده کیفیت، ایمنی، عملکرد بهینه و انطباق قانونی ساختمان در طراحی و بهرهبرداری است.













