صد طراحی برتر، برج های 180 متری شنزن معماری گروه نورمن فاستر | طرح شماره 56

گرند بیویو معماری گروه نورمن فاستر در برج های شنزن همراه پلان معماری
مقدمه
گرند بیویو کیانهای در شنژن، طرحی است که زندگی شهری مدرن حرفهای را بازتعریف میکند. این مجموعه مسکونی که توسط دفتر معماری فُستر و پارتنرز طراحی شده است، پاسخگویی به سبک زندگی کسانی است که ساعات زیادی را در کار سپری میکنند و به تعادل بینکاری، آسایش، محیط زیستی و تعامل اجتماعی اهمیت میدهند.
این مطلب بصورت اختصاصی در مجله معماری 23گانه منتشر شده است.
مشخصات پروژه
- معمار: فُستر و پارتنرز
- موقعیت: بخش کیانهای، شهر شنژن، چین
- زیربنا کل: تقریباً ۹۶٬۰۰۰ متر مربع
- ارتفاع دو برج: حدود ۱۸۰ متر
- سال تکمیل و آغاز بهرهبرداری: ۲۰۲۵
- کاربری: مسکونی با امکانات اشتراکی و فضاهای خدماتی برای افراد حرفهای با سبک زندگی متمرکز بر کار



سبک معماری پروژه
برجها با چینشی به شکل «پنکهای» (fan-shape) طراحی شدهاند تا دید و نور طبیعی به حداکثر برسد. برجها در شعاع بیرونی خصوصیتر هستند و در مرکز طرح فضاهای اشتراکی متمرکز شدهاند. نماها ترکیبی از شیشه، استیل سبک و گیاهان بخشی از عناصر سبز هستند که در هر طبقه تراس مشترک و فضای باز فراهم شده است تا حس ارتباط با طبیعت و هوای آزاد تقویت شود.
مفاهیم طراحی پروژه
- اولویت دادن به رفاه ساکنان از طریق فضاهایی برای گردهمایی، استراحت در باغچهها و تراسها در سطوح مختلف برجها.
- تعادلی میان حریم خصوصی و حس جمعی؛ واحدها در بخش بیرونی منظرههای کامل دارند و بخش داخلی با فضاهای عمومی و دید سبز طراحی شدهاند.
- استفاده از سیستم مدولار در ساخت جهت تسریع زمان اجرا، کنترل کیفیت و امکان ترکیب واحدها در آینده طبق نیاز ساکنان.
- کاهش اثرات زیستمحیطی از طریق کاهش مصرف بتن، استفاده از استیل سبک برای سازهی بلند، پوشش نما پیشساخته و طراحی جهت تهویه طبیعی و کنترل نور.



ویژگیهای کلیدی پروژه
- تراسهای مشترک در هر طبقه که فضاهایی برای تعامل، ورزش سبک، استراحت و دید به شهر فراهم میکنند.
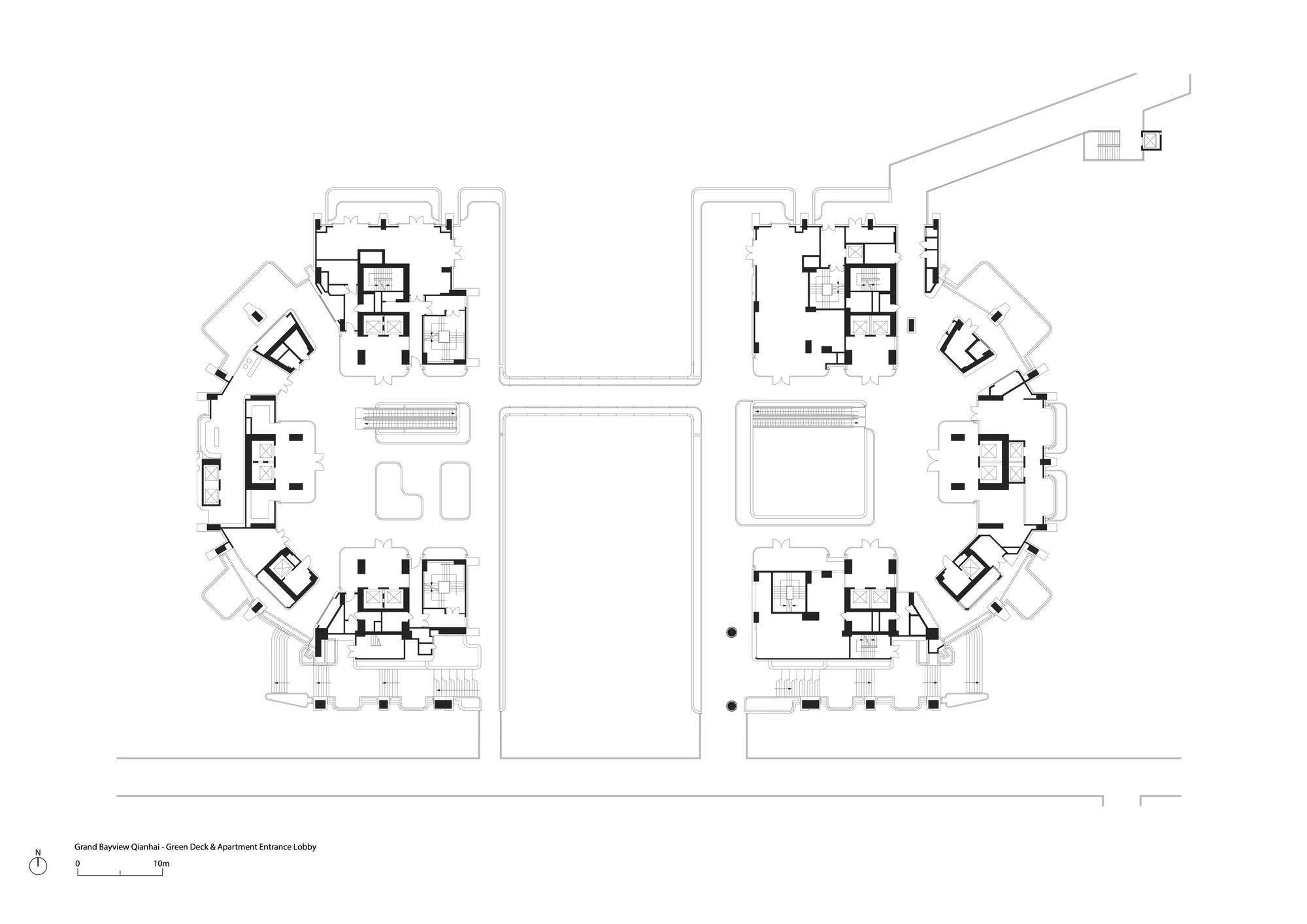
- باغ نیمهعمومی در پایه برجها که با کمربندهای سبز اطراف پیوسته است و ورود به سایت را برای عموم دلپذیر میکند.
- طبقه دو با دک متصل به مسیر پیادهروهای مرتفع محله گویوان است که فضایی انتقالی میان سایت پروژه و محدوده اطراف ایجاد میکند.
- اتاقک باغ بلند در ارتفاع (sky gardens) با ارتفاع سه طبقه، استفاده از پوشش سایهانداز، گیاهان و فضای جمعی اختصاصی برای ساکنان.
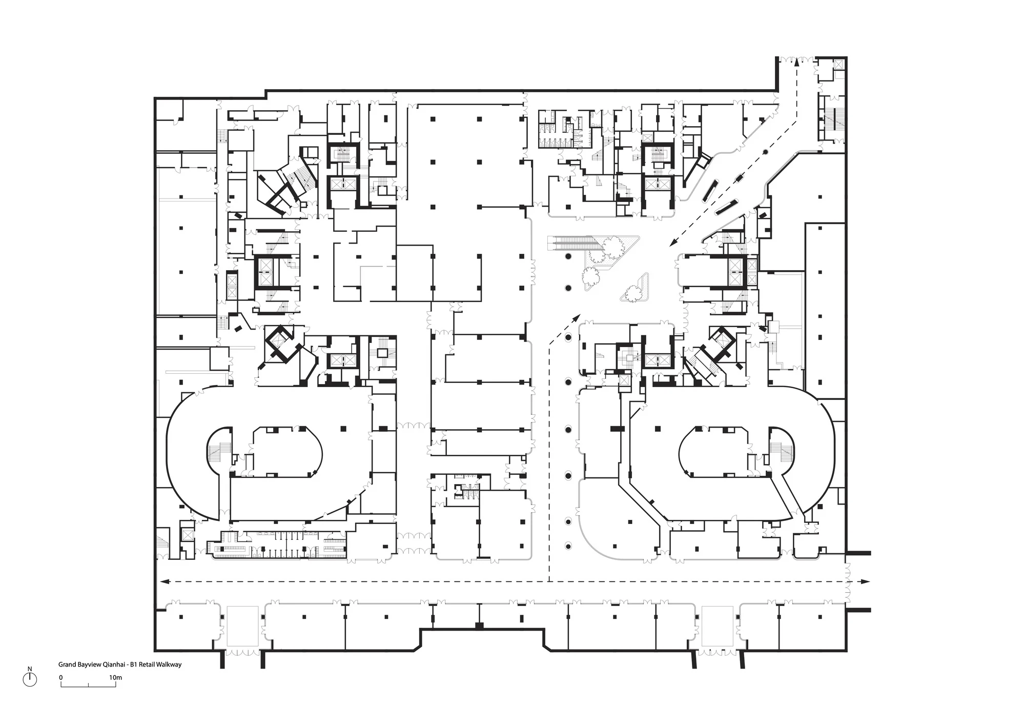
پلان معماری
پلان معمولی طبقات مسکونی دارای طبقات متوالی واحدهاست که محور دید و نور طبیعی را در هر واحد تامین میکند. واحدهای بیرونی سطح برج دید کامل دارند و واحدهای داخلی تراسها و باغچههای مشترک در مرکز را در بر میگیرند. بخش پایه پروژه مجهز به فضای تجاری و عمومی است که کاربری روزمره محله را افزایش میدهد. مسیرهای عبور و دسترسی بین ورودیها تا لابیها، آسانسورها و فضاهای سبز مشترک با دقت ایمنی و دسترسی طراحی شدهاند.
مصالح و متریال استفادهشده
- سازه اصلی برجها از استیل سبک ساخته شده است تا وزن کمتر و تسهیل حمل و نصب قطعات پیشساخته فراهم گردد.
- نمای خارجی پیشساخته شامل پانلهای شیشهای با پوشش محافظ و استیل که شرایط نوری را کنترل میکند.
- بتن در بخش پایه و بخشهایی از پی و فونداسیون بهکار رفته است. استفاده از بتن کاهش یافته تا ردپای زیستمحیطی پروژه کمتر شود.
- گیاهان نرم و پوشش سبز در تراسها و باغ نیمهعمومی برای بهبود کیفیت هوا، کاهش حرارت محیط و ایجاد فضاهای آرام بخش.



جوایز و افتخارات
این پروژه یکی از موارد شاخص طراحی مسکونی در شنژن به حساب میآید که در سال ۲۰۲۵ تکمیل شده است و نظر بسیاری از رسانههای معماری را به خود جلب کرده است به دلیل تلفیق نوآوری، کیفیت زندگی و طراحی محیط زیستی.
پرسشهای متداول
چرا برجها به شکل پنکهای طراحی شدهاند؟
این چینش باعث میشود دید بیرونی برای واحدهای بیرونی بهتر شود، نور طبیعی به طبقات نفوذ کند و از تداخل دید میان واحدها جلوگیری شود.
سیستم مدولار چه مزیتی در این پروژه دارد؟
مدولار بودن باعث شده قطعات قبلاً ساخته شوند، کیفیت ساخت کنترل شود، زمان اجرا کاهش یابد و امکان ترکیب واحدهای مسکونی در آینده فراهم شود.
میزان استفاده از پوشش سبز چگونه است؟
هر طبقه دارای تراس گیاهی مشترک است و در پایه پروژه باغ نیمهعمومی وجود دارد تا تعامل با طبیعت بهصورت مداوم حضور داشته باشد.
مصالح چگونه بر مصرف انرژی تاثیر داشتهاند؟
استفاده از استیل سبک، کاهش بتن، نما پیشساخته و کنترل نور و سایه با فین ها و پوشش سبز باعث کاهش بار حرارتی و مصرف انرژی برای تهویه و خنکسازی شده است.









معرفی پلتفرم هوشمند مقررات ملی ساختمان
در ایران پروژههای مسکونی بزرگی مانند گرند بیویو کیانهای داریم که معماران و مجریان باید هنگام طراحی و اجرا از الزامات مقررات ملی ساختمان و دستورهای نظام مهندسی ساختمان آگاه باشند. مباحث ۲۳گانه مقررات ملی ساختمان در این پلتفرم هوشمند موجودند. جستجوی هوشمند مباحث مقررات ملی ساختمان باعث میشود الزامات مربوط به سازه، مصالح، ایمنی، بهداشت، دسترسی و تأسیسات به آسانی در اختیار باشند و پروژه در هر مرحله مطابق قانون پیش برود؛ ابزار حیاتی برای تضمین کیفیت، ایمنی و استاندارد در ساخت و ساز.









