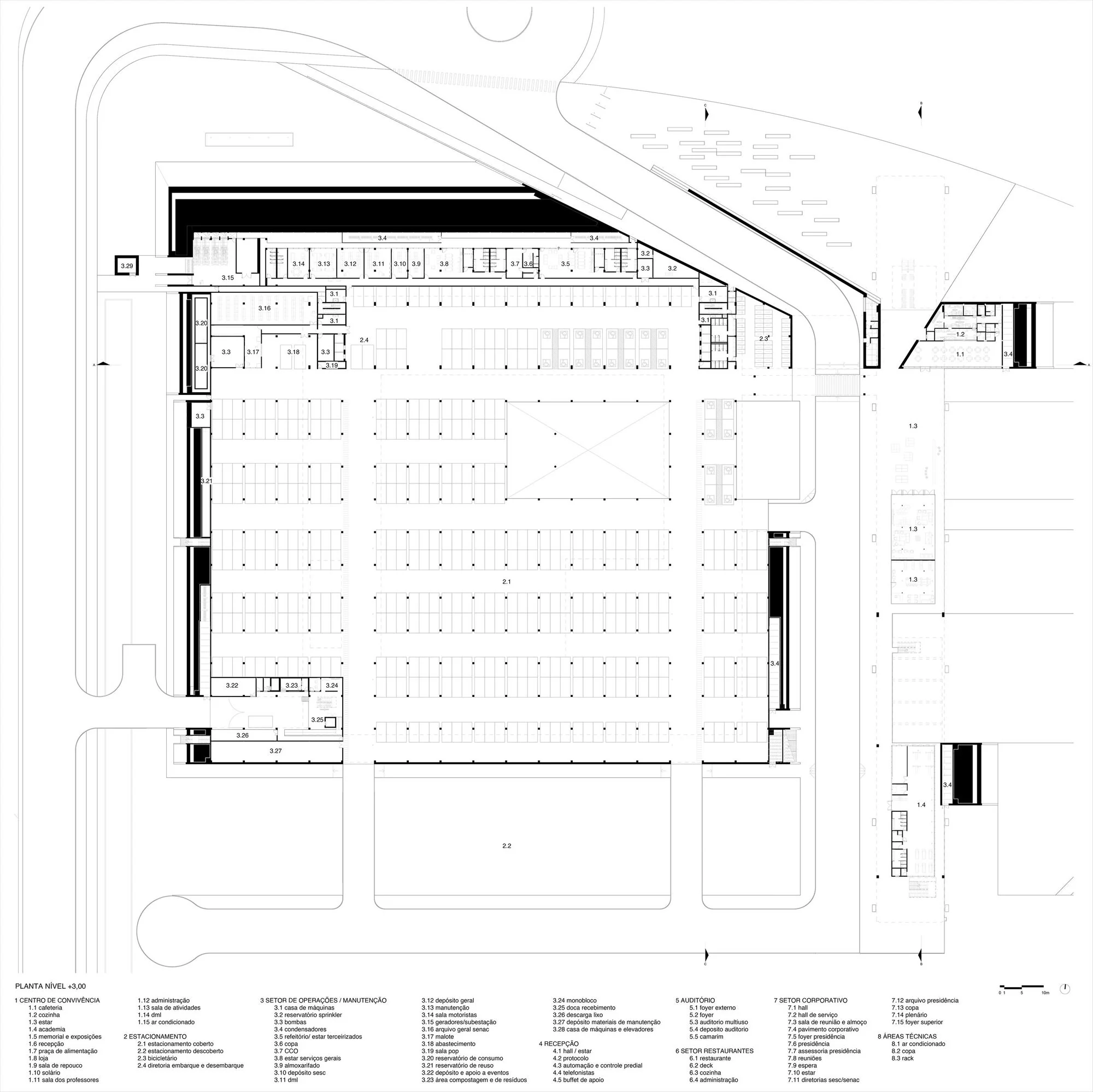
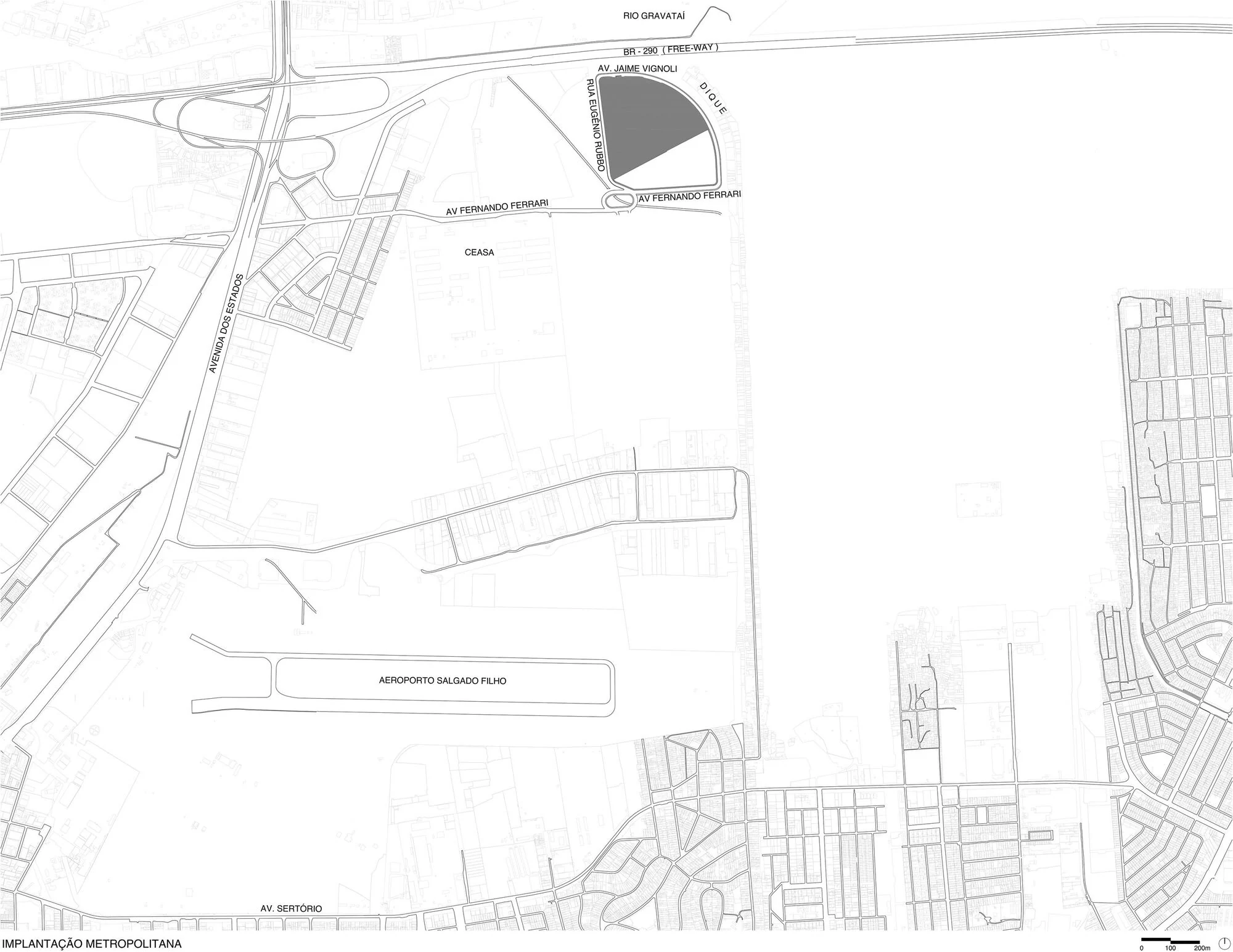
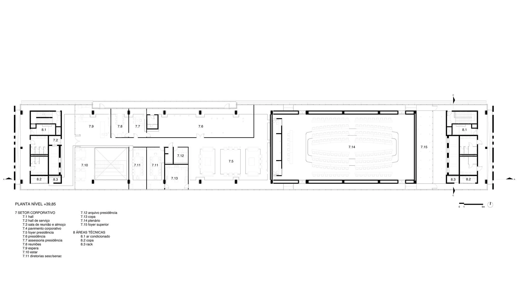
logo
مجتمع فکومرسیو، سسک و سناک: طراحی استودیو 41 | پورتو آلگره