معماری ساختمان مسکونی بنلاد در ایلام | استدیو معماری Mohat

ساختمان مسکونی Bonlad Residence در ایلام
پروژهٔ Bonlad Residence واقع در شهر ایلام، اثری است از دفتر معماری Mohat Office به سرپرستی محمد هدینپور. این ساختمان مسکونی با هدف مقابله با وضعیت نامطلوب معماری مسکونی در این شهر طراحی شده است؛ جایی که تراکم زمین کامل، نبود فضاهای نیمهباز و کیفیت پایین محیط شهری، مشکلات قابل توجهی ایجاد کرده است. این پروژه نمونهای از بازاندیشی در کالبد مسکن، ایجاد مرزهای فضایی و توسعهٔ فضاهای نیمهباز فعال محسوب میشود.
مشخصات پروژه
- معمار: دفتر معماری Mohat Office – محمد هدینپور
- موقعیت: شهر ایلام، استان ایلام، ایران
- زیربنای کل: ۱۵۸۴ متر مربع
- سال ساخت: ۱۴۰۲
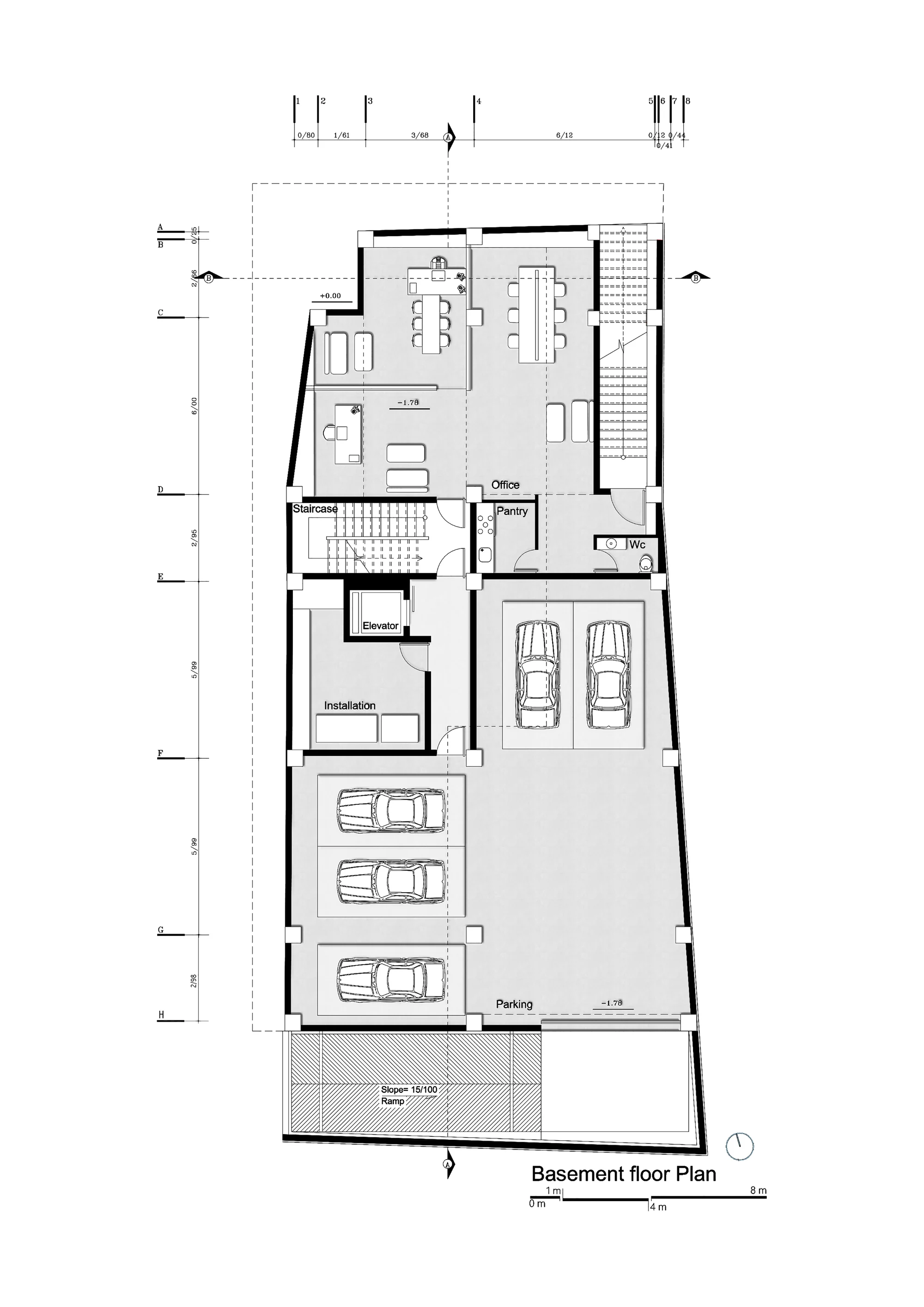
- کاربری: واحدهای مسکونی در طبقات بالا؛ فضاهای عمومی، تجاری و اداری در طبقات همکف و زیرزمین
سبک معماری پروژه
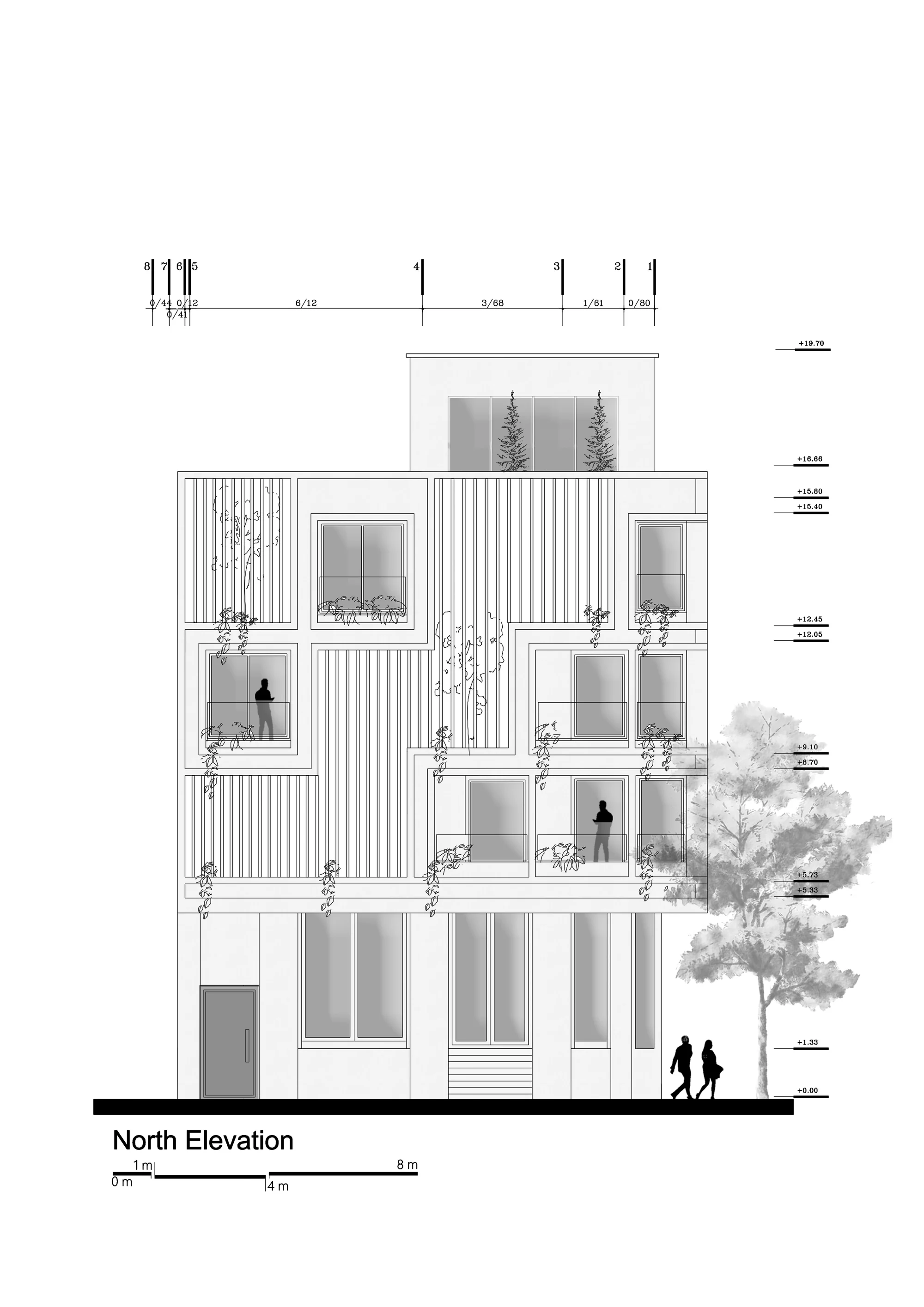
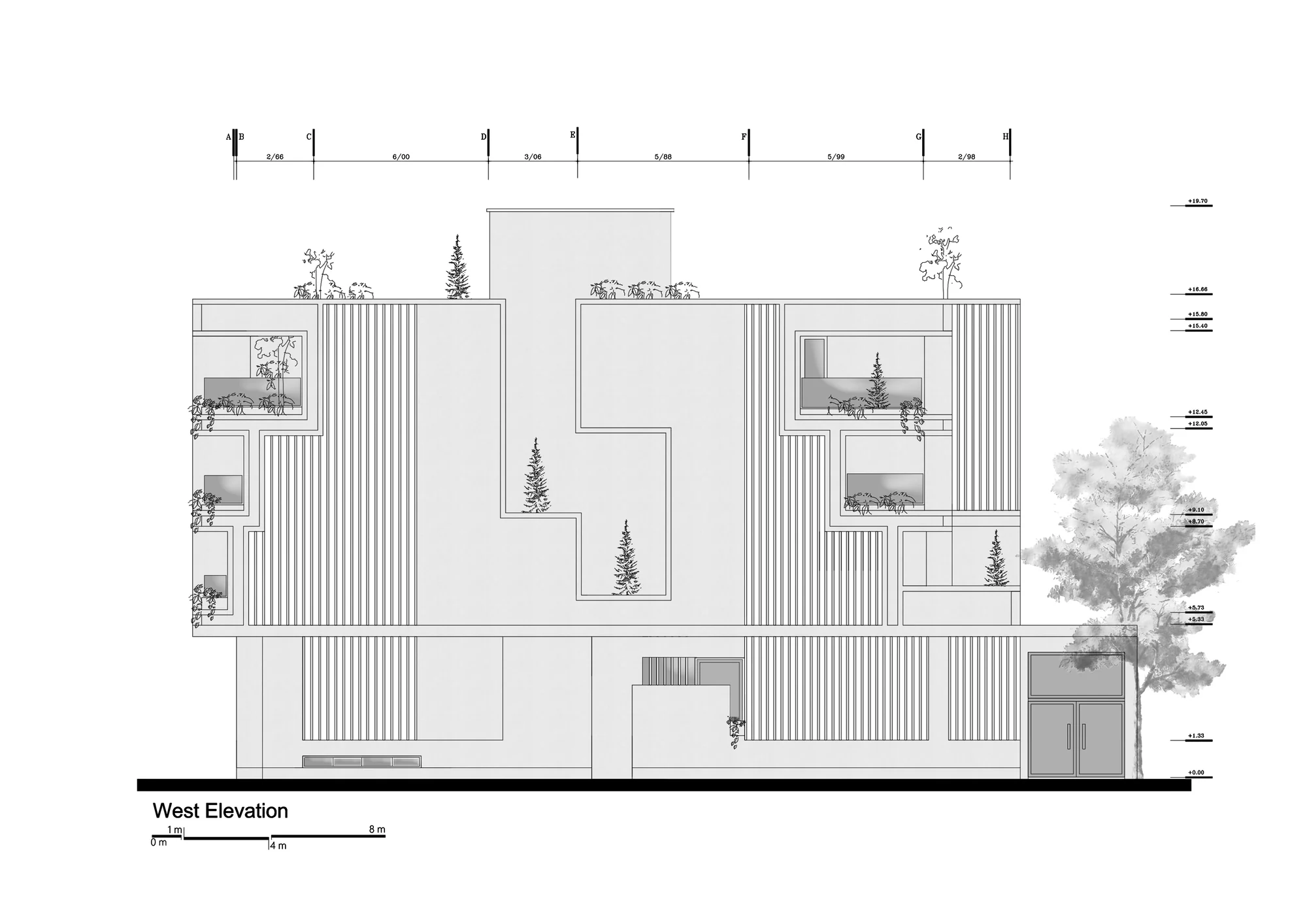
این پروژه در سبک معاصر طراحی شده و از نماهای آجری سوراخدار و لوورهای عمودی بهره میبرد که تعادل میان شفافیت و حریم خصوصی را برقرار میکند. فرم ساختمان با تورفتگی ها، تراسهای عمیق و شبکه ای از منافذ عمودی، تلاشی برای بازتعریف مرز میان داخل و خارج است.



مفاهیم طراحی پروژه
- مواجهه با بافت ناکارآمد مسکونی شهر ایلام که غالباً دارای پوشش کامل زمین و فاقد فضاهای نیمهباز مناسب است. پروژه با مفهوم «مرز فضایی» تلاش کرده است این شرایط را بازنمایی و اصلاح کند.
- استفاده از شبکهای از Voidها و پسنشینیها که مرزها را نرم میکند و حیاطهای سبز پیرامون هستهٔ مسکونی ایجاد میکند.
- تأکید بر حریم بصری و آرامش ساکنان؛ با استفاده از لوورهای عمودی و تراسهای عمیق دید مستقیم به ساختمانهای مجاور محدود شده است.
ویژگی های کلیدی پروژه
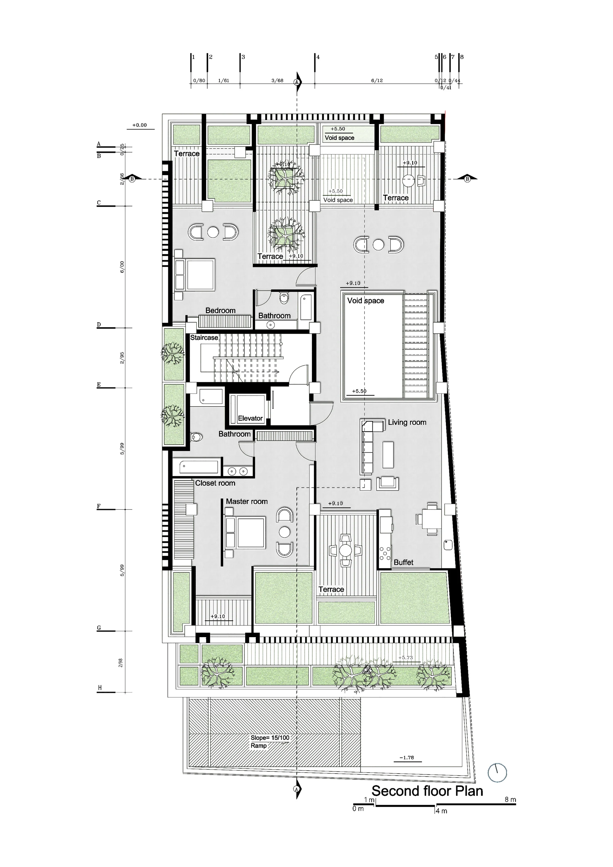
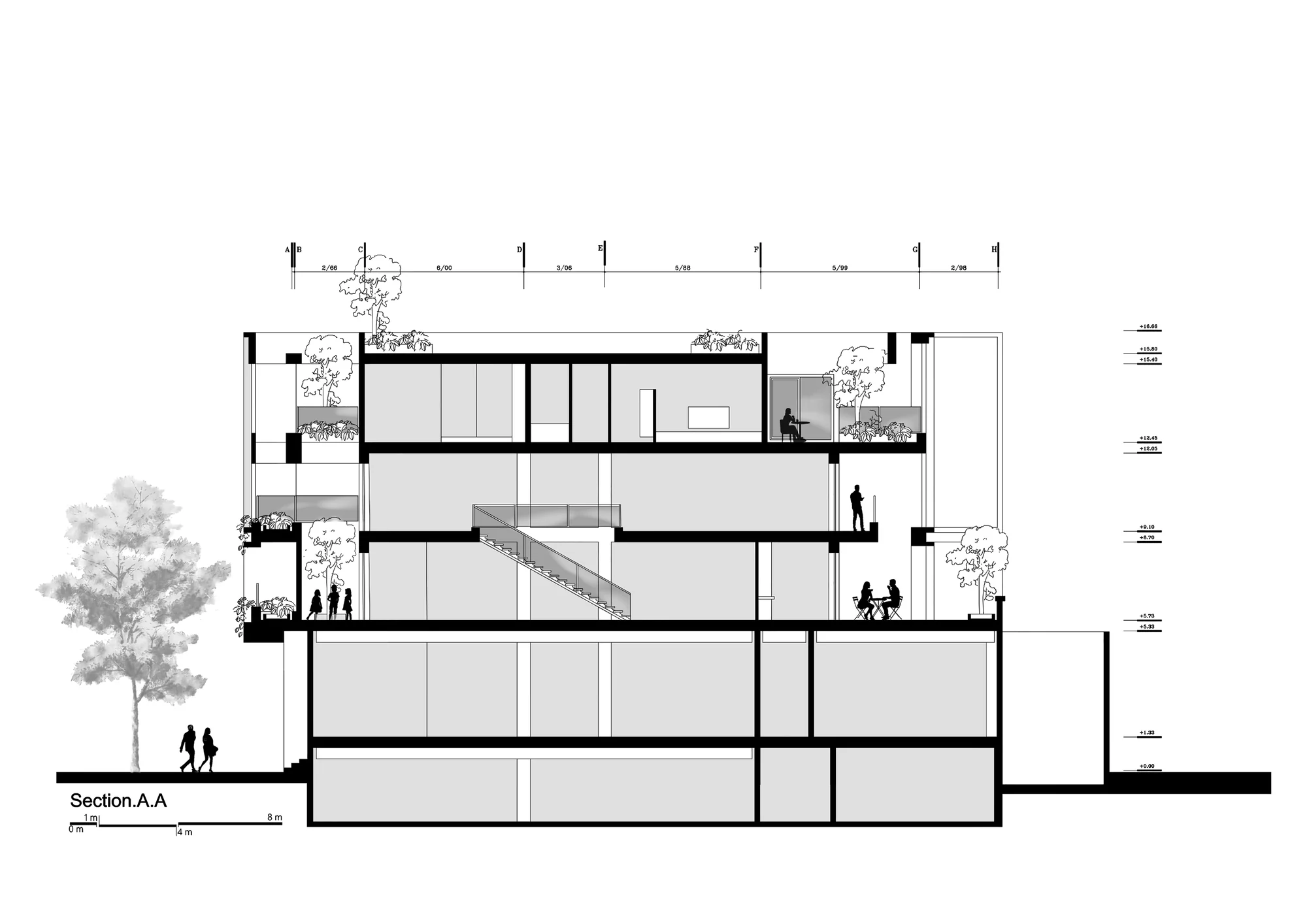
- تراسهای عمیق با عمق حدود ۷ متر که فضای نیمهباز گسترده و فعال فراهم میکنند.
- پوستهٔ آجری سوراخدار با شیارهای دقیق روی آجرها که حس لمسی به ساختمان اضافه کرده است.
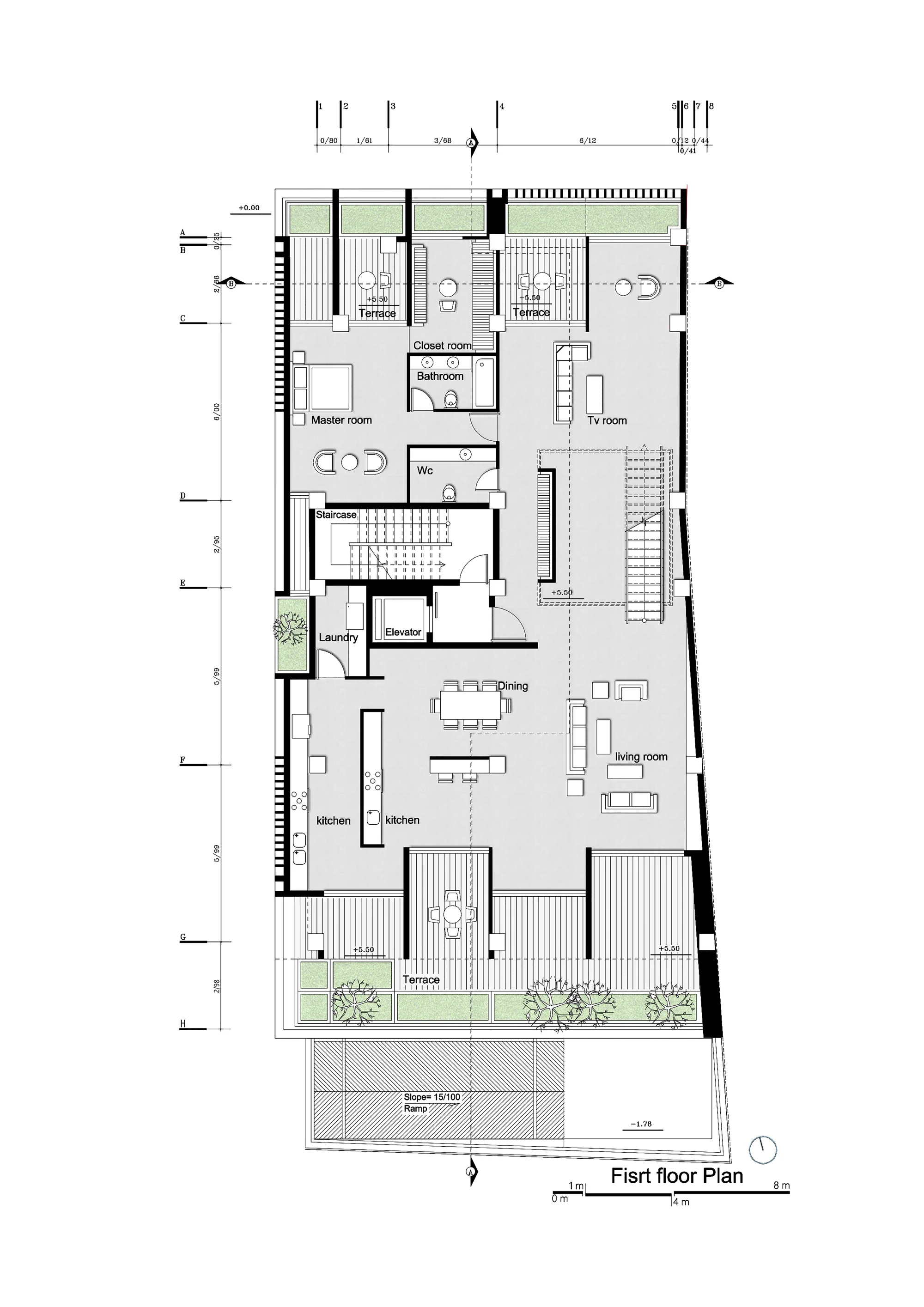
- ترکیب کاربری؛ طبقات زیرین برای فضاهای تجاری و اداری و طبقات فوقانی برای زندگی دو برادر طراحی شده است.
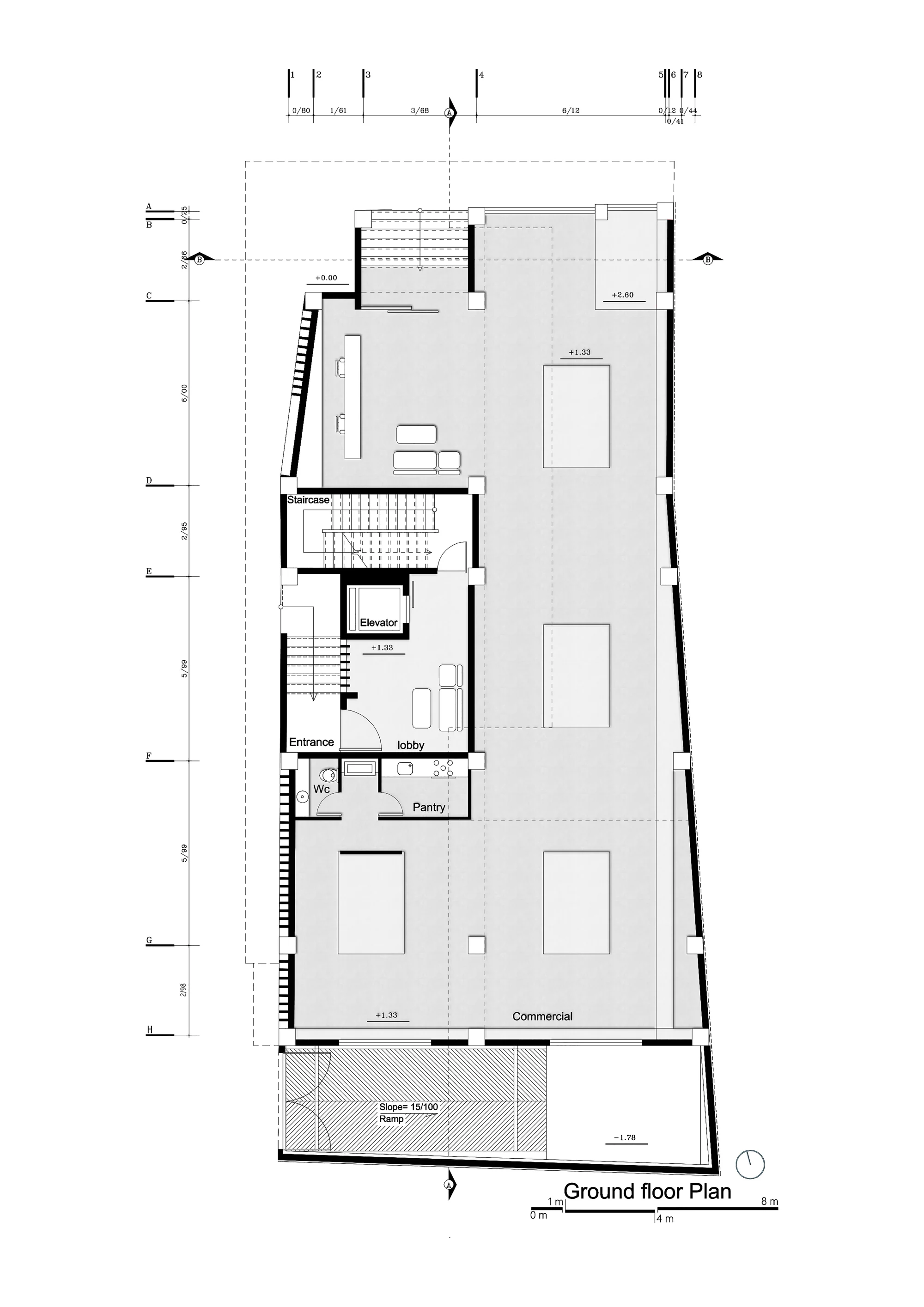
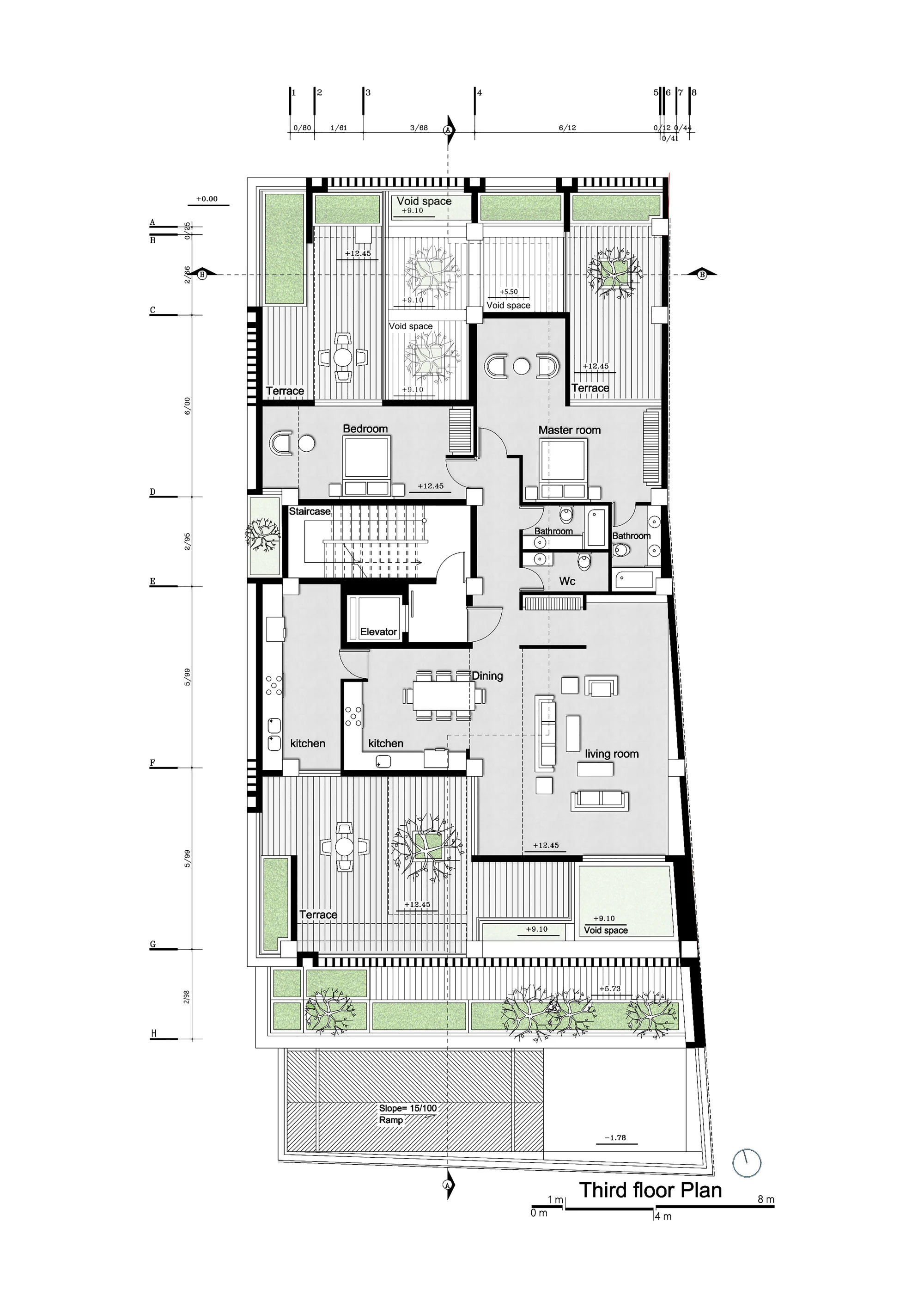
پلان معماری پروژه
پلان ساختمان بهگونهای طراحی شده که در همکف و زیرزمین، فضاهای عمومی و تجاری با دسترسی مستقل قرار گرفتهاند. در طبقات فوقانی، واحدهای مسکونی با تراسهای بزرگ پیرامون هستهٔ مرکزی قرار دارند و حیاطهای سبز ایجاد شدهاند. شکل شبکهای و پسنشینیها به کنترل دید و ایجاد خلوت کمک کرده است.



بیوگرافی معمار پروژه
استدیو Mohat Office دفتر معماری ایرانی به سرپرستی محمد هادیان پور است که در زمینه معماری مسکونی و شهری با تأکید بر طراحی پایدار، بافت شهری و هویت محلی فعال است.
مصالح و متریال استفاده شده
- آجر محلی برای نمای اصلی با شیارکاری و سوراخکاری جهت ایجاد بافت و حس ملموس
- لوورهای عمودی برای کنترل دید و نور طبیعی
- تراسهای عمیق با پوشش مناسب فضای نیمهباز و فضای سبز
جوایز و افتخارات
پروژه Bonlad Residence یکی از کاندیداهای جایزه «ساختمان سال ۱۴۰۴» در بخش مسکونی بوده است.







پرسشهای متداول
۱. چرا تراسها تا عمق ۷ متر طراحی شدهاند؟
برای خلق فضای نیمهباز فعال و عمیق که ضمن ارتباط با فضای بیرون، حریم خصوصی ساکنان را نیز حفظ کند.
۲. مفهوم شبکه Voidها و پسنشینیها چیست؟
این شبکه، فرم سفت و بیبرنامهٔ ساختوساز شهری ایلام را میشکند و فضاهای باز، نیمهباز و فعال ایجاد میکند.
۳. چگونه حریم دید ساکنان در برابر ساختمان مجاور کنترل شده است؟
با پسنشینیها و تراسها و لوورهای عمودی، دید مستقیم به ساختمانهای مجاور محدود شده است.
۴. چه تمهیداتی برای حس لمس و بافت نما درنظر گرفته شده است؟
شیارهای دقیق روی آجر، سوراخهای نمای آجری و لوورهای عمودی باعث شده حس لمسی نیز تجربه شود، نه تنها بصری.
سامانه مقررات ملی ساختمان
سایت ۲۳گانه پلتفرمی تخصصی است که دسترسی مهندسان و معماران کشور را به مباحث مقررات ملی ساختمان فراهم کرده است. با این سامانه میتوان بدون پرداخت هزینه، به تمامی ضوابط نظام مهندسی ساختمان دسترسی داشت و آن را در فرآیند طراحی و اجرا بهکار برد.

























