صد طراحی برتر، پروژه مسکونی 520 West 28th اثر زاها حدید در نیویورک | طرح شماره 45

ساختمان مسکونی 520 در 28 ام غربی نیویورک معماری زاها حدید همراه با پلان طبقات
مقدمه
ساختمان 520 West 28th واقع در محله Chelsea شهر نیویورک، یکی از خانههای مسکونی لوکس است که توسط زاها حدید آرشیتکتس طراحی شده. این ساختمان با نمای فولادی منحنی و احجام پلکانی، ارتباط بین خیابانها و فضای پارک High Line را بازتعریف میکند. در این مقاله به تحلیل سبک، پلان، مصالح و ویژگیهای این پروژه میپردازیم.
مشخصات پروژه
- معمار: زاها حدید آرشیتکتس
- موقعیت: West Chelsea، نیویورک، ایالات متحده
- تعداد واحدها: ۳۹ واحد مسکونی
- ارتفاع ساختمان: ۱۱ طبقه
- سال تکمیل: ۲۰۱۸
- مساحت واحدهای بزرگ: تقریباً تا ۵۵۰۰ فوت مربع




سبک معماری پروژه
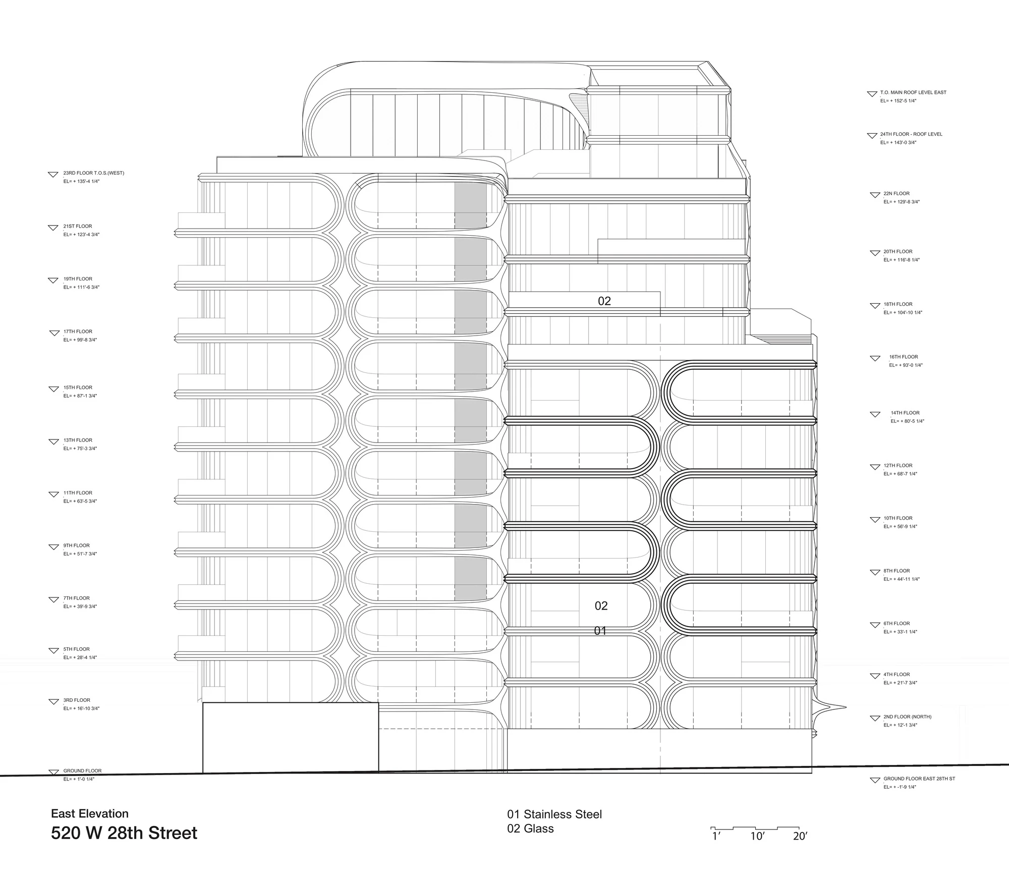
در طراحی این ساختمان سبک معاصر با فرمهای نرم و منحنی دیده میشود. نمای فولادی دکوری با الگوی چِوران (Chevron) که فولاد دستساخته دارد، تلفیقی است از فرم صنعتی محلی و ساختار هنری. ارتفاع سقف داخلی واحدها حدود ۱۱ فوت است که حس وسعت و نورگیری را افزایش میدهد.
مفاهیم طراحی پروژه
- تأکید بر تعامل میان فضای عمومی خیابان و فضای خصوصی واحدها، به ویژه تأثیری که پارک High Line بر بافت شهری دارد.
- سطوح پلکانی و تراسهایی که دید به اطراف را ممکن میکنند و ضمن حفظ حریم خصوصی، حس باز بودن فضا را تقویت میکنند.
- جزئیات اجرایی دقیق نما و مصالح که ترکیب صنعتی-هنری را تقویت کردهاند.
ویژگیهای کلیدی پروژه
- سقفهای داخلی با ارتفاع زیاد (حدود ۱۱ فوت) و فضای لوکس داخلی
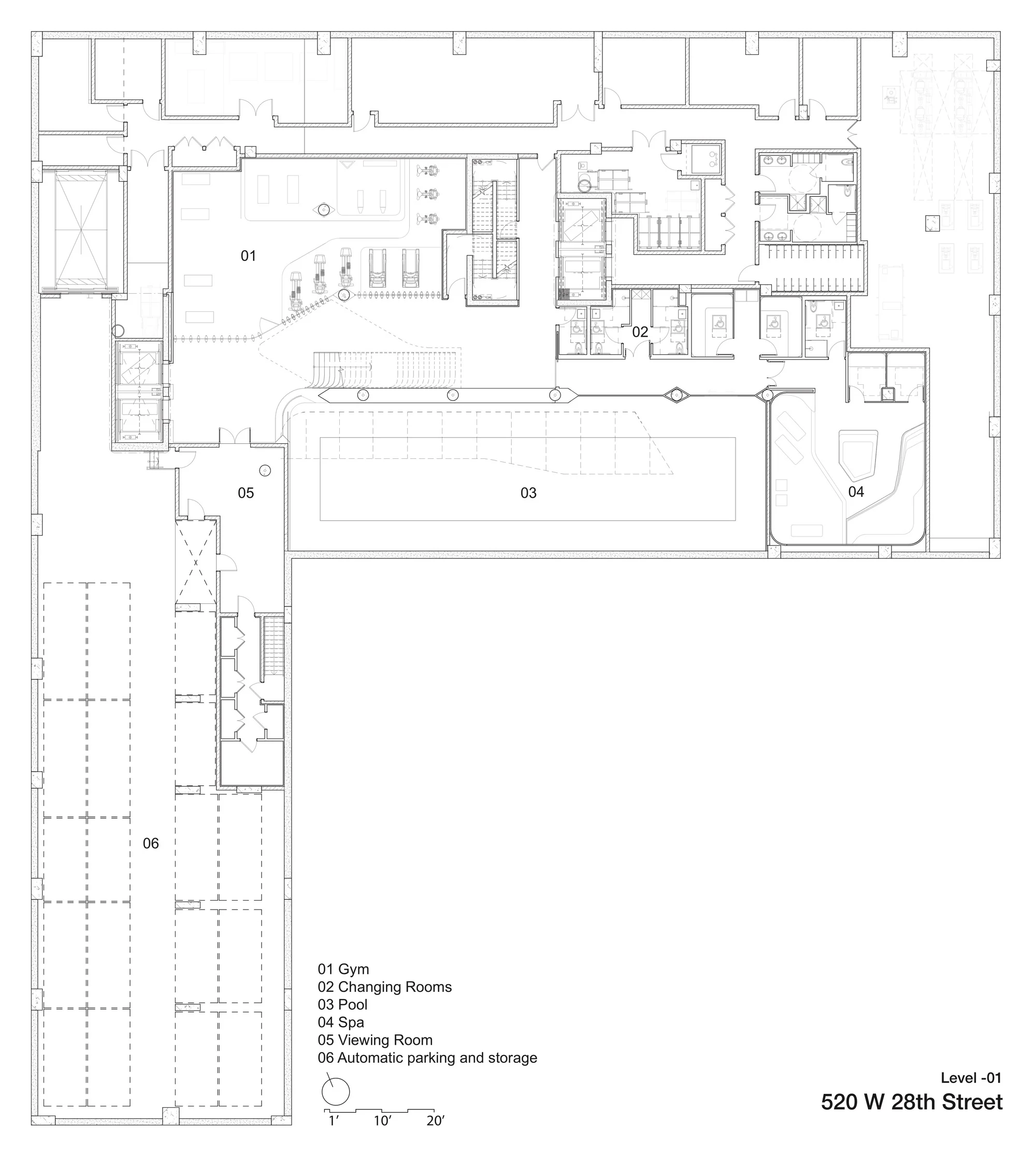
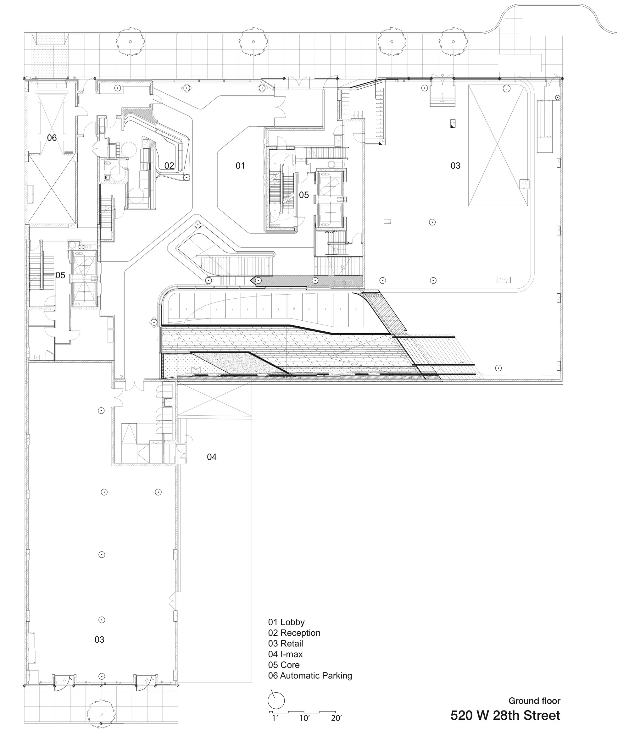
- لابی ورودی بزرگ، تراسهای خصوصی، سرویسهایی مانند استخر، مرکز سلامتی، باغ مجسمه و سالن تفریحی با امکانات خاص
- پارکینگ اتوماتیک و امکانات ذخیرهسازی خصوصی برای ساکنان
- نمای فولادی دستساز باِتم با پرداخت دستی و تأثیر بازتاب نور محلی





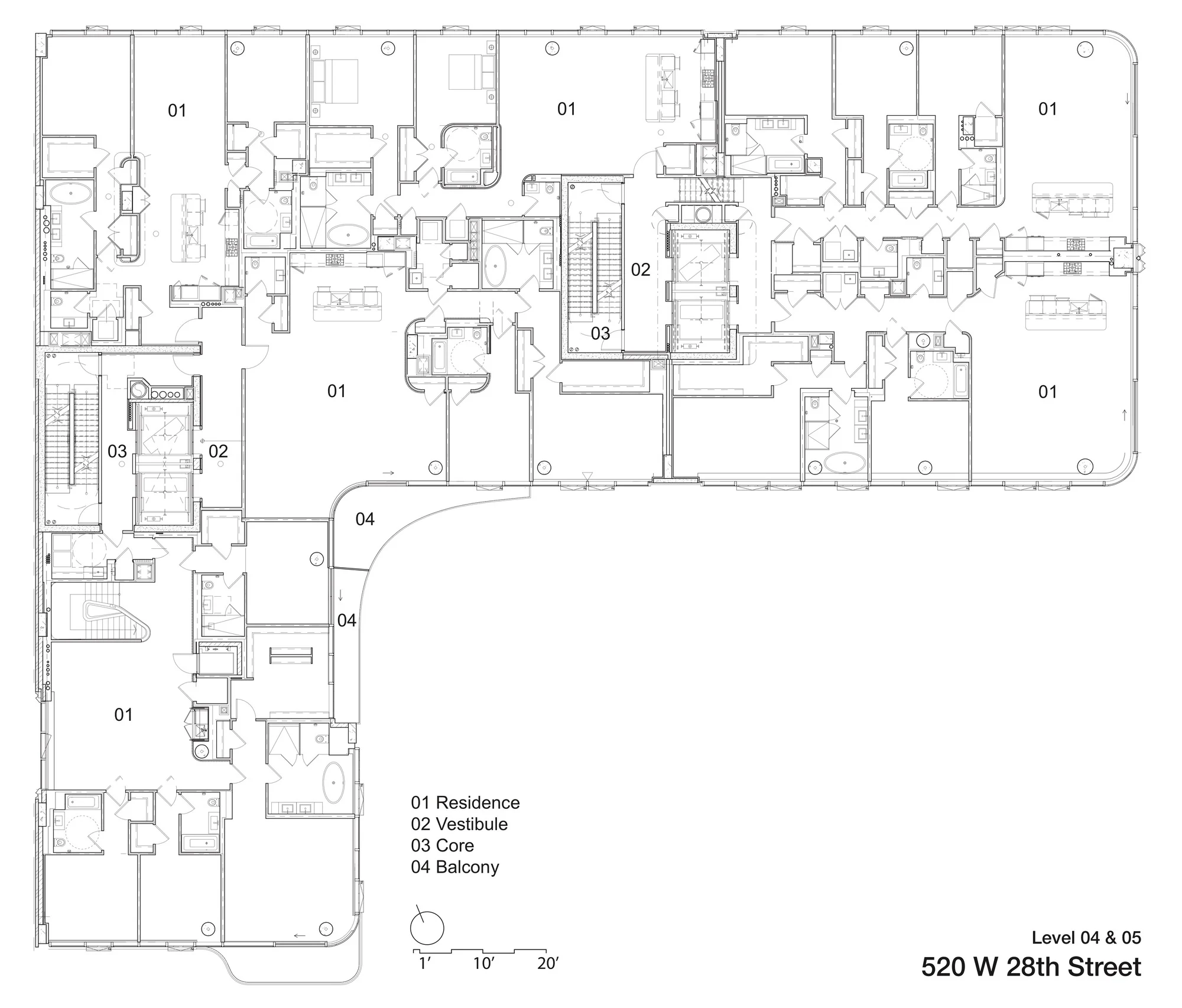
پلان معماری
پلان ساختمان شامل چند هسته آسانسور است که اغلب واحدها دارای ورودی خصوصی از آسانسور هستند. فضای عمومی در همکف و طبقات خدماتی شامل لابی، استخر زیر سقف نورگیر، مرکز سلامتی و باغ مجسمه قرار دارند. واحدها به گونهای طراحی شدهاند که دید و نور طبیعی کافی داشته باشند. تراسها و بالکنها در واحدهای بیرونی بیشترند.
بیوگرافی معمار
زاها حدید معمار عراقی-بریتانیایی بود، یکی از برجستهترین چهرههای معماری معاصر. آثار او با فرمهای پیچیده، هندسهی سیال، و تأکید بر تجدید فرم و فضا شناخته شدهاند. او نخستین زن معمار برنده جایزه پریتزکر بود و پروژههایش در سراسر جهان تأثیری عمیق بر معماری مدرن گذاشتهاند. ساختمان 520 West 28th یکی از آخرین پروژههای طراحیشده توسط اوست.
مصالح و متریال استفادهشده
- فولاد دستساز برای نمای بیرونی با پرداخت دستی و رنگدهی خاص
- شیشه برای بازشوهای بزرگ و پنجرههای نما برای دید طبیعی کافی
- سنگ طبیعی برای دیوار ورودی و برخی بخشهای داخلی
- جزئیات داخلی لوکس با کابینتهایی سفارشی، مصالح با کیفیت بالا و ارتفاع سقف مناسب



جوایز و افتخارات
اطلاعات دقیق درباره جوایز رسمی منتشر شده برای این پروژه در منابع موجود چندان مفصل نیست، اما به عنوان اثر شاخص زاها حدید در نیویورک و اولین ساختمان مسکونی او در این شهر شناخته میشود، مورد توجه معماران و رسانههای معماری بوده است.
پرسشهای متداول
۱. چند واحد در این ساختمان وجود دارد؟
۳۹ واحد مسکونی موجود است.
۲. ارتفاع داخلی سقف واحدها چقدر است؟
ارتفاع سقف داخلی واحدها حدود ۱۱ فوت است.
۳. چه امکانات عمومی برای ساکنان در نظر گرفته شده است؟
امکانات شامل استخر سقف نورگیر، مرکز سلامتی، باغ مجسمه، سالن تفریح و پارکینگ اتوماتیک است.
۴. نمای فولادی چگونه طراحی شده است؟
نمای فولادی دستساز با طرح چِوران ساخته شده، با پرداخت دستی و رنگدهی مات و بازتابدهنده که هویت محلی را در High Line و محله Chelsea حفظ میکند.























سامانه مقررات ملی ساختمان
سامانه مقررات ملی ساختمان پلتفرم هوشمند مباحث ۲۳گانه مقررات ملی ساختمان است که امکان جستجوی دقیق تمامی ضوابط ساخت و استانداردها را برای معماران و مهندسان فراهم میکند. برای پروژهای مثل 520 West 28th تهیه شده توسط زاها حدید، این سامانه میتواند در مراحل طراحی نما، انتخاب مصالح، ایمنی سازه، تهویه نورگیری و دسترسی افراد کم توان کمک کند تا تمام بخشهای پروژه مطابق مقررات ملی ساختمان و نظام مهندسی ساختمان اجرا شوند؛ تضمینی برای کیفیت، ایمنی و انطباق قانونی.


















