معماری ساختمان مسکونی 146 رشت | آرشیتکت : استودیو پراگماتیکا

معماری ساختمان مسکونی 146 رشت | همراه با پلان های معماری
نوشته شده در تحریریه مجله معماری 23گانه
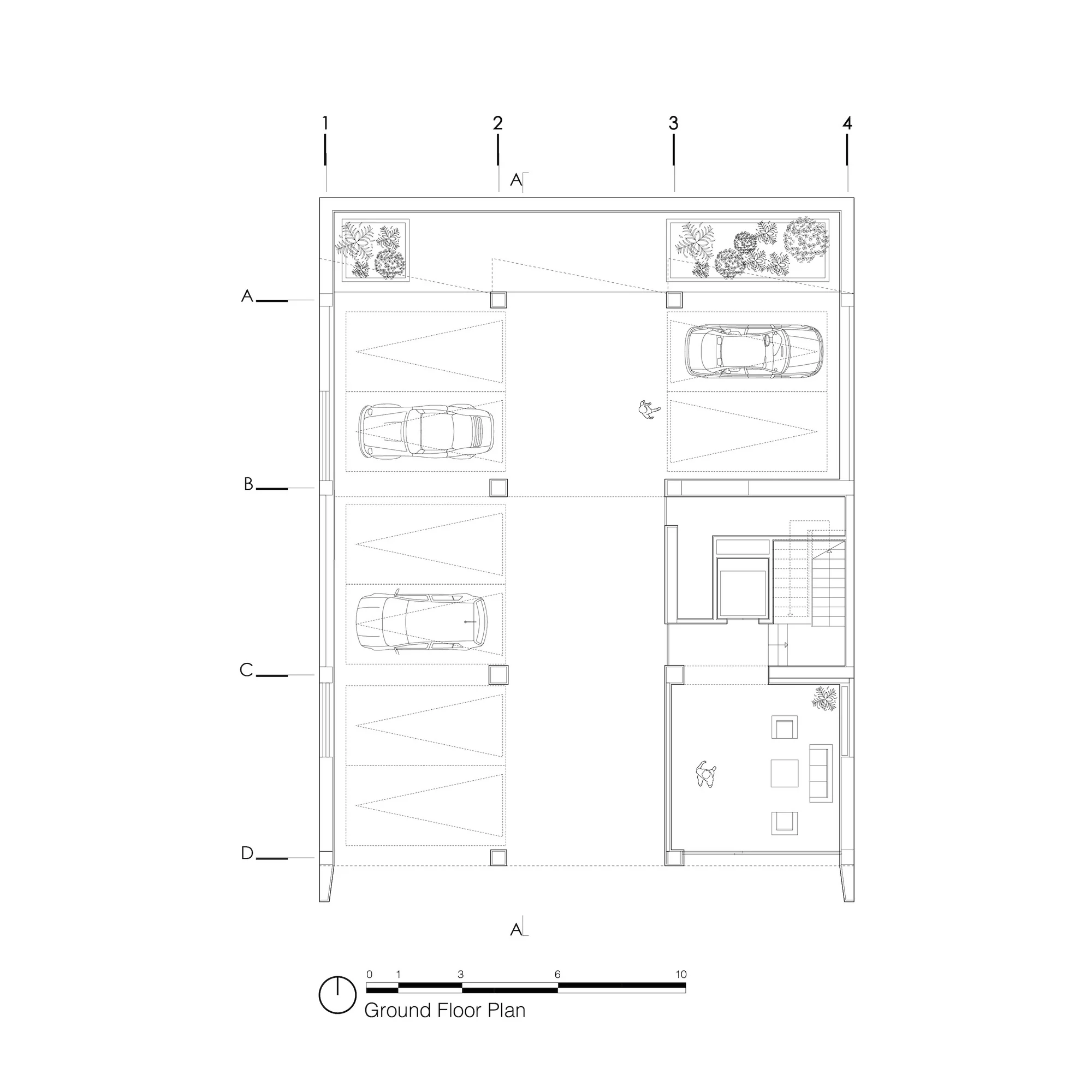
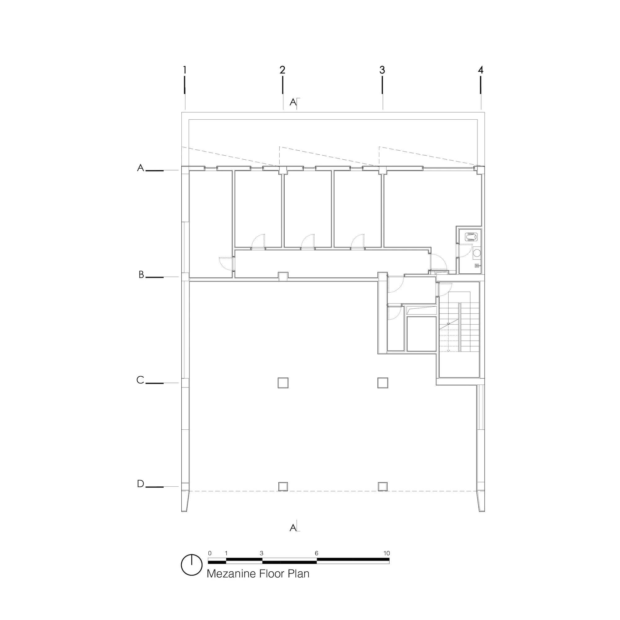
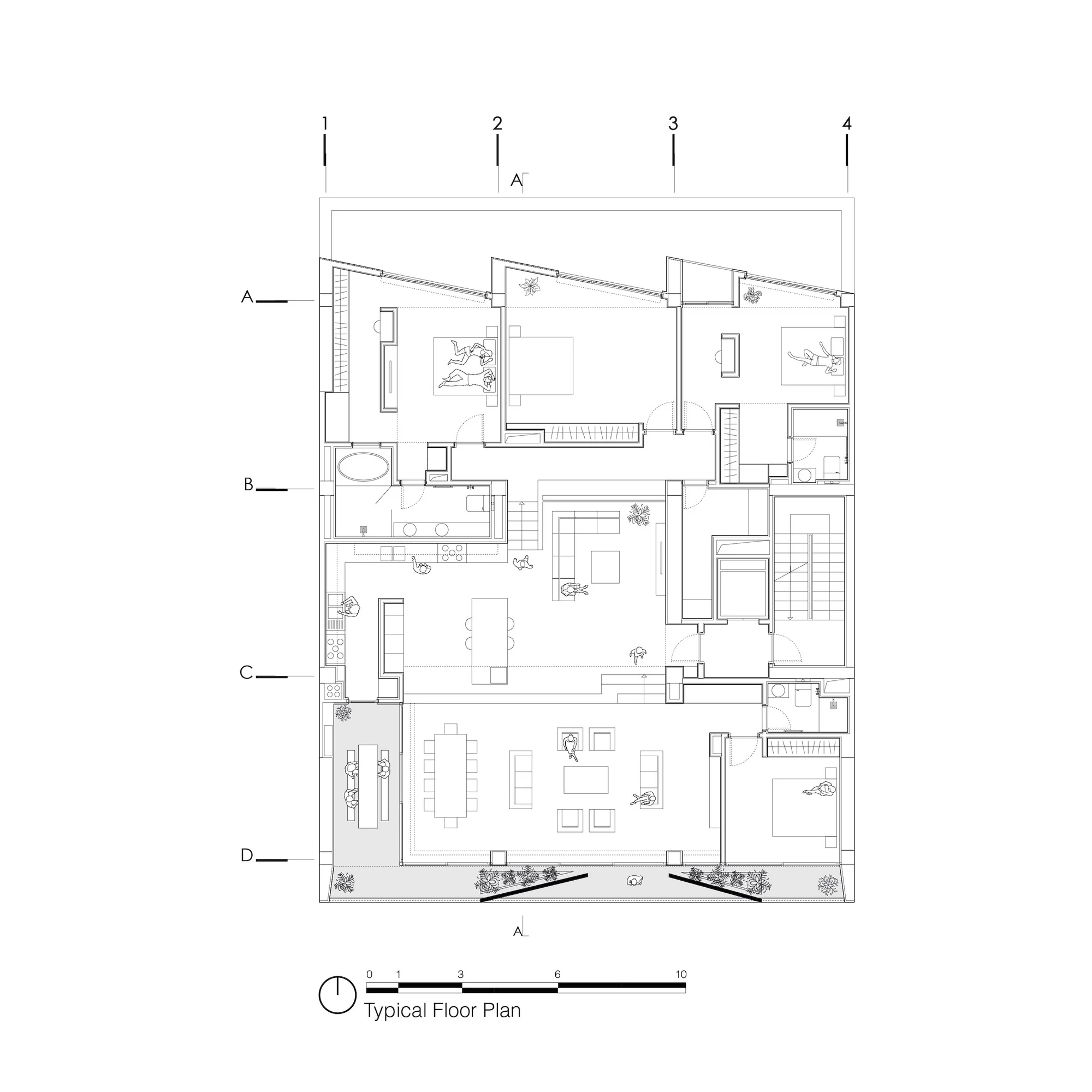
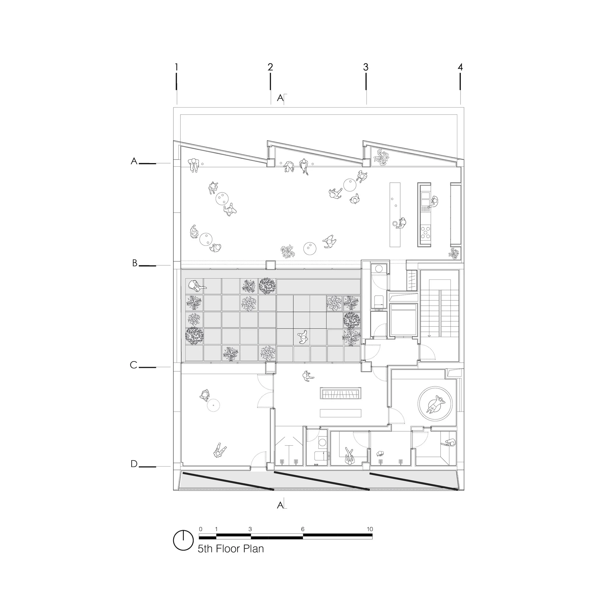
مجتمع مسکونی ۱۴۶ در محله گلسار رشت، بر روی زمینی به وسعت ۵۰۰ متر مربع احداث شده است. طبق برنامه ریزی پروژه، طبقه همکف به پارکینگ و طبقه پنجم به فضاهای عمومی شامل اتاق های تفریحی، سالن بدنسازی و فضای مهمانی اختصاص یافته است. به همین دلیل، واحدهای مسکونی در طبقات اول تا چهارم به صورت تکواحدی طراحی شدهاند.
مشخصات کلی پروژه
کاربری: مسکونی
معمار: استودیو پراگماتیکا
مکان: ایران - رشت
سال ساخت: ۲۰۲۴
مساحت پروژه: حدود 2000 مترمربع
مفهوم طراحی
ایده اصلی طراحی بر پایه ادغام هندسه منظم با حجمهای پویا شکل گرفته است. معماران تلاش کردند تا در عین حفظ تراکم، نور طبیعی و تهویه مطلوب را برای تمام واحدها تأمین کنند. نمای ساختمان با ترکیبی از پنلهای فلزی و شیشهای طراحی شده که ضمن ایجاد جلوهای مدرن، پاسخگوی نیاز اقلیمی منطقه نیز هست.




فرم و ساختار
حجم کلی ساختمان شامل چند بلوک بههمپیوسته است که با شکستهای حجمی و ایجاد تراسهای نیمهباز، ریتمی پویا به نما دادهاند. این طراحی موجب شد تا هر واحد مسکونی چشماندازی مستقل داشته باشد و حس محصوریت از بین برود. سازه اصلی از بتن مسلح ساخته شده و در بخشهایی از اسکلت فلزی برای ایجاد دهانههای بزرگتر استفاده شده است.
فضاهای داخلی
فضاهای داخلی با متریالهای ساده اما باکیفیت مانند چوب طبیعی و سنگ روشن طراحی شدهاند تا حس آرامش و گرما را منتقل کنند. استفاده از جداسازیهای شفاف باعث شده تا ارتباط بصری میان فضاها حفظ شود و نور طبیعی در تمام بخشها جریان داشته باشد.
جزئیات طراحی و مصالح
در طراحی نما از ترکیب بتن رنگروغنی، آلومینیوم برسخورده و شیشههای دوجداره استفاده شده است. این ترکیب علاوه بر دوام بالا، باعث کاهش مصرف انرژی و کنترل تابش خورشید در فصول مختلف سال شده است. همچنین سیستم جمعآوری آب باران و تهویه طبیعی بهعنوان بخشی از استراتژی پایداری پروژه در نظر گرفته شده است.




دیدگاه معمار
استودیو پراگماتیکا در بیانیه خود اعلام کرده است که این پروژه تلاشی برای تعریف مجدد ساختمانهای مسکونی شهری است؛ بناهایی که در عین تراکم زیاد، بتوانند کیفیت زیست انسانی را حفظ کرده و بافت شهری را ارتقا دهند.
بیوگرافی معمار
استودیو معماری پراگماتیکا یک دفتر معماری ایرانی است که در زمینه طراحی، مشاوره و نظارت فعالیت می کند.
سوالات متداول
۱. هدف اصلی طراحی ساختمان ۱۴۶ چه بوده است؟
تمرکز اصلی پروژه بر ایجاد تعادل میان تراکم شهری و کیفیت فضای زندگی بوده است.
۲. چه متریالهایی در ساخت این ساختمان استفاده شده است؟
بتن مسلح، شیشه دوجداره، آلومینیوم برسخورده و چوب طبیعی.
۳. چگونه نور طبیعی در ساختمان تأمین شده است؟
با استفاده از شکست های حجمی، تراسهای نیمهباز و بازشوهای عمودی در نما.
۴. آیا پروژه دارای ویژگیهای پایداری است؟
بله، استفاده از سیستم تهویه طبیعی، کنترل تابش و جمعآوری آب باران از جمله اقدامات پایداری است.
۵. سبک معماری پروژه چیست؟
ترکیبی از مدرنیسم عملکردگرا و طراحی مینیمال.



سامانه مقررات ملی ساختمان
سامانه هوشمند مقررات ملی ساختمان در پلتفرم ۲۳گانه، ابزاری برای مهندسان و طراحان است تا به تمام مباحث مقررات ملی ساختمان، آیین نامه ها و ضوابط نظام مهندسی ساختمان به صورت رایگان با قابلیت جستجوی هوشمند دسترسی داشته باشند. این سامانه، جامع ترین مرجع مقررات فنی ساخت و ساز در ایران است و مهندسان میتوانند نسخه وب اپلیکیشن آن را بر روی تمام تلفن های همراه هوشمند نصب کنند.




















