معماری مدرسه و مرکز ورزشی و تفریحی گرامر در استرالیا | آرشیتکت : Peddle Thorp Architects

بررسی معماری مدرسه گرامر در استرالیا | مرکزی برای آموزش و تفریح و ورزش
مرکز آبی «Coonawarra Willam» در مدرسۀ Ivanhoe Grammar School در ایالت ویکتوریا، استرالیا، با طراحی دفتر معماری Peddle Thorp Architects و بهره برداری در سال ۲۰۲۵، نمونهای برجسته از ترکیب آموزش، سلامت، محیط زیست و طراحی جامعه محور به شمار میآید.
این پروژه با هدف ارتقای کیفیت زندگی دانش آموزان، آموزش شنا، فعالسازی فضای ورزشی و نیز بهره گیری از فناوریهای پایدار طراحی شده است.
مشخصات پروژه
- معمار: Peddle Thorp Architects
- موقعیت: پردیس Plenty، مدرسۀ Ivanhoe Grammar School، شهر دورین، ایالت ویکتوریا، استرالیا
- زیربنا: حدود ۲۳۳۳ مترمربع
- سال تکمیل: ۲۰۲۵
- کاربری: مرکز آبی، رفاهی و آموزشی مدرسهای؛ شامل استخرهای آموزش شنا و ۲۵ متری، باشگاه بدنسازی، کلاسهای تربیت بدنی، و فضاهای چندمنظوره.









سبک معماری پروژه
این مرکز آبی را میتوان در بستر طراحی معاصر قرار داد که به لحاظ سبک، با توجه به مقیاس مدرسه ای، فرم ساده و شفاف، تأکید بر نور طبیعی، و متریال مدرن بهکار رفته است. حجم پروژه به گونه ای سازماندهی شده که با بستر سبز پردیس تعامل دارد و عناصر فضاهای درونی و بیرونی را به هم پیوند میدهد.
مفاهیم طراحی پروژه
- تأکید بر سلامت جسمانی و آموزشی؛ طراحی این مرکز علاوه بر عملکرد ورزشی، فضاهای آموزشی تربیت بدنی و سلامت را در خود جای داده است تا از صرفاً عملکردی بودن به تجربه آموزشی ارتقا یابد.
- ارتباط با طبیعت و فرهنگ بومی؛ نام «Coonawarra Willam» به معنی «خانه قو» است و این نام یادآور ارتباط میان زمین و آب، طبیعت و فرهنگ است.
- پایداری محیطی؛ مرکز با بهکارگیری سیستم های خورشیدی، بازیافت آبباران، پوستهای با نصب محکم برای کنترل تبادل حرارتی و جلوگیری از تقطیر، طراحی شده است.
ویژگیهای کلیدی پروژه
- استخر ۲۵ متری و استخر آموزش شنا در خود ساختمان؛ امکان آموزش، تمرین و فعالیت عمومی فراهم شده است.
- فضاهای چند منظوره شامل باشگاه بدنسازی، کلاسهای سلامت و تربیت بدنی، و فضاهای اجتماعی.
- طراحی هوشمند با پوستهای با کارایی بالا، بهرهگیری از نور طبیعی کنترلشده و سیستم های صرفه جویی انرژی.
- ارتباط بصری و فیزیکی با فضای سبز و زمینهای ورزشی موجود؛ این مرکز نهتنها برای مدرسه، بلکه برای جامعه محلی نیز قابل استفاده است.






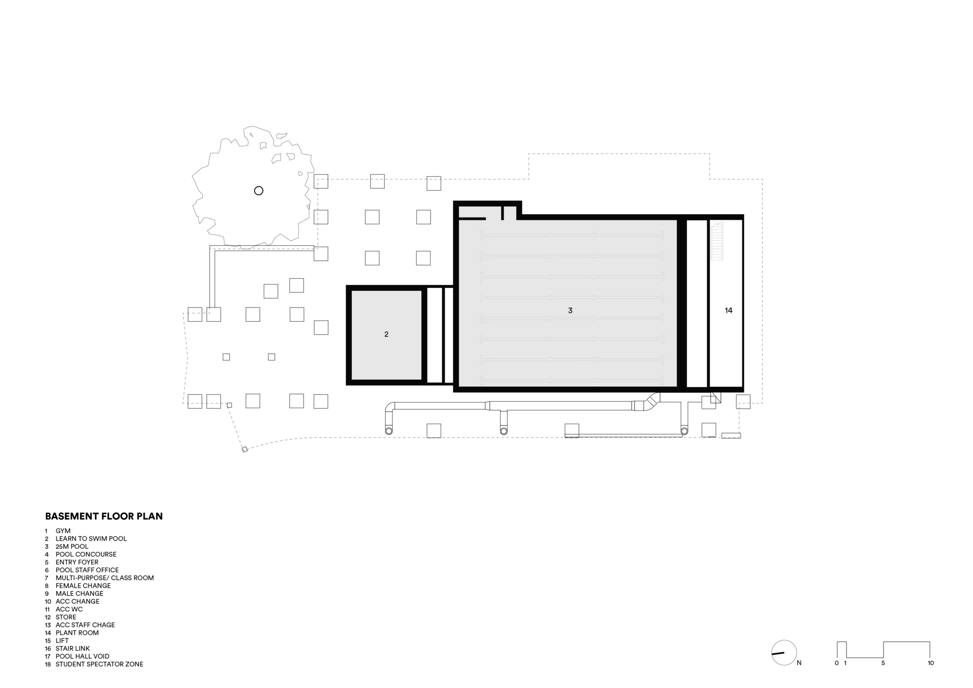
پلان معماری پروژه
طرح ساختمان به گونهای تنظیم شده که ورودی، فضای عمومی استخر و فضاهای آموزشی در ترازی مناسب قرار گیرند. پوسته و بازشوها به سمت زمین های سبز مدرسه باز شدهاند تا دید و ارتباط با طبیعت فراهم شود. قرارگیری خدمات فنی و فضاهای پشتی بهگونه ای است که تمرکز اصلی بر تجربه کاربر و کیفیت فضایی است.
مصالح و متریال استفاده شده
- نمای بیرونی با پوشش مدرن فلزی یا ترکیبی از فلز و شیشه که خوانایی حجم را افزایش داده است.
- بام وسیع با پنل های خورشیدی برای تولید انرژی و سیستم جمع آوری آب باران.
- فضای داخلی استخر با پوستهای عایق و غشا بخارگیر جهت جلوگیری از تقطیر و بهبود شرایط اقلیمی فضای مرطوب.
- پنجره ها و بازشوهای بلند جهت دریافت نور طبیعی و ارتباط با محوطه بیرونی.
بیوگرافی معمار پروژه
استدیو Peddle Thorp Architects یکی از شرکتهای معماری مستقل در ملبورن، استرالیا است که از دههٔ ۱۹۸۰ میلادی فعال بوده و پروژههایی در زمینه معماری آموزشی، ورزشی، تجاری و اداری طراحی کرده است. تخصص آنها در حوزه مراکز ورزشی و آموزشی، موقعیت این پروژه را در مسیر اصلی فعالیت شان قرار میدهد.


پلتفرم 23Gane | سامانه مقررات ملی ساختمان
سامانه هوشمند مقررات ملی ساختمان بستری قابلدسترسی برای مهندسان و معماران ایرانی فراهم کرده است تا با جستجوی سریع، به مباحث مختلفِ مقررات ملی ساختمان و ضوابط نظام مهندسی ساختمان دسترسی یابند. این پلتفرم، طراحی و اجرای پروژههای ساختمانی را از منظر فنی، اجرایی و مقرراتی ارتقا میدهد.






پرسشهای متداول
۱. چرا این مرکز آبی در مدرسه راهاندازی شده؟
این پروژه با هدف ارتقای سلامت جسمی، ارائه فرصتهای آموزشی در حوزه ورزش و سلامت، و ایجاد فضایی برای جامعه مدرسه و محله طراحی شده است.
۲. چگونه نیاز به پایداری محیطی بر طراحی اثر گذاشته است؟
با قرارگیری پنل های خورشیدی روی بام، بازیافت آب باران، پوسته ساختمان با هوابندی بالا و غشای بخارگیر، طراحی بهینه شده محیطی داشته است.
۳. نام «Coonawarra Willam» چه معنی دارد؟
در زبان بومی Woi-wurrung مردمان Wurundjeri، «خانهٔ قو» را تداعی میکند؛ عنصری که به آب و زمین، طبیعت و فرهنگ اشاره دارد.
۴. این مرکز چه امکاناتی دارد؟
یک استخر ۲۵ متری، استخر آموزش شنا، باشگاه بدنسازی، کلاسهای آموزشی، و زمینهای ورزشی اطراف از جمله امکانات ذکر شده هستند.
۵. چه تأثیری بر جامعه مدرسه دارد؟
افزایش جذابیت مدرسه برای دانشآموزان، ارتقای کیفی فعالیتهای ورزشی، قابلیت استفاده از سوی خانوادهها و جامعه محلی، و تقویت تجربه یادگیری ترکیبی ورزش و آموزش.

![صد طراحی برتر، معماری برج سیتی لایف میلان [گرئه معماری زاها حدید] | طرح شماره 13](/_next/image/?url=https%3A%2F%2Fback-api.23gane.com%2Fstorage%2Fblogs%2F69183bfc534c4_15152.jpg&w=1920&q=75)







