معماری دکوراسیون داخلی کافی شاپ در هانگ ژو چین | همراه با پلان های معماری

معماری داخلی کافی شاپ Arabica در مرکر تجاری هانگژو MixC
مقدمه
کافیشاپ ٪ Arabica در موقعیتی استراتژیک در ورودی مرکز تجاری MixC هانگژو، جایی که عبور مردم و حرکت نور خورشید، صحنهای زنده برای معماری خلق میکند.
مشخصات پروژه
- معمار: Nguyen Khai Architects & Associates
- موقعیت: MixC، هانگژو، چین
- زیربنا: حدود ۱۵۰ متر مربع
- سال افتتاح: ۲۰۲۵





سبک معماری پروژه
طراحی حالتی مدرن و مفهومی دارد؛ نما با قطعات چِمِکس سفید که قابلیت چرخش دارند ساخته شده تا تابش خورشید و سایه را هر لحظه تغییر دهند و نما را به سطحی پویا تبدیل کنند.
مفاهیم طراحی
نما به مثابه پوست متحرک طراحی شده است؛ با عناصر چرخان که نور را مهار میکنند و حرکت عابران را میگیرند. فرم تونلی ورودی، راهی بصری به داخل ایجاد کرده است؛ جایی که تجربه کافیشاپ ترکیبی از دعوت و سکون را به مشتریان میدهد.
ویژگیهای کلیدی پروژه
- نمای بلند با تعداد زیادی صفحه چِمِکس سفید در حالت توپر و خطی برای ایجاد بافت و عمق
- ورودی تونلی شکل به همراه مبلمان بیرونی هماهنگ با فرم نما و فضای سبزِ پیرامون
- نورپردازی داخلی با آویزهای مخصوص که در زمانهای مختلف روز جلوه متفاوتی دارند
- سطوح داخلی و خارجی با رنگها و مصالح گرم ایجاد حس دعوتکنندگی



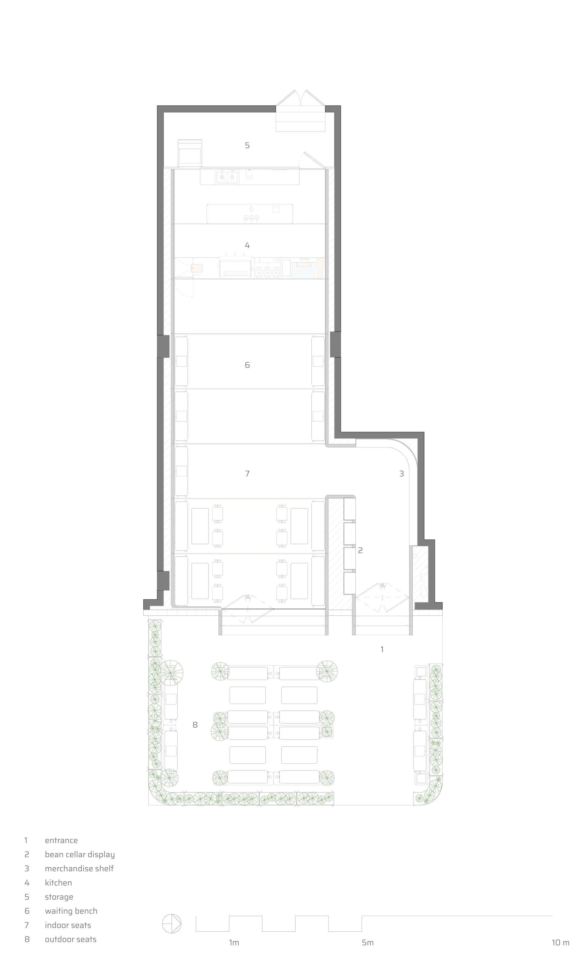
پلان معماری
فضای داخلی بر مبنای مسیر ورودی تونلی شکل طراحی شده است؛ پیشفضا به همراه نیمکتهایی دو طرفه در میانه مسیر، مشتریان را آرام وارد فضای کافیشاپ میکند. بخش سرویس و پیشخوان در انتهای مسیر قرار گرفته است تا هنگام ورود دید اول به فضای تجمعی و صندلیها باشد.
مصالح و متریال استفادهشده
- صفحات چِمِکس سفید با امکان چرخش
- شیشه برای نمای ورودی تونل
- چوب طبیعی برای مبلمان و جزئیات گرم داخلی
- مبلمان خارجی و گلدانها برای تزریق عنصر طبیعی به نما
جوایز و افتخارات
پروژه جدید است و هنوز جایزهای رسمی نگرفته است اما در رسانههای معماری بهخاطر نمای خاص و تعامل نور و حرکت مورد تحسین قرار گرفته است.









پرسشهای متداول
زیربنای کافیشاپ چقدر است؟
حدود ۱۵۰ متر مربع.
چرا از صفحات چِمِکس سفید استفاده شده؟
برای بازی نور و سایه و ایجاد نماهایی پویا که در طول روز جلوه متفاوتی داشته باشند.
آیا فضای بیرونی وجود دارد؟
بله؛ مبلمان بیرونی در ورودی برای مشتریانی که دوست دارند فضای باز و ارتباط با محیط بیرون را تجربه کنند، تعبیه شده است.
کدام مصالح حس گرم را به فضا بخشیدهاند؟
چوب طبیعی در مبلمان و جزئیات داخلی و استفاده از رنگ گرم در وسایل داخلی.
معرفی موتور جستجوی هوشمند مقررات ملی ساختمان
برای دسترسی کامل و دقیق به ضوابط مقررات ملی ساختمان و مفاد نظام مهندسی ساختمان، استفاده از سامانه جستجوی هوشمند ۲۳گانه ابزار مؤثری است؛ ابزاری که مسیر طراحی تا اجرا را با قانون و استاندارد همراه میکند.






![صد طراحی برتر، معماری برج سیتی لایف میلان [گرئه معماری زاها حدید] | طرح شماره 13](/_next/image/?url=https%3A%2F%2Fback-api.23gane.com%2Fstorage%2Fblogs%2F69183bfc534c4_15152.jpg&w=1920&q=75)







