معماری ساختمان سازمان نظام مهندسی قزوین طراحی شده توسط علیرضا تغابنی و دایا استدیو

ساختمان سازمان نظام مهندسی قزوین همراه پلان معماری
مقدمه
ساختمان سازمان مهندسی عمران پروژهای است در شهر قزوین با طراحی دفتر Dayastudio همراه NextOffice (با همکاری علیرضا تغابنی) که تلفیقی از هویت محلی، هندسه نمادین و فناوری ساخت پیشرفته را به نمایش میگذارد. این ساختمان نشان میدهد چگونه معماری اداری و نهادی میتواند نه فقط عملکرد صرفاً اداری داشته باشد بلکه نمایندهٔ ارزش مهندسی و نظم علمی باشد.
مشخصات پروژه
- معماران: Dayastudio و NextOffice علیرضا تغابنی
- موقعیت: قزوین، ایران
- زیربنا کل: حدود ۲۵۰۰ متر مربع
- سال ساخت: ۲۰۰۹
- کاربری: ساختمان نظام مهندسی استان قزوین



سبک معماری پروژه
سبک معماری این پروژه تلفیقی از فرمهای نمادین و ساختار مهندسی است. نمای بیرونی با پوسته دو لایه طراحی شده است؛ دیوار بیرونی بتن با الگوهای سوراخشده (پِرفُراسیون) و بخشهایی از نما با استفاده از آجر. فرم کلی بر پایه دو حلقه مربعی متحدالمرکز یا متداخل استوار است، الهامگرفته از الگوهای معماری بومی قزوین خصوصاً حیاط مرکزی خانهها و فضاهای تاریخی.
مفاهیم طراحی پروژه
- استفاده از دو حلقه مربع به هم گرهخورده برای جداسازی بخش مدیریت و بخش وظایف رسمی اداری در نما و فرم بنا؛ حلقه آجر برای مدیریت و حلقۀ بتن برای بخش رسمی؛
- انتقال الگویی از حیاط مرکزی معماری بومی در قالب عمودی برای ایجاد سطوح مختلف و ارتباط داخلی-بیرونی فضای اداری؛
- نمای سوراخشده برای ورود نور طبیعی به داخل و در عین حال محافظت در برابر تابش مستقیم و کنترل دید؛ این سوراخها به شکل حجمهای به اندازه آجر از بدنه دیوار کسر شدهاند.
ویژگیهای کلیدی پروژه
- تفکیک واضح کاربری مدیریت و امور رسمی اداری بر اساس فرم حلقهها؛
- ورودی شاخص با یک ایوان برجسته که به واسطه فاصله بین حلقۀ آجر و سطح زمین تعریف شده است؛
- سیستم نمای بتنی سوراخشده با قالب مخصوص برای حفظ تمیزی سوراخها در هنگام ساخت؛ استفاده از بتن خود-تراکم (self-consolidating concrete) برای اجرای دیوارهای برشی سوراخشده بدون اعمال ارتعاش شدید؛
- ساختار ترکیبی با دیوار برشی در پیرامون بیرونی و اسکلت ستون و تیر در بخشهای میانی و داخلی؛




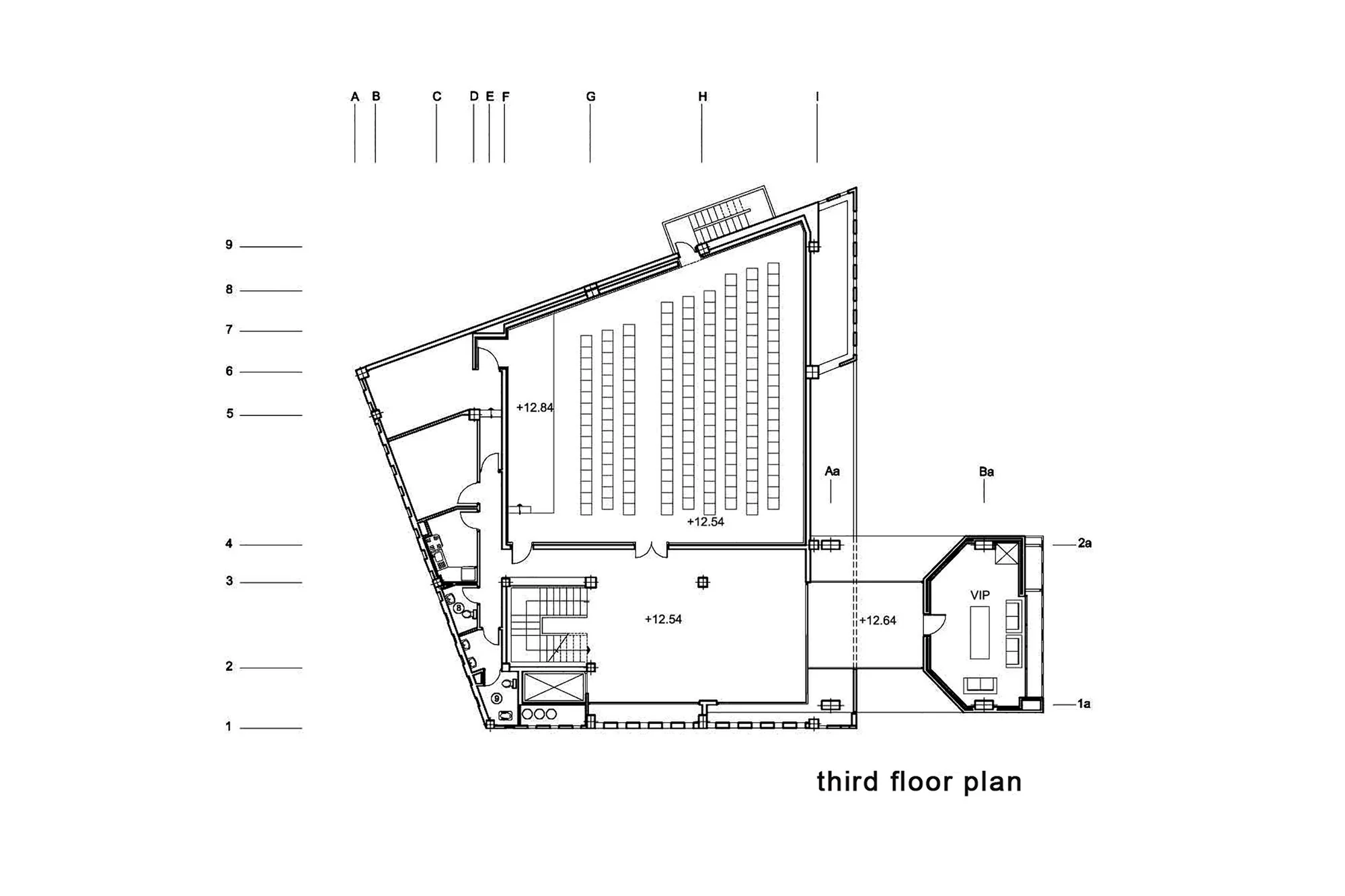
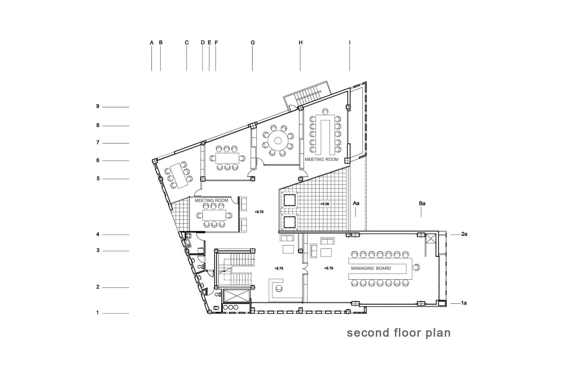
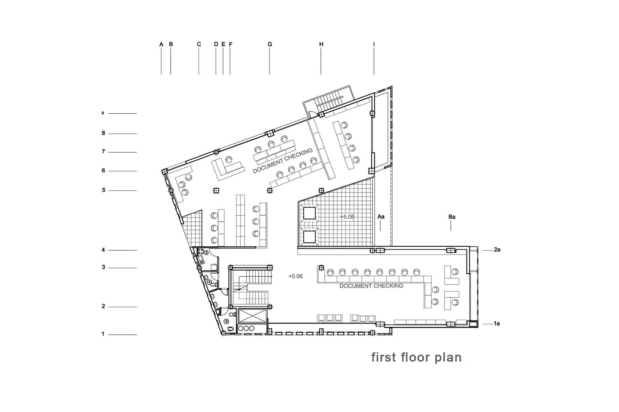
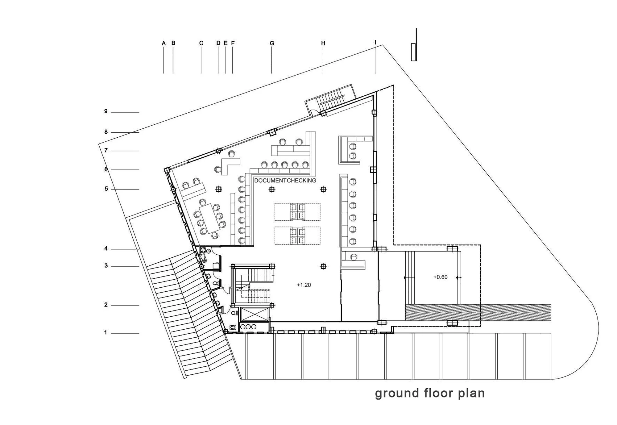
پلان معماری
پلان ساختمان شامل چند سطح است:
- طبقه همکف با فضای ورودی، فضاهای عمومی و مدیریت؛
- طبقات بالا به بخشهای اداری رسمی اختصاص یافتهاند؛
- حلقهها بصورت الحاقی و متداخل فرم را ایجاد میکنند؛ یکی از حلقهها ارتفاع عمودی بیشتر دارد برای بخش مدیریت، حلقه دیگر گستره افقی بیشتری برای بخش رسمی دارد؛
- فضاهای داخلی طوری چیده شدهاند که نور طبیعی از نورگرفتهای نمای سوراخشده و از محل حیاط مرکزی وارد شود.
بیوگرافی معمار پروژه
علیرضا تغابنی با دفتر NextOffice و Dayastudio در پروژههایی شناخته شده است، به خصوص در طراحی نیافتههایی که تلفیقی از هویت محلی، نور و فرم مهندسی دارند. این دفترها پروژههای متعدد اداری و نهادی در ایران داشتهاند و تلاش کردهاند معماریای خلق کنند که هم کاربرد عملی داشته باشد و هم ارزش فرهنگی و بصری را منتقل کند.
مصالح و متریال استفاده شده
- بتن برای پوسته سوراخشده، بدنه اصلی نما و دیوار برشی بیرونی؛
- آجر برای حلقهٔ آجر/حلقه مدیریت؛
- بتن خود تراکم برای دیوارهای سوراخشده جهت حفظ کیفیت سوراخها و عدم تأثیر منفی ناشی از ارتعاش در قالب؛



جوایز و افتخارات
اطلاعات خاصی درباره جوایز این پروژه در منابع موجود ذکر نشده است. اما این ساختمان به دلیل ترکیب فرم هنری با ساختار مهندسی، نمایانگر یکی از پروژههای مهم معماری نهادی در ایران و قزوین است.
پرسشهای متداول
۱. چرا نمای سوراخشده برای بنا انتخاب شده است؟
نمای سوراخشده امکان ورود نور طبیعی را فراهم میکند و در عین حال دید و تابش مستقیم خورشید را کنترل میکند. سوراخها به اندازهای ساخته شدهاند که اشکالی هندسی منظم ایجاد کنند و ویژگی اداری/مهندسی پروژه را تقویت نمایند.
۲. چگونه کاربریها مدیریت و رسمی در ساختمان تفکیک شدهاند؟
با استفاده از دو حلقه مجزا در فرم بنا؛ یک حلقه برای مدیریت ساخته شده با آجر و دیگری برای کاربری رسمی ساخته شده با بتن. این تفکیک بصری در نما و فرم، همراه با موقعیت مکانی و عملکردی هر بخش، تقویت شده است.
۳. چطور کیفیت ساخت دیوارهای سوراخشده حفظ شده است؟
قالبهای سفارشی ساخته شدهاند تا قالبگیری سوراخها دقیق باشد. همچنین بتن خاص خود-تراکم (SCC) به کار رفته تا بدون ارتعاش شدید کیفیت بتن تحت تأثیر قرار نگیرد.
۴. چه سیستم سازهای برای نما و ساختمان به کار گرفته شده است؟
نما با دیوار برشی سوراخشده در پیرامون بیرونی ساخته شده و بخش داخلی اسکلت تیر و ستون دارد؛ این ترکیب امکان حفظ شفافیت داخلی و استحکام لازم سازهای را همزمان فراهم کرده است.














سامانه مقررات ملی ساختمان
سامانه مقررات ملی ساختمان پلتفرم هوشمند مباحث ۲۳گانه مقررات ملی ساختمان است که به معماران و مهندسان امکان میدهد از همان مراحل اولیه طراحی بررسی نمایند آیا ضوابط مربوط به نما، مصالح، مقاومت سازه، نورگیری، ایمنی آتش، حریم خصوصی، سازگاری سازهای و دسترسی بر اساس مقررات ملی ساختمان و نظام مهندسی ساختمان رعایت شدهاند. پروژهای مانند سازمان مهندسی عمران باید مطابق این مقررات اجرا شود تا کیفیت، ایمنی و تطابق قانونی آن تضمین گردد.


















