معماری مجتمع مسکونی Residental Building 7-4 | بررسی تخصصی در 23Gane

معماری مجتمع مسکونی Residental Building 7-4 همراه پلان معماری
پروژه مسکونی 7-4 اثر دفتر Arhipolis واقع در شهر اسپلیت کرواسی، نمونهای است از طراحی بوسیله احجام متوازن و دیوارهای بتنی با بالکن های متعدد. این پروژه نشان میدهد چگونه ساختمان مسکونی میتواند هویتی پویا و سازگار با محیط شهری ارائه دهد. مجله معماری 23گانه این اثر را به عنوان نمونهای از تلفیق فرم، مصالح و تعامل با نور و نورسایه معرفی میکند.
مشخصات پروژه
- معمار: Arhipolis
- موقعیت: اسپلیت، کرواسی
- مساحت زیربنا: حدود ۹٬۰۰۰ متر مربع
- سال ساخت: ۲۰۰۶
- کاربری: مسکونی جمعی / آپارتمان مسکونی
سبک معماری پروژه
معماری پروژه تلفیقی از سبک معاصر همراه با ویژگیهایی از عملکردگرایی است. احجام ساختمان به صورت U-شکل تعریف شدهاند که فضای مرکزی بین بلوکها را به عنوان فضای مشترک و ارتباطی شکل میدهد. بالکنهای الحاقی («add-on balconies») طراحی را داینامیک کردهاند و ظاهر بنا بسته به زاویه دید، زمان روز و شرایط آبوهوا تغییر میکند.





مفاهیم طراحی پروژه
- ایجاد فضای ارتباطی بین واحدها از طریق فضای مرکزی U-شکل؛ این فضا علاوه بر آنکه امکان چشمانداز و نورگیری را افزایش میدهد، محوطه مشترک برای تعاملات میان ساکنان است.
- بالکنهایی که الحاق شدهاند نه تنها برای استفادهٔ فیزیکی ساکنان بلکه به عنوان عنصری بصری عمل میکنند؛ شکل و اندازهٔ متفاوت بالکنها باعث شده هر واحد مسکونی هویت بصری خاص خود را داشته باشد.
- استفاده از بتن به عنوان متریال غالب؛ صلابت و وحدت در فرم کلی، تلفیق با ظاهر ساده و رنگ طبیعی مصالح بتنی برای حفظ هویتی محلی.
ویژگیهای کلیدی پروژه
- بالکنهای الحاقی با سطوح تاخورده («folded balcony surfaces») که بازتاب نور و سایه را متغیر کرده و ظاهر پویا برای نما ایجاد میکنند.
- تنوع در شکل بالکنها بین واحدها به طوری که هر واحد هویتی متمایز داشته باشد.
- فرم U-شکل ساختمان که شامل بخش مسکونی و پارکینگ است؛ پارکینگ در بخش اوّلیه بخشی از حجم کف است و شکل کلی یکتا و منسجم است.
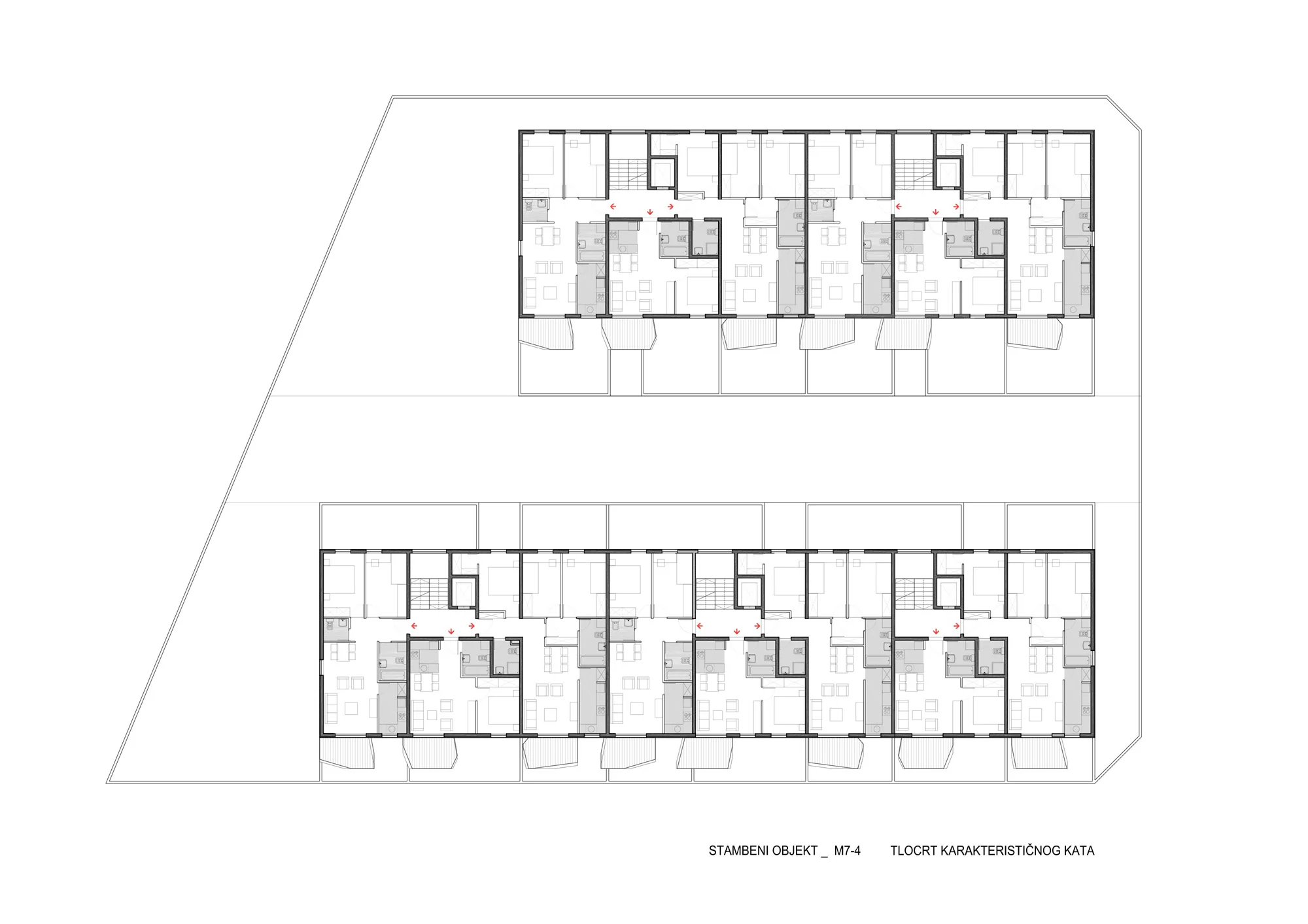
پلان معماری
پلان به گونهای طراحی شده است که ساختمانها در سه طرف فضا مرکزی U را شکل میدهند؛ بخش کف شامل پارکینگ است و واحدهای مسکونی در بخشهای بالاتر قرار دارند و بالکنهایی الحاقی به سمت بیرون امتداد دارند. این پلان امکان نورگیری بیشتر برای واحدها و دید به فضای باز مرکزی را فراهم میآورد.




بیوگرافی معمار پروژه
استدیو Arhipolis دفتر معماری مستقر در شهر اسپلیت کرواسی است که پروژههای مسکونی و عمومی انجام داده است. پروژه Residential Building 7-4 یکی از آثار شناخته شدهٔ آنهاست که در زمینه طراحی نما، فرم و تعامل با محیط شهری مورد توجه قرار گرفته است.
مصالح و متریال استفاده شده
- بتن به عنوان متریال غالب نما، احجام و سازه اصلی ساختمان
- استفاده از سطح بالکنها با مصالحی که بازتاب نور را کنترل کرده و شکل آنها باعث تغییر نورسایه در نما میشود
جوایز و افتخارات
در منابع موجود اشارهای به جوایز رسمی برای این پروژه نشده است. با این وجود، طراحی نما و فرم آن در رسانههای معماری به خاطر ظاهر بصری پویا و تلفیق بالکنها مورد تحسین قرار گرفته است.



پرسشهای متداول
۱. چرا فرم U-شکل انتخاب شده است؟
فرم U-شکل امکان ایجاد فضای مرکزی باز مشترک، دریافت نور بیشتر برای واحدها، تهویه طبیعی بهتر و دیدهای داخل ساختمان به سمت فضای باز را فراهم میکند.
۲. بالکنهای الحاقی چه تأثیری بر نما و زندگی ساکنان دارند؟
آنها علاوه بر افزایش فضای بیرونی خصوصی برای هر واحد، نما را داینامیک میکنند؛ بازتاب نور و سایه در سطح بالکنها باعث میشود نما در طول روز تغییر کند و ظاهری زنده داشته باشد.
۳. استفاده از بتن چه مزایایی داشته است؟
بتن امکان اجرای فرمهای صاف و ساده، استحکام بالا، هزینه نگهداری پایین و رنگ طبیعی دارد؛ همچنین به تأکید بر فرم ساختمان کمک کرده است.
۴. آیا فضاهای عمومی بین بلوکها طراحی شدهاند؟
بله؛ فضای مرکزی که U-شکل را شکل میدهد به عنوان محوطه باز مشترک بین واحدها عمل میکند و امکان تعامل اجتماعی و دید متقابل فراهم است.
سامانه مقررات ملی ساختمان
سامانه مقررات ملی ساختمان ابزار هوشمند مباحث ۲۳گانه مقررات ملی ساختمان است که امکان جستجوی دقیق ضوابط مربوط به نما، سازه، نورگیری، مصالح، ایمنی صوتی و حرارتی، دسترسی و تهویه را برای معماران و مهندسان فراهم میکند.









