صد طراحی برتر، منهتن بیچ رزیدنس معماری روی سطح شیبدار سواحل کالیفرنیا | طرح شماره 43

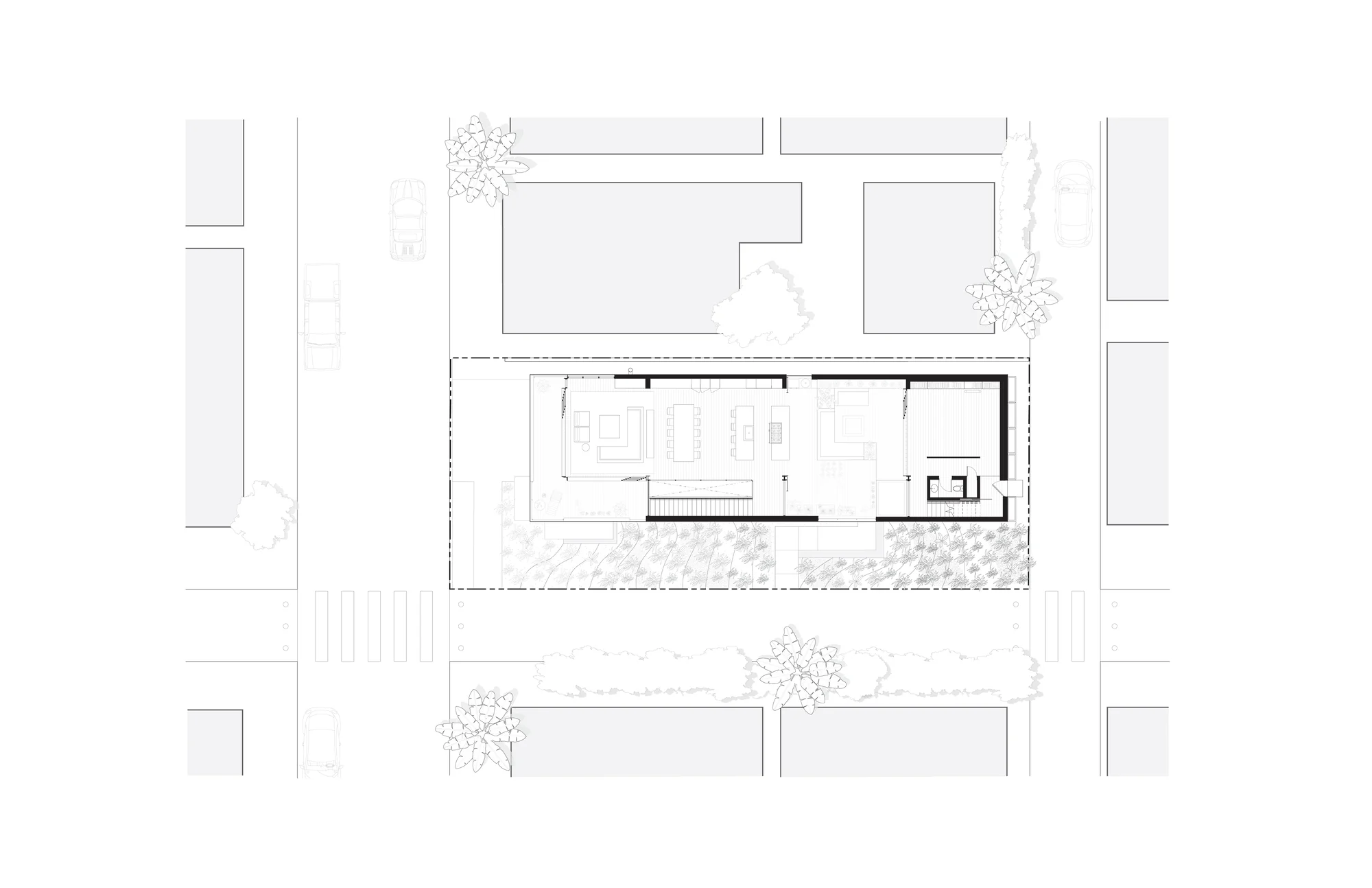
منهتن بیچ رزیدنس معماری روی سطح شیبدار در سواحل کالیفرنیا همراه پلان معماری
نوشته شده در تحریریه مجله 23گانه
پروژه منهتن بیچ رزیدنس واقع در شهر منهتن بیچ کالیفرنیا، ساخته شده توسط دفتر Olson Kundig، نمونهای برجسته از تلفیق طراحی معاصر با زندگی ساحلی و توجه به چشمانداز اقیانوس است. این خانه نه فقط پاسخگوی نیازهای زندگی فعال خانوادگی است بلکه تلاش کرده است در بافت شهری متراکم، حریم خصوصی، نور طبیعی و دید به افق را حفظ نماید.
مشخصات پروژه
- معمار: Olson Kundig
- موقعیت: منهتن بیچ، کالیفرنیا، ایالات متحده
- زیربنا: تقریباً ۵٬۳۱۰ فوت مربع (≈ ۴۹۳ متر مربع)
- سال تکمیل: ۲۰۲۱
- تعداد اتاق خواب: شامل چندین سوئیت خواب (اتاقخواب خانوادگی + اتاق کودکان)



سبک معماری پروژه
این خانه سبک معاصر دارد با تأثیری از معماری مدیسنچری ایالات کالیفرنیا. فرم بنا به صورت حجمهایی با قطعات جامد و شفاف است، نماهایی با ترکیب بلوکهای بتنی، فلزات رنگداده شده و پنجرههای گسترده. طراحی تراسها و پوشش نما طوری است که هم دید به اقیانوس حفظ شود و هم سایه لازم فراهم گردد.
مفاهیم طراحی پروژه
- بهرهگیری از تفاوت ارتفاع (slope) سایت برای ایجاد تراشیدگیهای حجمی و فضاهایی که بسته به وضعیت زمین دید متفاوتی ارائه دهند
- کنترل شفافیت و حریم خصوصی با استفاده از سطوح شفاف و کدر در نماها و تراسها
- ترکیب فضاهای داخلی و بیرونی؛ اتاق نشیمن و آشپزی باز که با پنجرههای لغزنده و دیوارهای شیشهای به تراسها باز میشوند تا تجربه زندگی ساحلی کاملتر باشد
ویژگیهای کلیدی پروژه
- طراحی پلکانی بنا به علت شیب زمین؛ فضاها به صورت پلهای اجرا شدهاند و خانه شامل چند حجم متصل است
- دیوارهایی از بلوکهای بتنی بلوک های CMU همراه با پنلهای فلزی سیاه و پنجرههای بزرگ برای نما
- فضای نشیمن، آشپزخانه و غذاخوری در طبقه بالایی که دید مستقیم به اقیانوس دارد و پنجرههای بزرگی که به تراس باز میشوند
- دسترسی به نور طبیعی بالا و طراحی داخلی با چوب روشن برای کفپوش و سقف، مصالحی که حس گرما ایجاد میکنند





پلان معماری
پلان بنا در سه سطح اصلی سازماندهی شده است:
- سطح پایین شامل پارکینگ، فضای ذخیرهسازی و امکانات خدمترسانی در زیر ساختمان.
- سطح میانی به عنوان ورودی اصلی و فضای گذار؛ فضای نیمهخصوصی و نیمهبیرونی مانند محوطه سبز و حیاط مرکزی که مرز میان عمومی و خصوصی را نرم میکند.
- سطح بالایی فضای زندگی روزمره: نشیمن، آشپزخانه، غذاخوری و تراس بزرگ رو به اقیانوس که با پنجرههای کامل بازشونده و دیوارهای شیشهای ارتباط میان داخل و خارج را برقرار میکند.
بیوگرافی معمار پروژه
استدیو Olson Kundig دفتر معماری شناختهشده آمریکایی است با طراحانی همچون Tom Kundig و Edward Lalonde که در پروژههای مسکونی و عمومی خلاقانه شناخته میشوند. سبک این دفتر ترکیبی است از عملکرد، جنس مصالح، فرم مجسمهای و ارتباط نزدیک با محیط طبیعی و منظر اطراف کاربری پروژه.
مصالح و متریال استفاده شده
- بلوک بتنی (Concrete Masonry Units) در ضخامتهای متفاوت (۸، ۱۲، ۱۶ اینچ) برای دیوارها
- پنل فلزی رنگداده شده سیاه برای نما
- شیشههای بزرگ قابل لغزش برای نما و تراسها جهت دید و نور طبیعی
- چوب روشن برای کفپوش و پنلهای داخلی سقف برای حس گرم و طبیعی بودن فضا








جوایز و افتخارات
خانه منهتن بیچ رزیدنس جوایز متعددی دریافت کرده است؛ از جمله جایزه خانه (Housing Award) مؤسسه معماری آمریکا (AIA) برای طراحی معماری مسکونی
پرسشهای متداول
۱. فضاهای داخلی چگونه با فضای بیرونی ارتباط دارند؟
فضاهای زندگی مثل آشپزخانه و نشیمن در طبقه بالایی دارای پنجرههای لغزنده و دیوارهای شیشهای هستند که به تراس باز میشوند و دید به افق اقیانوس را فراهم میآورند.
۲. چگونه حریم خصوصی حفظ شده است؟
با ترکیب بخشهایی از نما که شفاف نیستند، قرارگیری دیوارهای بتنی و استفاده از نماهای کدر در سطوحی که دید خیابان یا ساختمانهای مجاور وجود دارد.
۳. طراحی در برابر شیب سایت چه راهکاری دارد؟
خانه به صورت پلکانی طراحی شده است تا با تغییر سطح زمین هماهنگ گردد؛ فضاهای داخلی و تراسها به صورتی جاگذاری شدهاند که شکل زمین در پروژه به فرصت تبدیل شده است.
۴. چه مصالحی گرما و حس محل را در خانه ایجاد کردهاند؟
چوب روشن، چوب طبیعی داخلی برای کفها و سقفها به همراه رنگها و پرداختهای نرم و گرم؛ همچنین استفاده هوشمند از نور طبیعی برای کاهش نیاز به نور مصنوعی در طول روز.



سامانه مقررات ملی ساختمان
سامانه مقررات ملی ساختمان ابزار هوشمند مباحث ۲۳گانه مقررات ملی ساختمان است که امکان جستجوی دقیق ضوابط طراحی، مصالح، ایمنی سازه، نورگیری و دید، و کیفیت محیطی را برای معماران و مهندسان فراهم میکند. در پروژهای مانند منهتن بیچ رزیدنس، این سامانه کمک میکند تا طراحی نما، انتخاب مصالح، تهویه و دسترسی مطابق مقررات ملی ساختمان و نظام مهندسی ساختمان انجام شود؛ تضمینی برای کیفیت، ایمنی و کارکرد درست ساختمان.














