معماری پروژه لوکس One at Palm در پالم جمیرا دبی | آرشیتکت : SOMA

بررسی معماری پروژه One at Palm در پالم جمیرا دبی | همراه با پلان های معماری
پروژه «One at Palm» در ورودی جزیره مصنوعی پالم جمیرا دبی، اثری از دفتر معماری SOMA است که با هدف تعریف سطح جدیدی از زندگی لوکس طراحی شده است. این ساختمان شامل ۹۰ واحد مسکونی منحصر به فرد با متراژهایی از حدود ۲۷۰ تا ۲۰۰۰ مترمربع است و با دید کامل به دریا، دریاچه و افق شهری، موقعیت شاخصی دارد.
مشخصات پروژه
- معمار: SOMA
- موقعیت: دبی، امارات متحده عربی
- زیربنا: حدود ۸۴٬۰۰۰ مترمربع
- سال تکمیل: ۲۰۲۱
- کاربری: مسکونی لوکس
سبک معماری پروژه
این پروژه در سبک معماری معاصر قرار دارد که فرمهای پویا، ترکیب باز و بسته، تراسهای وسیع و استفاده از ساختار پیشرفته را به نمایش گذاشته است. حجم ساختمان کِشیده شده و هر طبقه با بیرون زدگی یا عقب نشینی، امکان داشتن تراس خصوصی را برای تمام واحدها فراهم آورده است.





مفاهیم طراحی پروژه
- تمرکز بر منظر دوگانه: شمال منظره جزیره پالم و جنوب منظره مارینا دبی.
- ایجاد هر واحد با «تراس خصوصی».
- استفاده از سازه با بیرون زدگی حدود هفت متر در هر طبقه و تعداد بسیار اندک ستون برای دست یابی به فضای باز و نمای معلق.
ویژگی های کلیدی پروژه
- هر واحد دارای تراس وسیع با منظره کامل و امکان اجرای فضای سبز و استخر خصوصی.
- طراحی سازهای پیشرفته با استفاده از تیرهای پس کشیده که امکان بیرون زدگی و کنسول ها را فراهم کرده است.
- مجموعه امکانات فراوان مانند باشگاه ساحلی، استخر بیرونی و داخلی، سالن وی آی پی، اسکله قایق برای ساکنان.
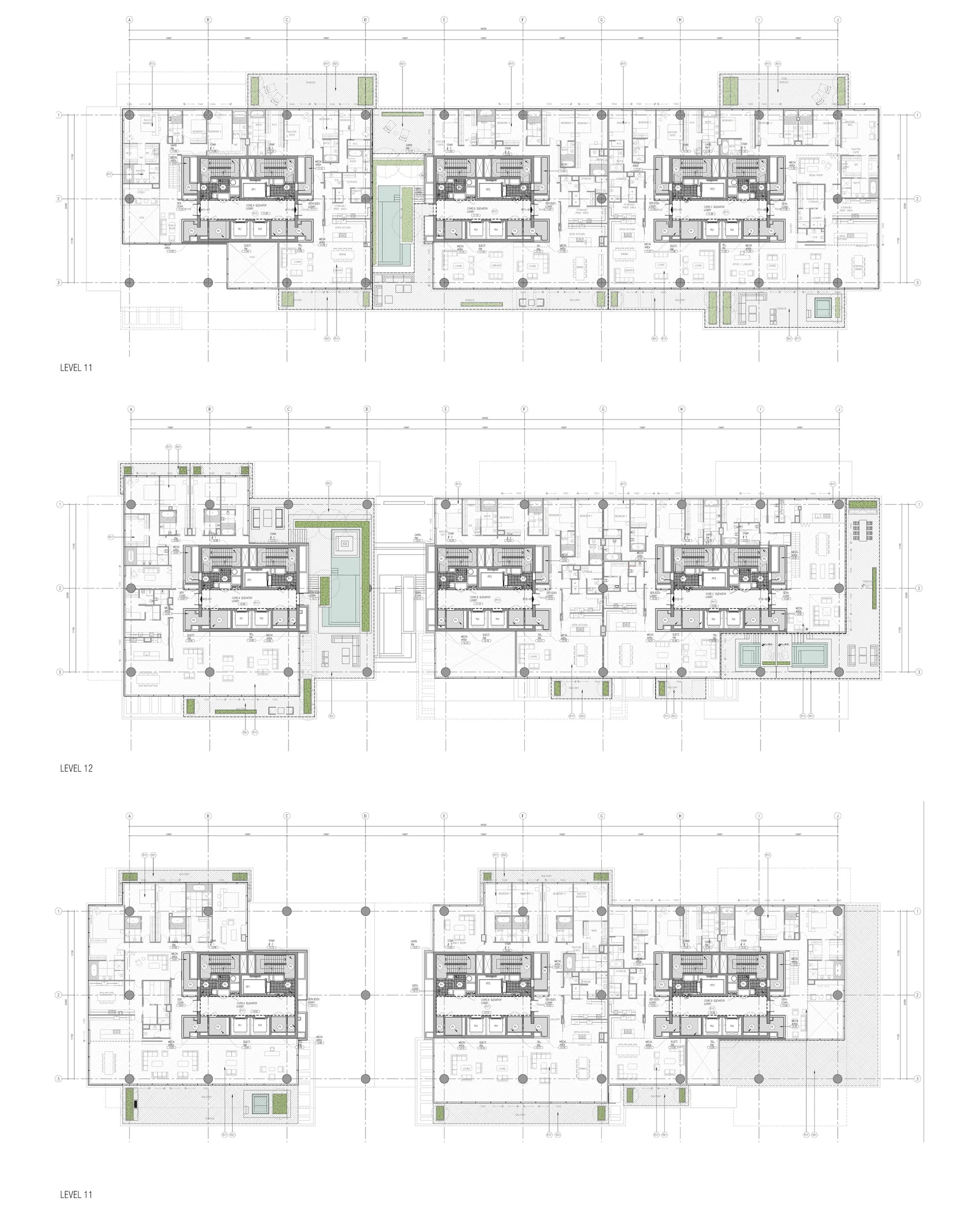
پلان معماری پروژه
پلان ساختمان به گونهای طراحی شده است که واحدها با ترکیبی از عقب نشینی و بیرون زدگی در هر طبقه چیده شدهاند، تا هر واحد دید و تراس مستقل داشته باشد. مسیر ورود، لابی ویژه، و ترانسفر خصوصی برای پنت هاوس ها در نظر گرفته شده است تا تجربهای سطح بالا فراهم شود.




مصالح و متریال استفاده شده
- نمای بیرونی با پنل های فلزی، شیشه های بزرگ و همچنین بتن نمایان برای ایجاد هویتی قوی طراحی شده است.
- تراسها با پوشش چوبی یا پوشش سبز و سیستم حفاظتی برای سازگاری با اقلیم گرم دبی طراحی شدهاند.
- فضاهای داخلی با متریال لوکس مانند سنگ، چوب طبیعی، مبلمان سفارشی همراه با دابل هایت برای برخی واحدها ترکیب شده اند.
بیوگرافی معمار پروژه
دفتر SOMA، مستقر در نیویورک، از سال ۲۰۰۴ فعالیت میکند و پروژههایی در حوزه مسکونی لوکس، هتل، تجاری و ترکیبی در سطح بینالمللی ارائه داده است. رویکرد آنها ترکیبی از طراحی با فناوری بالا، فرمهای جسورانه و توجه به تجربه کاربری لوکس است.
پرسشهای متداول
۱. چرا این پروژه «تراس خصوصی باغی» برای هر واحد دارد؟
زیرا معمار تلاش کرده است زندگی داخل و خارج را ادغام کند و تراس بزرگ با منظره شمال و جنوب را برای هر واحد ممکن سازد.
۲. چگونه تراسهای وسیع در اقلیم گرم دبی امکانپذیر شدهاند؟
با استفاده از طراحی سازهای پیشرفته و سیستم سایهبان و تهویه مناسب برای تحمل شرایط اقلیمی.
۳. چه تمایزی میان این پروژه و سایر برجهای مسکونی وجود دارد؟
ترکیب تراس بازی برای هر واحد، تعداد بسیار کم ستون ها، و تمرکز بر حریم خصوصی در سطح لوکس، از شاخص های تفاوت هستند.
۴. واحدها از نظر متراژ چه بازهای دارند؟
از حدود ۲۷۰ تا حدود ۲۰۰۰ مترمربع.
۵. امکانات رفاهی مجموعه شامل چه مواردی است؟
باشگاه ساحلی، اسکله قایق، استخرهای اختصاصی، فضاهای جمعی لوکس و سرویس سطح هتل پنج ستاره.
سامانه مقررات ملی ساختمان
سامانه مقررات ملی ساختمان ابزاری برای مهندسان و معماران ایرانی است که امکان جستجوی سریع در مباحث مقررات ملی ساختمان و ضوابط نظام مهندسی ساختمان را فراهم میکند. هدف از این سامانه ارتقای کیفیت طراحی، انطباق با ضوابط فنی و اجرایی و افزایش کارآمدی پروژههای ساختمانی در ایران است.



















