logo
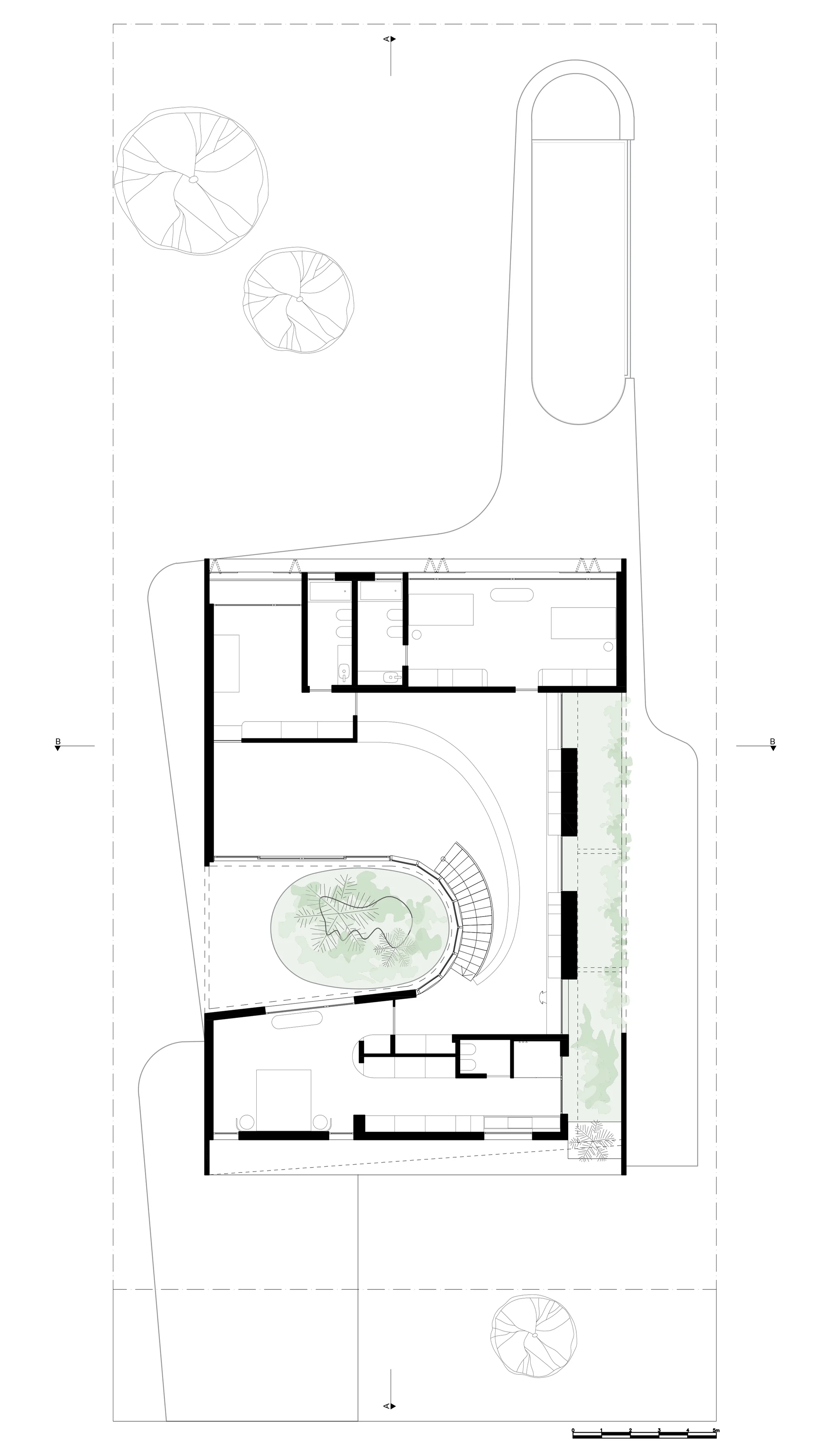
خانه بیضی: طراحی تورتوریچی و لانزا | بلا ویستا، آرژانتین