بررسی معماری ویلای تهی وار [Voids] آرشیتکت : شرکت طرح و ساخت ازنو

بررسی معماری ویلای تهی وار (Voids) همراه پلان های معماری
23GaneMag | مجله معماری 23گانه
ویلای تهی وار، واقع در منطقهٔ کوهسار در حومهٔ تهران، اثری از دفتر معماری ازنو است که در سال ۲۰۲۴ با مساحتی حدود ۵۴۰ مترمربع اجرا شده است. این پروژه با هدف خلق تجربهای پویا از ارتباط میان فضاهای درون و بیرون، با تأکید بر فضاهای خالی (voids) و حجم های محصور، طراحی شده است و تلاش دارد تا زندگی ویلایی را با کیفیت بصری و فضایی ارتقا بخشد.
مشخصات پروژه
- معمار: ازنو
- موقعیت: کوهسَر، استان البرز، ایران
- زیربنا: حدود ۵۴۰ مترمربع
- سال تکمیل: ۲۰۲۴
- کاربری: ویلا مسکونی خصوصی
سبک معماری پروژه
این ویلا در فضای معماری معاصر ایران قرار میگیرد که ضمن بازنمایی فرم هایی ساده و حجم های منظم، با بازی میان فضای «پر» و «خالی» به خلق تجربه فضایی متفاوت پرداخته است. حجم ساختمان در بخشی باز به منظره شمالی و غربی گشوده است و از سمت های شرقی و جنوبی به دلایل شرایط همسایگی، بسته طراحی شده است؛ بدین ترتیب ترکیبی از درون گرایی و برون گرایی پدید آمده است. خلأها و فضاهای حیاطی و تراس ها در این پروژه نقش کلیدی دارند و باعث شدهاند که ساختمان با محیط اطرافش تعامل بصری و عملکردی پیدا کند.




مفاهیم طراحی پروژه
- تشکیل چندین حیاط و خلأ داخلی که فضاهای گوناگونی را در سطوح مختلف ایجاد میکنند؛ یک حیاط بزرگ در شمال، یک خلأ میانی و حیاط کوچکتر در جنوب.
- واضح کردن مرز بین فضای داخلی و فضای بیرونی؛ معماری به گونهای طراحی شده که امکان «گردش فضایی» در فضاهای نیمباز و باز فراهم شود و کاربران بتوانند در مسیرهای گوناگون درون و بیرون خانه تجربه کنند.
- استفاده از متریال آجر با رنگ گرم در خلأها و حجمهای «خالی»، در مقابل رنگ روشن در حجمهای «پر»، تا تضاد میان نور و سایه، سنگینی و سبکی، خالی و پر بهصورت بصری و عملکردی به نمایش گذاشته شود.
ویژگیهای کلیدی پروژه
- طراحی «حیاط مرکزی» که همچون شُعلهای فضای ویلا را حول خود جمع کرده و نور را تا زیرزمین هدایت میکند.
- ایجاد مسیرهای پیوسته و متنوع در سطوح مختلف، پلهها، تراسها و بازشوها که امکان حرکت آزادانه در فضاهای باز و نیم باز را فراهم میکنند و افراد را به کشف خانه دعوت مینمایند.
- ترکیب بستر طبیعی با معماری به گونه ای که منظره شمالی و غربی بدون مانع از ساختمان قابل مشاهده است و در عین حال بخش شرقی و جنوبی برای ایجاد حریم خصوصی بسته طراحی شدهاند.
- انتخاب متریال به شکلی که خلأها با آجر خاکی رنگ پوشانده شدهاند و حجمهای پر با رنگ روشن؛ این طراحی، حس دوگانگی «فضای سنگین خالی» و «فضای روشن پر» را القا میکند.
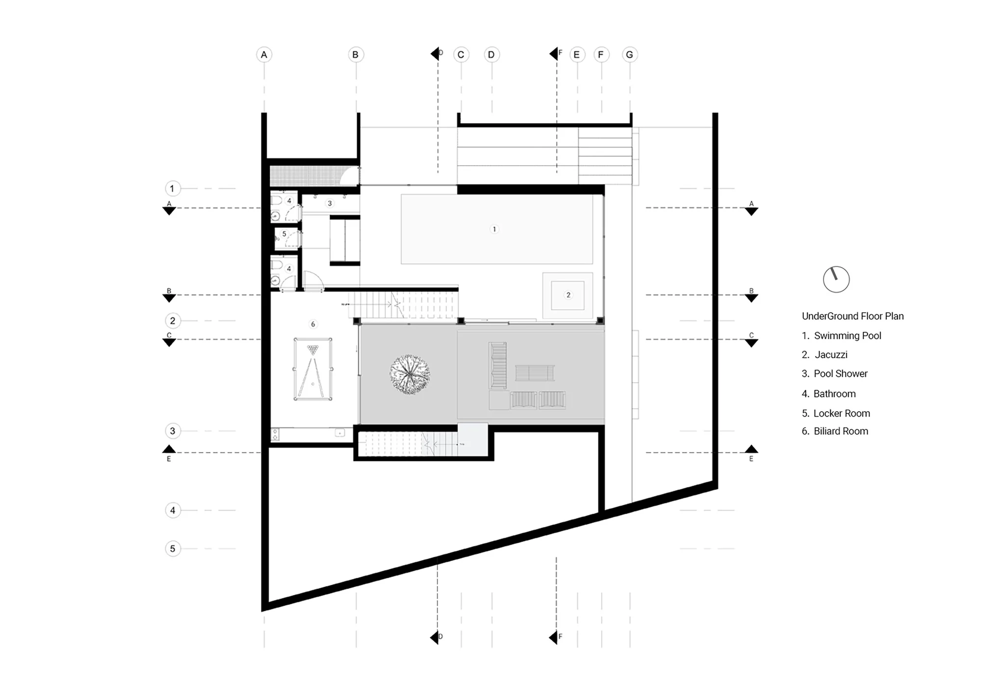
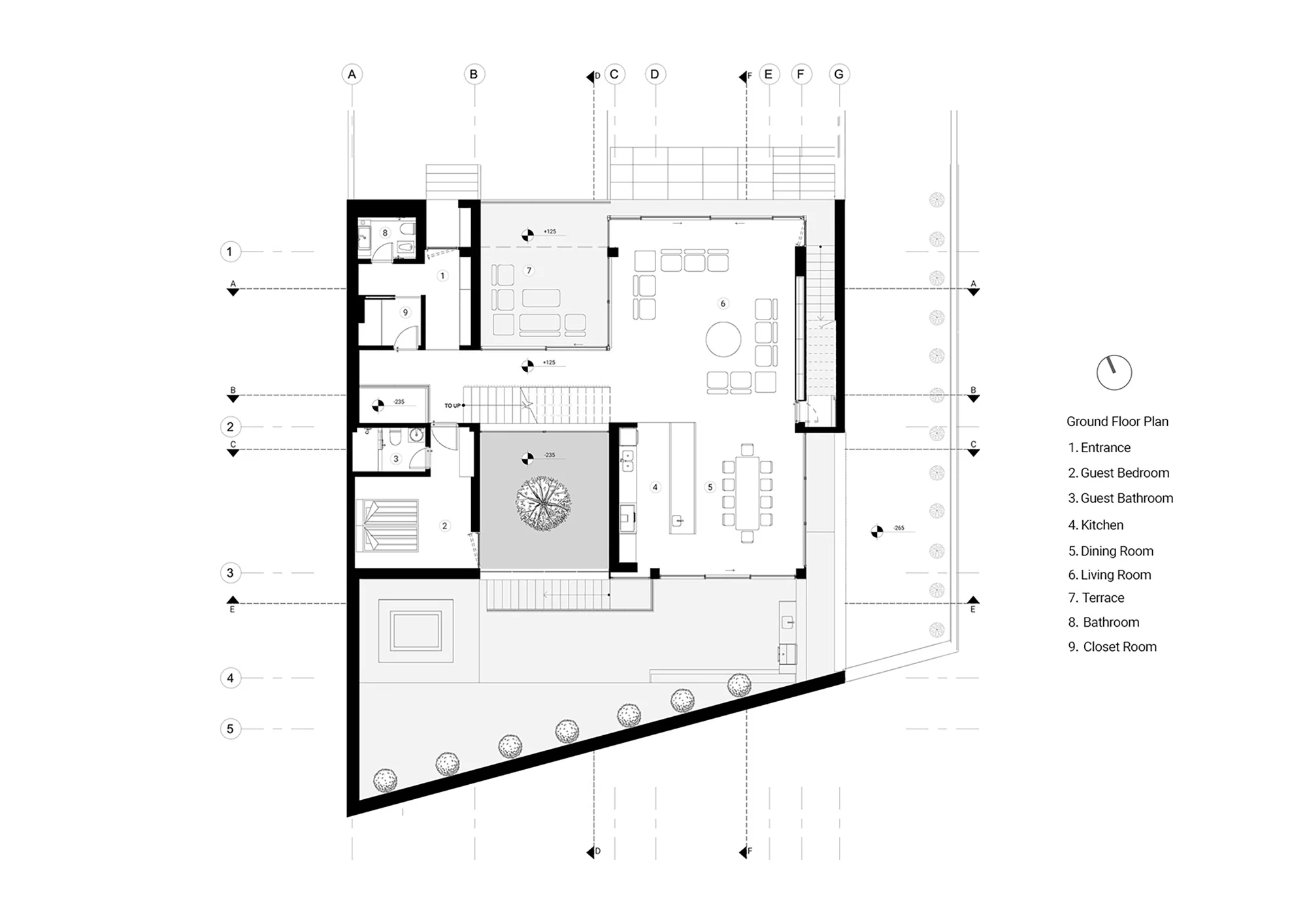
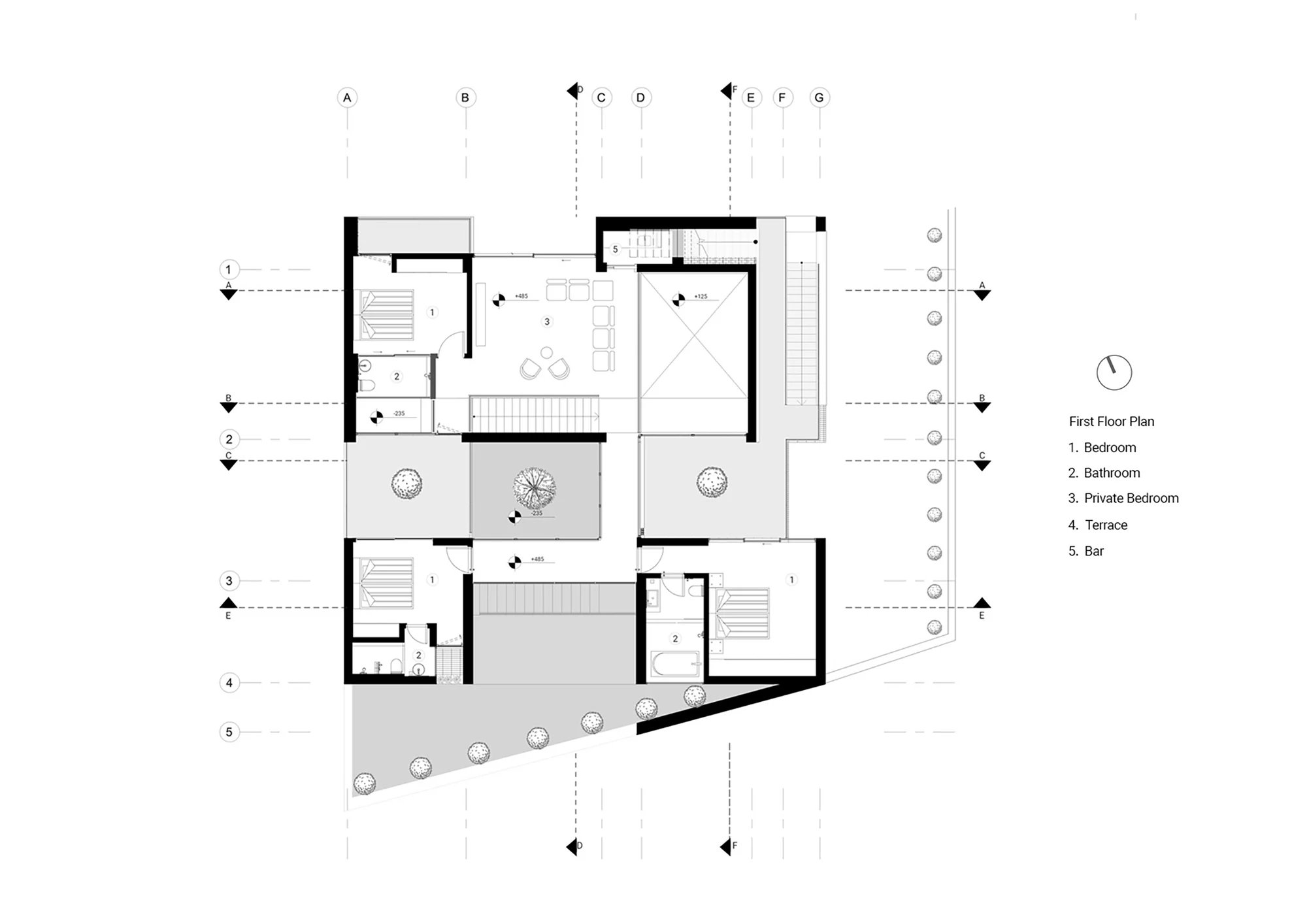
پلان معماری پروژه
پلان پروژه شامل زیرزمین، طبقه همکف و طبقه اول است. در زیرزمین فضاهای تفریحی قرار گرفته اند، در طبقه همکف بخشهای عمومی مانند نشیمن و ناهارخوری طراحی شده اند و در طبقه اول فضاهای خصوصی قرار دارند. حیاط میانی (semi-central courtyard) و خلأهای متعدد باعث شدهاند ارتباط بصری و حرکتی میان سطوح حفظ شود.




مصالح و متریال استفاده شده
- آجر به عنوان متریال غالب در فضای خلأها و پوسته های داخلی؛ استفاده از بافت آجر برای ایجاد حس مکان و ارتباط با معماری ایرانی.
- رنگ روشن برای حجم های پر تا خوانایی فرم بالاتر رود و تضاد میان پر و خالی مشخص شود.
- ترکیب خشکی و بازشوها، پنجرههای طولانی و تراسها برای همراهی فضای داخلی با طبیعت اطراف؛ همچنین استفاده از مسیرهای نیمباز و باز برای بهرهگیری از هوای کوهستانی منطقه.
بیوگرافی معمار
استدیو معماری ازنو ، در ایران فعال بوده و پروژههای مسکونی خلاقانه ای را در مناطق شهری و حومه طراحی کرده است. رویکرد این شرکت شامل بازی با فرم، توجه به متریال بومی، طراحی فضاهای خالی (voids) و خلق تجربه فضایی پویا است. ویلای تهی وار یکی از جدیدترین پروژههای آنهاست که نشاندهنده توانایی شان در ترکیب مفاهیم معماری و محیط طبیعی ایران است.






23گانه | سامانه مقررات ملی ساختمان
سامانه هوشمند مقررات ملی ساختمان، ابزاری رایگان برای مهندسان و معماران ایرانی است که امکان جستجوی دقیق در میان مباحث مقررات ملی ساختمان و ضوابط «نظام مهندسی ساختمان» را فراهم میکند. این سامانه با هدف ارتقای کیفیت طراحی و اجرای پروژههای ساختمانی در سطح کشور عمل میکند و دسترسی به منابع فنی را تسهیل مینماید.








پرسشهای متداول
۱. منظور از «تهیوار» چیست؟
در این پروژه «تهی وار» (void) به فضاهایی اطلاق میشود که حجم معماری آنها را محصور نکرده؛ این فضاها حیاطها، خلأهای داخلی و تراسها هستند که بر تعامل درون و بیرون تأکید دارند.
۲. چگونه میزان حریم خصوصی در ویلا حفظ شده است؟
فضاهای جنوبی و شرقی با جدارههایی بسته طراحی شدهاند تا دید به همسایگیها محدود شود، در حالی که شمال و غرب حیات دید و منظره را باز نگه داشتهاند.
۳. چه ارتباطی میان زیرزمین، همکف و اول در پروژه وجود دارد؟
حرکت فضایی در پروژه طوری طراحی شده که خلأها و مسیرهای نیمباز افراد را میان سطوح مختلف هدایت میکنند و تجربه حرکت را تبدیل به نوعی گردش در معماری مینمایند.
۴. چرا انتخاب آجر در فضای خالی اهمیت دارد؟
آجر بهعنوان متریالی با بافت گرم و پیوند با معماری محلی، در فضای خلأها استفاده شده تا حس سنگینی، ماندگاری و کاهش مقیاس محیط ایجاد گردد و عناصر پر با رنگ روشن تضاد یابند.
۵. این ویلا چه هدفی را دنبال کرده است؟
هدف خلق بنایی است که میان فرمهای معماری متداول ویلا و کیفیت فضایی بالا حرکت کند؛ جایی که زندگی شهری و طبیعت حومه تهران با یکدیگر در تعادل باشند و تجربهای متفاوت از سکونت ارائه شود.


























