logo
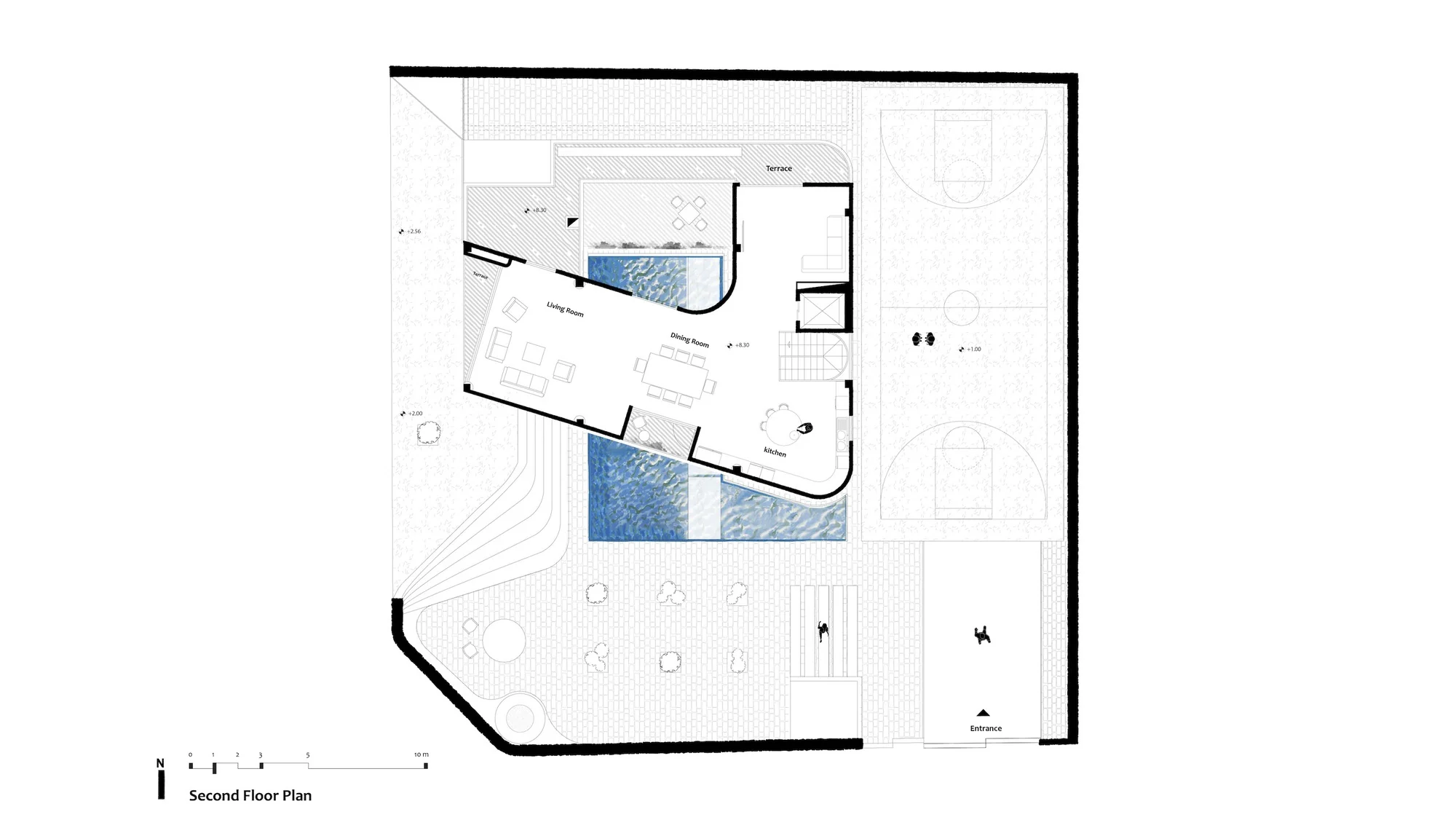
معماری ویلا حیاط مرکزی: طراحی علیرضا تقابنی | لواسان، ایران