معماری ویلای ریو با پلان V شکل و طراحی مدرن

بررسی معماری ویلای ریو با پلان وی شکل در شیلی
خانه ریو یکی از پروژههای شاخص دفتر معماری لابارک در کشور شیلی است که با هدف ادغام زندگی روزمره با طبیعت پیرامون طراحی شده است. این خانه در منطقهای سبز و آرام ساخته شده و بر پایه ارتباط نزدیک میان فضاهای داخلی و مناظر طبیعی شکل گرفته است.
مشخصات پروژه
- معمار: لابارک
- مکان: ریونگریو، شیلی
- کاربری: مسکونی
- مساحت: حدود ۳۵۰ متر مربع
- سال ساخت: ۲۰۲۴
سبک معماری
این پروژه نمونهای از معماری معاصر است که در آن سادگی فرمی، مصالح طبیعی و نور بهعنوان عناصر اصلی طراحی در نظر گرفته شدهاند. ترکیب حجمهای ساده با خطوط افقی و عمودی، به ساختمان شخصیتی آرام و هماهنگ با محیط میبخشد.
مفاهیم طراحی
ایده اصلی طراحی خانه ریو بر اساس دو مفهوم شکل گرفته است:
۱. تعادل بین خلوت و تعامل؛ فضاهایی برای آسایش و در عین حال ارتباط با فضای باز.
۲. هماهنگی با طبیعت؛ استفاده از نور طبیعی، تهویه طبیعی و دید مستقیم به مناظر اطراف.
فضای نشیمن، غذاخوری و آشپزخانه به گونهای طراحی شدهاند که از هر نقطه چشماندازی باز به فضای سبز وجود دارد. سقفهای بلند و بازشوهای وسیع، حس پیوستگی درونی و بیرونی را تقویت میکنند.



ویژگیهای کلیدی پروژه
- استفاده از چوب و بتن به عنوان مصالح اصلی
- طراحی فضاهای پیوسته و انعطافپذیر
- حضور پررنگ نور طبیعی در تمامی فضاها
- حیاط مرکزی برای تهویه و نورگیری طبیعی
- ترکیب حجمهای ساده با بافت مصالح طبیعی
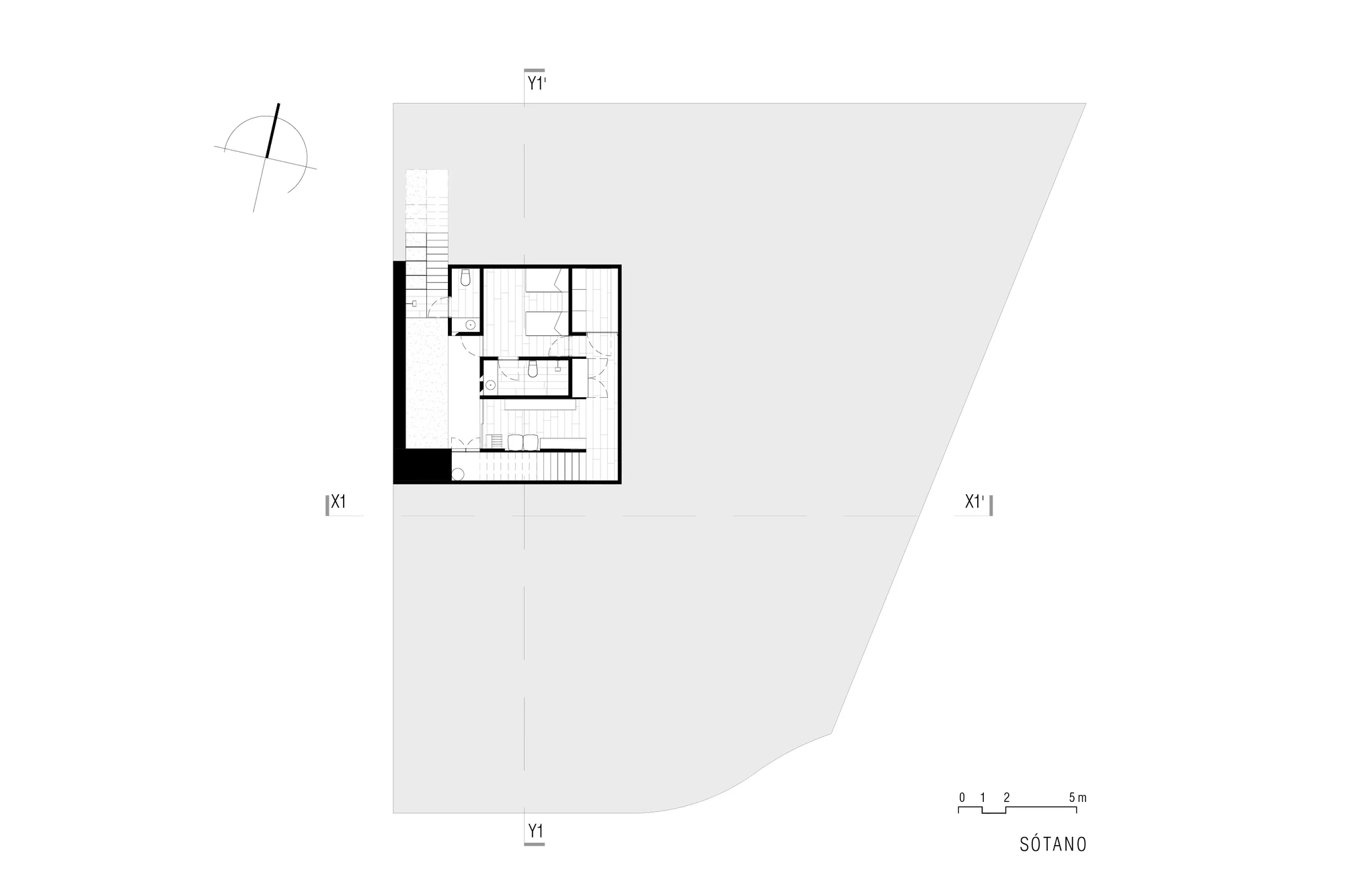
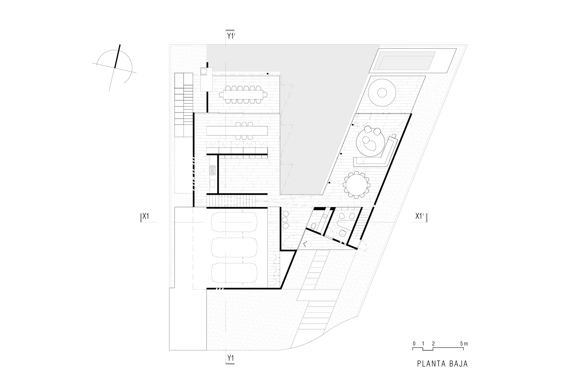
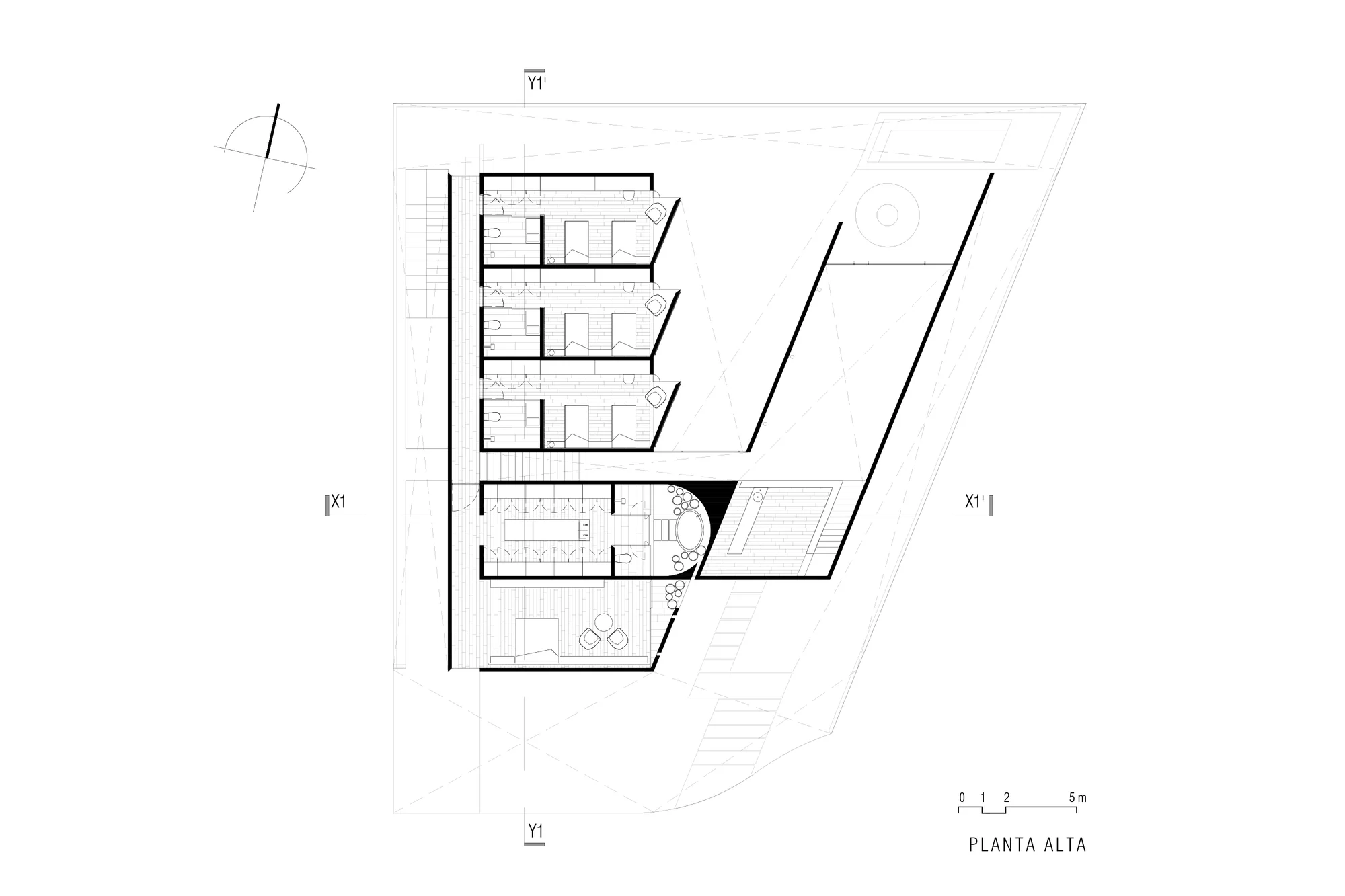
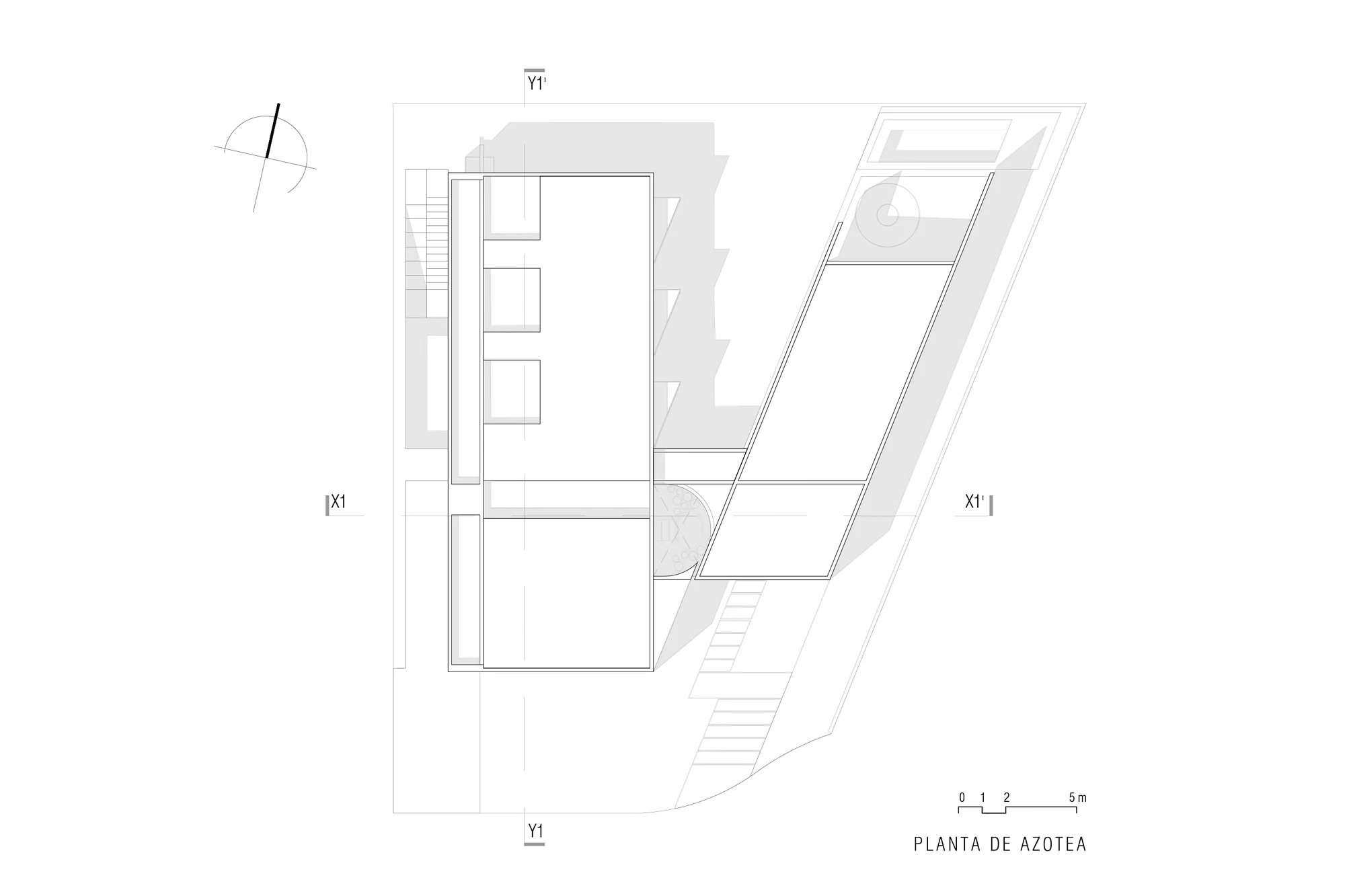
پلان معماری
پلان خانه ریو بر اساس سازماندهی عملکردی در سه بخش اصلی شکل گرفته است:
۱. بخش خصوصی شامل اتاقخوابها
۲. بخش عمومی شامل پذیرایی و آشپزخانه
۳. بخش خدماتی شامل فضاهای پشتیبانی
این تفکیک عملکردی با تغییر سطح و نور انجام شده و جریان حرکت در فضا به شکلی نرم و طبیعی پیش میرود.
بیوگرافی معمار پروژه
دفتر معماری لابارک در شیلی با تمرکز بر طراحی پایدار و توجه به محیط طبیعی فعالیت میکند. این دفتر به ترکیب عملکرد، سادگی و احساس در طراحی فضاها شهرت دارد.




مصالح و متریال مصرفی
چوب طبیعی، بتن نمایان، شیشه و فلز از مصالح اصلی این پروژه هستند. انتخاب این مواد با هدف ماندگاری، زیبایی و هماهنگی با طبیعت انجام شده است.
جوایز و افتخارات
خانه ریو به دلیل ترکیب هوشمندانه طراحی مینیمال با مصالح طبیعی، در فهرست پروژههای منتخب معاصر شیلی قرار گرفته است.
پرسشهای متداول
۱. هدف اصلی طراحی خانه ریو چه بوده است؟
ایجاد ارتباطی طبیعی بین فضاهای داخلی و چشماندازهای بیرونی.
۲. چه مصالحی در ساخت این خانه استفاده شده است؟
ترکیبی از بتن، چوب و شیشه برای ایجاد تعادل بین سادگی و دوام.
۳. سبک معماری این پروژه چیست؟
معماری معاصر با الهام از اصول مینیمالیستی و طراحی پایدار.
۴. چه ویژگیای خانه ریو را از دیگر پروژهها متمایز میکند؟
توجه همزمان به نور، تهویه طبیعی و هماهنگی کامل با محیط اطراف.
۵. این خانه برای چه نوع کاربری طراحی شده است؟
خانهای مسکونی برای زندگی خانوادگی با تمرکز بر آرامش و پیوند با طبیعت.









معرفی پلتفرم ۲۳گانه
پلتفرم هوشمند ۲۳گانه، مرجع جامع مقررات ملی ساختمان ایران است که امکان جستجوی هوشمند در میان مباحث ۲۳گانه، آیین نامهها و نشریات عمرانی را فراهم میکند. مهندسان میتوانند تنها با وارد کردن چند واژه، به سرعت به تمام ضوابط مرتبط با طراحی، سازه و تاسیسات دسترسی پیدا کنند.

























