معماری ویلای 1800 متری لیما در دبی | آمیخته ای از معماری مدرن و سنتی امارات

ویلای لیما در دبی ترکیبی از معماری مدرن درآمیخته با سنت عمارات | همراه پلان ها
خانه «لیما ویلا» در شهر دُبی، اثری از دفتر LOCI Architecture + Design است که در سال ۲۰۱۸ با زیربنایی معادل حدود ۱۸۶۵ مترمربع تکمیل شده است. این پروژه با بازتعریف مفهوم «حیاط عربی سنتی» در بستر مدرن، فضایی خصوصی و در عین حال ارتباطدار با محیط شهری فراهم کرده است.
مشخصات پروژه
- معمار: دفتر LOCI Architecture + Design (با مدیریت Roger Doyle و Hamad Khoory)
- موقعیت: دُبی، امارات متحده عربی
- زیربنا: تقریباً ۱۸۶۵ مترمربع
- سال تکمیل: ۲۰۱۸
- کاربری: مسکونی خصوصی، ویلا
سبک معماری پروژه
این ویلا در چارچوب معماری معاصر با تأکید بر فرم بسته بهسمت خیابان و باز بهسمت حیاط مرکزی طراحی شده است. جدارههای بیرونی تا حدّ زیادی بستهاند، ولی بازشوهای بزرگ و شبکههای مشبّک (مشربیه) به کار گرفته شدهاند تا نور و سایه در فضاها بازی کنند. استفاده از عناصر معماری سنتی عربی مانند حیاط مرکزی و مشربیه با مصالح مدرن ترکیب شده تا ترکیبی از هویت محلی و فضای مدرن شکل گیرد.


مفاهیم طراحی پروژه
- حیاط مرکزی بهعنوان هسته پروژه عمل کرده است؛ باغ و استخر در این حیاط قرار گرفتهاند و فضاهای زندگی در طبقه همکف به آن متصل شدهاند.
- مشربیه (مَشَربیَة): این شبکههای فلزی یا آلومینیومی در جداره ویلا نقش کنترل نور، دید و حریم را دارند؛ از سوی دیگر سایهروشنهای چشمنواز ایجاد میکنند.
- اقلیم و بستر شهری: حجم بهگونهای طراحی شده که از روبهرو بسته باشد، با گیاهان تزئینی متراکم در قسمت خیابان، و بخش باز به سمت حیاط، تا حریم خصوصی حفظ شود و همراه با طبیعت تعامل داشته باشد.
ویژگیهای کلیدی پروژه
- تأکید بر حفظ حریم خصوصی در بافت شهری تراکم بالا، با استفاده از جدارههای بسته و حیاط داخلی.
- ترکیب نور طبیعی، سایه و ترازهای فضایی متفاوت که کیفیت فضایی غنی ایجاد کردهاند.
- متریال طبیعی مانند سنگ بومی، چوب و مشربیه فلزی که تجربه فضایی داخلی را گرم و معنادار کردهاند.
- طراحی لایهبندی شده: هم ساختمان و هم باغ بهعنوان عناصر اصلی در طراحی پروژه دیده شدهاند.
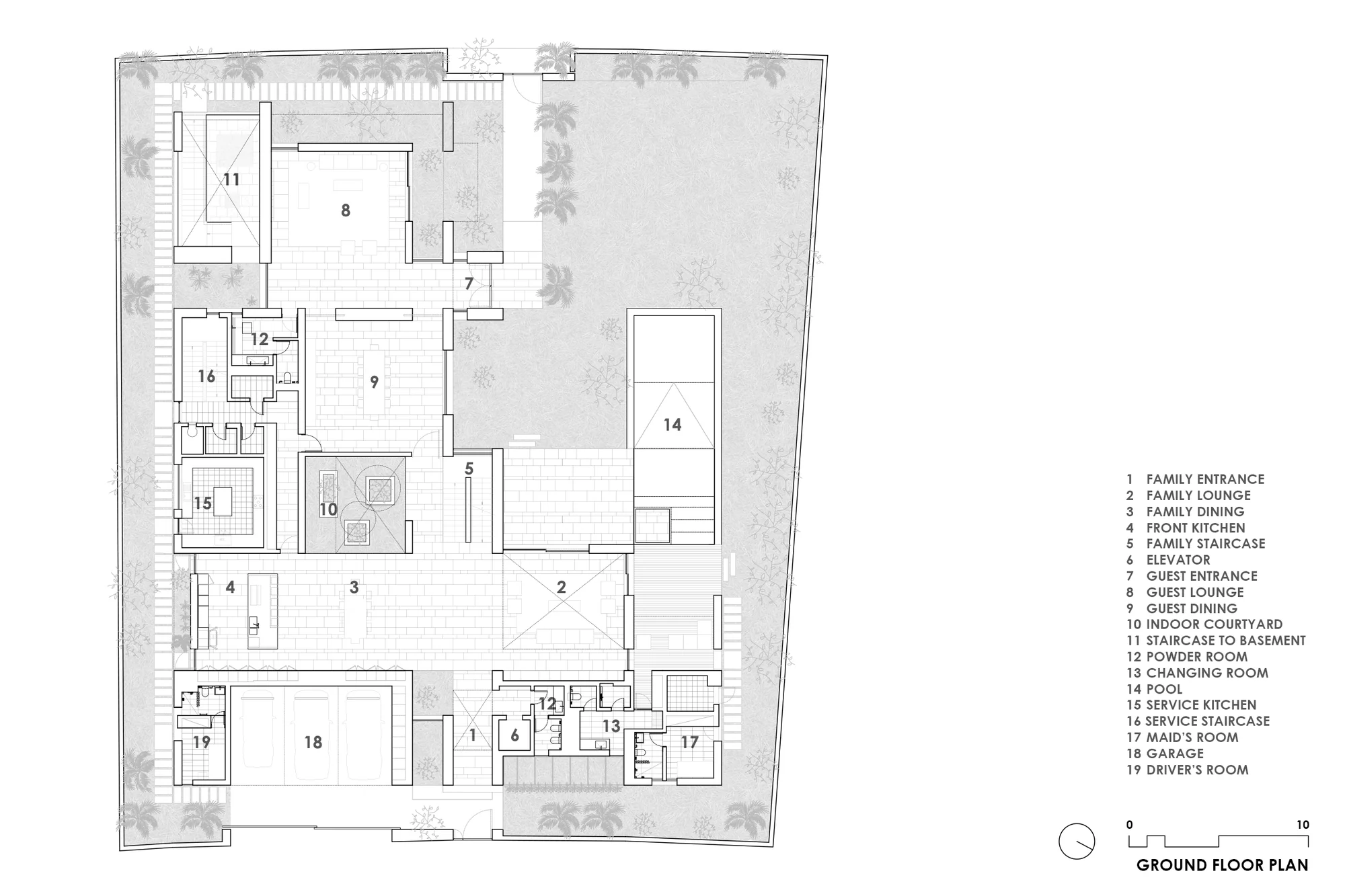
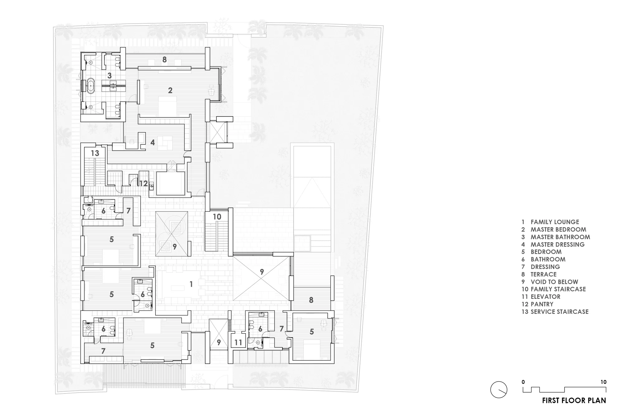
پلان معماری پروژه
در پلان پروژه، بخش همکف عمدتاً نشیمن، تراسها و باغ/استخر حیاط را دربرمیگیرد؛ طبقه اول شامل سربتها و بخش خصوصی است که به حیاط و نورگیر بالای سقف دید دارد. سطح زیرزمین یا بخش خدمات نیز بهصورت جمع شده طراحی شده تا فضای زندگی آزاد و مستقل بماند.




مصالح و متریال استفادهشده
- دیوارهای حجیم از سنگ محلی برای جداره بیرونی و تمایز با پسزمینه شهری.
- مشربیه فلزی یا آلومینیومی برای پوشش بازشوها و کنترل نور، دید و حریم.
- تراسها و فضاهای بیرونی با پوشش گیاهی و آب (استخر) برای ایجاد میکرواقلیم و آرامش فضایی.
- چوب طبیعی در بخش داخلی جهت ایجاد گرمای متریال و ارتباط با طبیعت.
بیوگرافی معمار پروژه
دفتر LOCI Architecture + Design با مدیریت Roger Doyle و Hamad Khoory فعال است. این دفتر معماری مستقر در امارات متحده عربی، پروژههایی در حوزه مسکونی و تجاری با تأکید بر معماری بومی، اقلیم و طراحی اختصاصی انجام میدهد. پروژه «لیما ویلا» نمونهای از ظرفیت این دفتر برای تلفیق فرم معاصر، هویت محلی و کیفیت فضایی بالا است.




پرسشهای متداول
۱. چرا حیاط مرکزی در این ویلا مهم است؟
زیرا در اقلیم دبی، ترکیب آب، باغ و سایه باعث کاهش دمای محیط داخلی میشود و ضمن ایجاد فضای آرام، حریم خصوصی را نیز تأمین میکند.
۲. مشربیه چه نقشی در طراحی برجسته کرده است؟
مشربیهها دید به بیرون را تسهیل میکنند ولی دید به داخل را کنترل میکنند؛ همچنین با بازی نور و سایه، کیفیت بصری نما و فضای داخلی را ارتقا میدهند.
۳. چگونه پروژه به اقلیم پاسخ داده است؟
حجم ساختمان بسته به سمت خیابان است، باغ و آب در حیاط قرار دارد، مشربیهها برای کنترل تابش طراحی شدهاند، و بازشوها به سمت فضای سبز باز شدهاند تا تهویه و نورگیری مناسب فراهم شود.
۴. متریالهای اصلی چه بودهاند؟
سنگ محلی، مشربیه فلزی یا آلومینیومی، چوب طبیعی، و آب و گیاه در فضای بیرونی، همگی برای خلق تجربه فضایی معنادار انتخاب شدهاند.
۵. این پروژه چه چشم اندازی برای معماری مسکونی ارائه میکند؟
ترکیبی از حیاط سنتی عربی با طراحی معاصر، که نشان میدهد چگونه میتوان در شهرهای پرورشیافتهٔ امروزی، حریم، آرامش و کیفیت فضایی را با معماری مدرن همسو کرد.
23Gane | سامانه مقررات ملی ساختمان ایران
سامانه مقررات ملی ساختمان، ابزار هوشمندی است که مهندسان و معماران ایرانی را قادر میسازد تا به مباحث مقررات ملی ساختمان و ضوابط «نظام مهندسی ساختمان» دسترسی یابند. با استفاده از این سامانه، در عرض چند ثانیه موضوع مورد نظر خود را بین تمام مباحث مقررات ملی ساختمان و نشریه های وزارت مسکن پیدا کنید.



















