بررسی طراحی ویلای مراکشی VOL005 با پلان های معماری | استدیو BO مراکش

ویلای مراکشی طراحی شده توسط استدیو معماری BO در مراکش
خانه VOL005 در حاشیه یک زمین گلف در شهر مراكش واقع شده و طراحی شده است تا بهعنوان حضوری آرام، پیوسته با زمین و در عین حال بیوزن، حسی از معنا و سکوت را منتقل کند. این پروژه توسط دفتر معماری Studio BO اجرا شده و با الهام از چشمانداز «اُکر» مراكش، از طریق مصالح بومی و نور طبیعى پیامی از نجابت خام را ارائه میدهد.
مشخصات پروژه
- معمار: دفتر معماری Studio BO
- موقعیت: مراكش، مراکش
- گستره زیربنا: ۶۳۷ متر مربع
- سال تکمیل: ۲۰۲۵
- زمین پروژه: حدود ۱۴۰۰ متر مربع
سبک معماری پروژه
ساختار پروژه در دو لایه طراحی شده است: طبقهٔ همکف با نمای آجری تِرَراکُتا که به زمین متصل است، و طبقهٔ فوقانی سبکتر، تقریباً در تعلیق، که فرمهای منحنی و زاویهدار را در خود جای داده است. این ترکیب، بازی میان سنگینی و سبکی، و میان فرم معماری و چشمانداز طبیعی را برجسته میکند.





مفاهیم طراحی پروژه
- ارتباط ساختاری با زمین از طریق بدنهٔ زیرین آجری و گفتوگو با بستر محیطی. طبقهٔ بالا با فرم معلق، به چشمانداز زمین گلف باز میشود.
- حفاظت و ایجاد حریم خصوصی: در جبههٔ خیابان، نما نسبتاً بسته و محافظتشده است، با لِـورهای نازک ترَراکُتایی که نور غربی را فیلتر کرده و دید مستقیم را محدود میکنند.
- تمرکز بر کیفیت فضای داخلی: پلانی جریانپذیر حول هستهٔ مرکزی، با پلهٔ مجسمهای و طراحی دقیق که حرکت در فضا را به تجربهای معنوی بدل میکند.
ویژگیهای کلیدی پروژه
- ترکیب حجمی دوگانه: زیرین سنگین با نمای آجری و بالایی معلق و باز.
- محور ورودی حساس و خاطرهانگیز میان دو دیوار منحنی که حس عبور را تقویت میکند.
- کاربرد مصالح محلی مانند زلیجه، تدلاک و سنگ تزا، و جزئیات دستی چون زنجیرهای باران و دستگیرههای سنگی، برای تلفیق معماری و هنر و دست.
- فضای طبقهٔ بالا به عنوان «محل مدیتیشن باز به آسمان» که ارتباط معنوی بین انسان، بنا و آسمان را معرفی میکند.




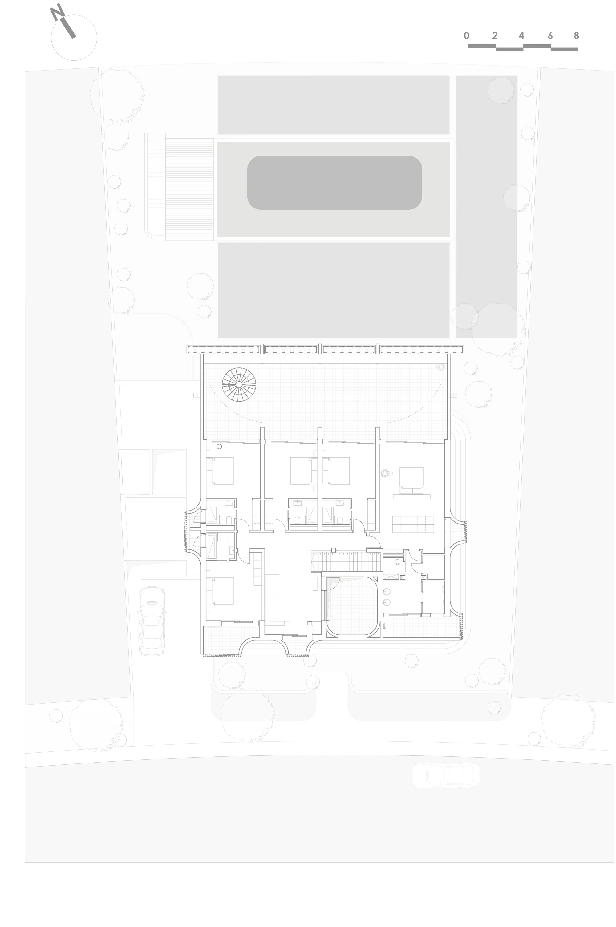
پلان معماری پروژه
در طبقهٔ همکف، سه فضای پیوسته (ناهارخوری، نشیمن، گوشهی شومینه) حول یک محوری طراحی شدهاند. در طبقهٔ بالا، فضای مدیتیشن به آسمان باز است و سوئیتهای خصوصی در شاخههایی حول آن جای گرفتهاند. در سراسر پروژه، دیدها به سمت فضای سبز بیرونی باز شدهاند و ارتباط درونی با بیرون حفظ شده است.
مصالح و متریال استفادهشده
- آجر ترّاکُتا برای نمای همکف و اتصال به زمین.
- سنگ «تزا»، زلیجه و تدلاک به عنوان متریالهای محلی برای سطوح داخلی و جزئیات.
- شیشههای فراوان در طبقهٔ بالا همراه با لِـورهای ترّاکُتایی برای کنترل نور غربی و حفظ حریم.
بیوگرافی معمار پروژه
دفتر معماری Studio BO فعال در مراکش، با تمرکز بر کاربری مسکونی با کیفیت بالا، هویت متریالی و پاسخگویی به زمینهٔ طبیعی، این پروژه را با رویکردی پویا و دقیق طراحی کرده است.










پرسشهای متداول
۱. چرا بدنهٔ همکف و طبقهٔ بالا اینگونه متفاوت طراحی شدهاند؟
برای ایجاد نقطهٔ تعامل با زمین در پایه و نقطهٔ رهایی و دید وسیع در طبقهٔ بالا، به عنوان تأکیدی بر دوگانگی معماری و مجموعه.
۲. چه راهکاری برای کنترل تابش نور غربی اتخاذ شده؟
نمای خیابان با پوشش لِـورهای ترّاکُتایی نازک فیلتر شده است تا نور مستقیم غربی کنترل شود و حریم خصوصی حفظ گردد.
۳. فضای مدیتیشن در طبقهٔ بالا چه نقشی دارد؟
این فضا نقطهای برای تفکر و انس با طبیعت و آسمان است؛ تجربهای از سکوت، نور و طبیعت در بطن خانه.
۴. چگونه ارتباط فضای داخلی با فضای بیرون شکل گرفته است؟
طبقهٔ بالا بازشده به چشمانداز زمین گلف، تراسها و حجم معلق، دید وسیع و ارتباط بصری قوی با محیط را فراهم کردهاند.
سامانه مقررات ملی ساختمان
سایت ۲۳گانه سامانه ای هوشمند است که دسترسی رایگان و سادهای به مباحث مقررات ملی ساختمان و ضوابط نظام مهندسی ساختمان فراهم نموده است. مهندسان و طراحان با این سامانه میتوانند ضوابط فنی و اجرایی را بهسرعت بررسی و در پروژههای خود بهکار ببرند.




























