صد طراحی برتر، ویلای هیکاری در اندونزی | طرح شماره 63

ویلای هیکاری همراه پلان معماری
مقدمه
خانه هیکاری به معنی «خانه نور» است؛ خانهای که در باندونگ اندونزی طراحی شده تا تعامل نور طبیعی و زمان را با معماری تجربه کرد. فضایی برای زندگی عمومی و خصوصی که در آن مرز داخل و خارج به نرمی کمرنگ میشود.
مشخصات پروژه
- معمار: دفتر Pranala Associates
- موقعیت: باندونگ، اندونزی
- زیربنا: حدود ۴۲۲ متر مربع
- سال تکمیل: ۲۰۱۷






سبک معماری پروژه
سبک معماری این خانه معاصر و گرم است؛ تلفیقی از مصالح خام و طبیعی که با اقلیم استوایی سازگارند. نماهایی با بتن نمایان، چوب اورلین و عناصر فولادی طراحی شده است تا هم حس استحکام داشته باشد و هم گرما و آرامش طبیعی را القا کند.
مفاهیم طراحی پروژه
این خانه با تاکید بر نحوه ورود نور طبیعی طراحی شده؛ طوری که نور روز در زمانهای مختلف سال تغییر میکند و فضاها را دگرگون میسازد. همچنین جریان هوا طوری طراحی شده که خانه «نفس بکشد»؛ آزاد شدن هواس از تراس و فضای زندگی به سمت سالن غذاخوری و باغ خشک داخلی.
ویژگیهای کلیدی پروژه
- ترکیب تراس خانه با فضای نشیمن طوری که مرز میان داخل و خارج کمرنگ شود.
- باغ کاکتوس مشاهدهشدنی از سالن غذاخوری، که عنصر طبیعت را به درون خانه میکشد.
- نما رو به غرب با ظاهری بسته برای حفظ حریم خصوصی و جلوگیری از تابش شدید آفتاب بعدازظهر.
- استفاده از مواد کمنگهداری؛ بتن خام، چوب اورلین و فولاد در نما و ساختار بیرونی.






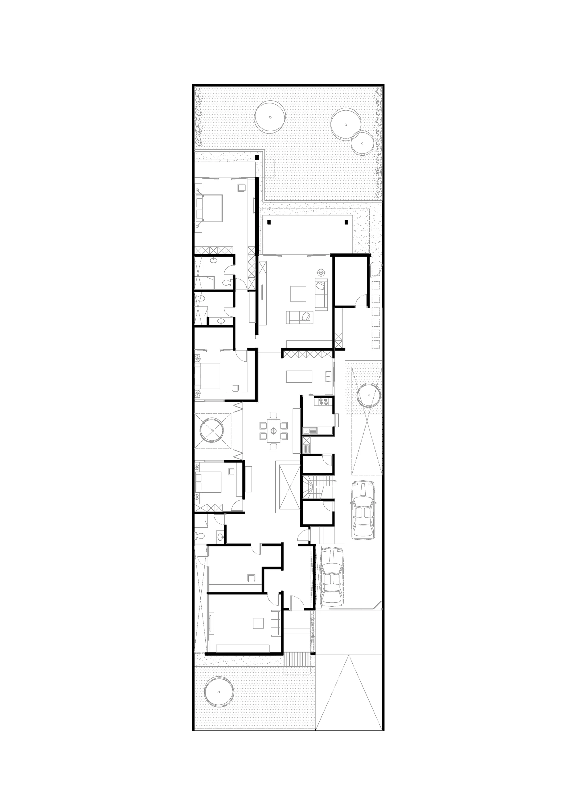
پلان معماری
پلان خانه به گونهای تنظیم شده که فضاهای عمومی و خصوصی با هم ارتباط متقابل داشته باشند؛ نشیمن در نزدیکی تراس و باغ خشک است تا وقتی جداسازی شیشه باز باشد فضا وسیع احساس شود. فضای خدماتی در موقعیتی مناسب قرار گرفتهاند تا از دید عمومی فاصله بگیرند.
مصالح و متریال استفادهشده
- بتن نمایان برای سازه و نما
- چوب اورلین برای نما و جزئیات بیرونی
- فولاد برای ریلها، حفاظ و جزئیات نما
- شیشه جداسازهای قابل باز شدن برای ترکیب فضاهای داخل و خارج و ایجاد فضای باز هنگام نیاز
جوایز و افتخارات
هیچ مدرک رسمی مبنی بر دریافت جایزه بینالمللی برجسته برای این پروژه در منابع موجود ذکر نشده است، ولی در میان پروژههای برجسته معماری استوایی مدرن شناخته شده است.









پرسشهای متداول
مساحت خانه هیکاری چقدر است؟
حدود ۴۲۲ متر مربع.
چگونه نور طبیعی در طول سال متغیر وارد خانه میشود؟
نور تابستان و فصل باران با زاویهها متفاوت آفتاب، از تراس، بازشوها و فضای داخلی باغ تأثیر میپذیرد و خانه را دگرگون میکند.
نمای غربی چه مزیتی دارد؟
برای حفظ حریم خصوصی و جلوگیری از تابش شدید آفتاب عصرگاهی، نمای غربی بستهتر طراحی شده است.
کدام مصالح فضای گرما و ظاهر طبیعی میآفرینند؟
چوب اورلین و بتن خام در نما، به همراه فولاد و شیشه که گرما و استحکام را تلفیق کردهاند.







موتور جستجوی هوشمند مقررات ملی ساختمان
برای بهرهمندی از ضوابط دقیق مقررات ملی ساختمان و اصول نظام مهندسی ساختمان در طراحی و اجرا، سامانه جستجوی هوشمند ۲۳گانه ابزار مؤثری است؛ همراهی که تضمین کننده طراحی امن، استاندارد و قانونی است.

![صد طراحی برتر، معماری برج سیتی لایف میلان [گرئه معماری زاها حدید] | طرح شماره 13](/_next/image/?url=https%3A%2F%2Fback-api.23gane.com%2Fstorage%2Fblogs%2F69183bfc534c4_15152.jpg&w=1920&q=75)







