صد طراحی برتر، ویلای کیت همراه پلان معماری | طرح شماره 61

ویلای مدرن کیت همراه پلان معماری
مقدمه
خانه کیت در حومه ملبورن طراحی شده تا حس زندگی اصیل را به خانهای از دهه شصت ببخشد؛ جایی که هر نگاه، هر اتاق و هر باغ، تجربهای آرامشبخش باشد و زندگی روزمره تبدیل به لحظهای لذتبخش گردد.
مشخصات پروژه
- معمار: دفتر Bower Architecture
- موقعیت: ملبورن، ایالت ویکتوریا، استرالیا
- زیربنا: حدود ۳۸۵ متر مربع
- سال تکمیل: ۲۰۱۵
سبک معماری پروژه
این خانه تلفیقی از معماری مدرن و بافت گذشته است؛ افزودهٔ تکطبقه به ساختمان دهه شصت، نمای آجری سنتی حفظ شده، ولی بخش جدید با استفاده از چوب، فولاد، بتن و پنجرههای بزرگ نور طبیعی را به داخل دعوت کرده است.
مفاهیم طراحی پروژه
- حفظ هویت محل و بخشهایی از خانهٔ موجود، همراه با الحاقی جدید که به صورت همدلانه و محجوبانه افزوده شده است؛
- جریان دید از فضای ورودی به حیاط مرکزی، تجربهای دعوتکننده از ورود تا سکوت درونی بوجود آورده است؛
- استفاده از جهت شرق-غرب برای تنظیم نور طبیعی و تهویهٔ میانفضایی؛ فضاهای سرگرمی و خانوادگی در مصنوعات نور متفاوت دیده شوند؛




ویژگیهای کلیدی پروژه
- افزوده شدن تکطبقهٔ جدید میان بخشهای قدیمی خانه و گاراژ؛ بدون افزایش ارتفاع کل خانه؛
- کارپورت مشبک جدید به ورودی افزوده شده که هم محافظ نماست و هم تجربهٔ ورود را نرمتر کرده است؛
- باغ مرکزی کوچک که میان بخشهای عمومی و خصوصی خانه تعریف شده و جریان فضاها را قابل لمس کرده است؛
- استفاده از یکنواختی مصالح خام مثل آجر سفید رنگ، چوب، فولاد و جزئیاتی از برنج برای ایجاد حس گرم و خام با کیفیت بالا؛
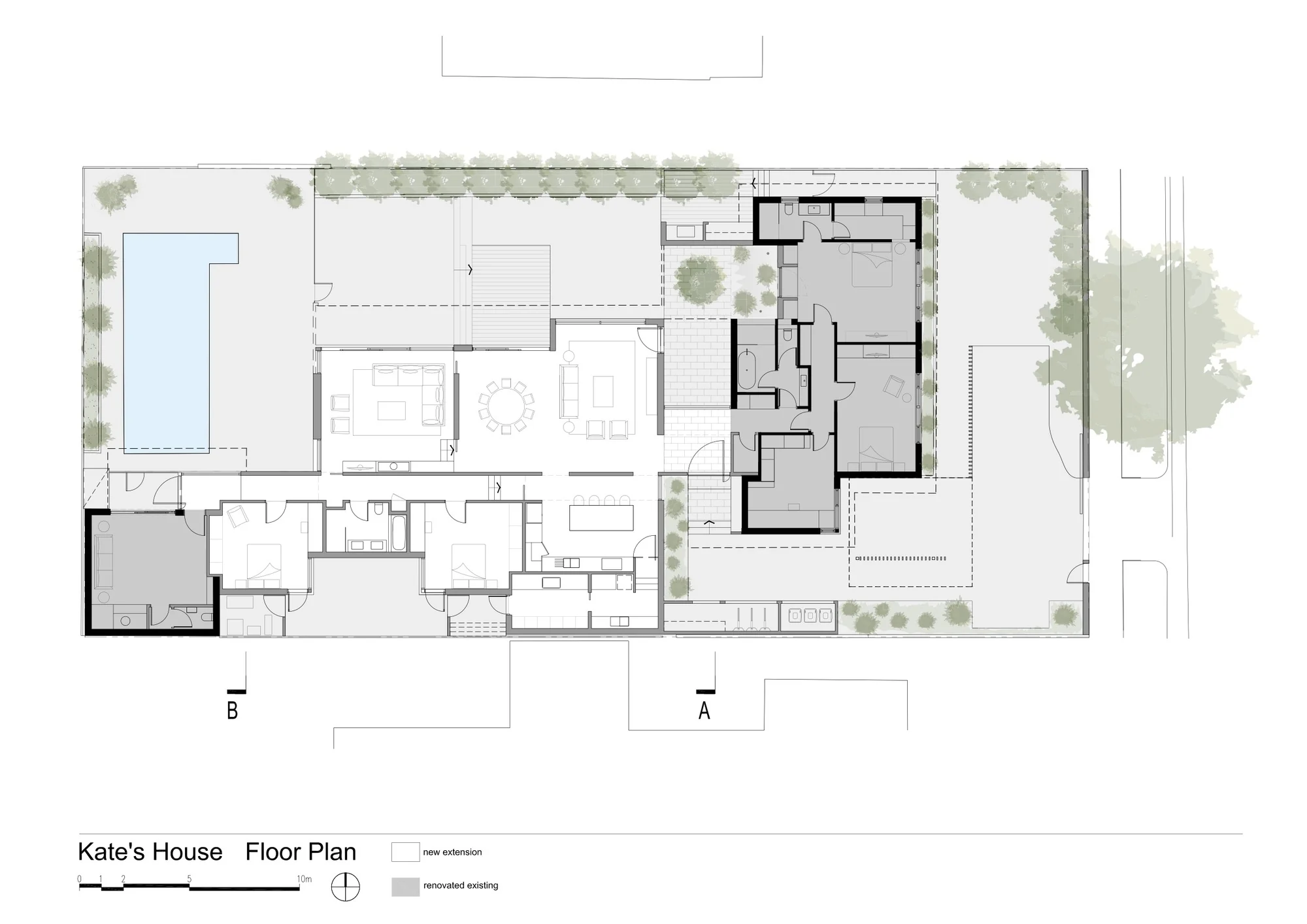
پلان معماری
پلان شامل ترکیب فضاهای خصوصی، خانوادگی و عمومی است که حول ورودی و باغ میانی سازماندهی شدهاند. بخش خوابها و اتاق کودکان در قسمت جلو بر خیابان قرار دارد، الحاق جدید در عقب گسترده شده و دسترسی به باغ و استخر از فضای خانوادگی امکانپذیر است. نور از شرق و غرب وارد بخشهای مختلف شده و دیدهای فیلتر شده با استفاده از دیوارهای جزئی کنترل شدهاند.








مصالح و متریال
- آجر رنگشده («bagged brick») برای دیوارهایی با بافت ملموس؛
- چوب بهصورت سازهای و تزئینی در بخش جدید؛ جزئیات ظریف فولادی و پوشش برنج در دستگیرهها و لولاها؛
- بتن برای ساختار پایه و بخشهایی از الحاق جدید؛
جوایز و افتخارات
- نامزد جایزه «معماری ایالت ویکتوریا» در بخش خانهها، تغییرات و الحاقات؛
- نامزد جایزه طراحی داخلی استرالیا در بخش طراحی مسکونی؛
- نامزد جوایز مختلف معماری محلی برای کیفیت مصالح و هماهنگی با سایت؛
پرسشهای متداول
مساحت خانه کیت چقدر است؟
حدود ۳۸۵ متر مربع.
چرا ارتفاع دوم ساخته نشده؟
به دستور مشتری و معمار، تصمیم گرفته شده بود که با حفظ ارتفاع و مقیاس محل، الحاقی تک طبقه اضافه شود تا ارتباط با بافت و میراث خانهٔ دهه شصت حفظ گردد.
باغ مرکزی چه تأثیری بر تجربهٔ فضا داشته؟
باغ مرکزی مثل نقطهای آرام میان فضاهای عمومی و خصوصی است؛ دیدها را تقسیم میکند، نور طبیعی را دعوت میکند و حیاط خلوتی برای خانواده فراهم میآورد.
مصالح بهکار رفته چه حس و تأثیری دارند؟
آجر خام و رنگشده حس گرما و اصالت دارد؛ چوب و فولاد همراه با جزئیات برنج، لمس دستی و کیفیت بصری را افزایش میدهند. بتن به بخشهای ساختاری استحکام میبخشد.


معرفی موتور جستجوی هوشمند مقررات ملی ساختمان
برای دسترسی سریع و کامل به ضوابط مقررات ملی ساختمان و مفاد نظام مهندسی ساختمان در طراحی و اجرا، سامانه جستجوی هوشمند ۲۳گانه بهترین ابزار است؛ ابزاری که کمک میکند پروژهها مطابق قانون و استاندارد پیش روند.









