معماری پروژه ویلا و نیم در طرقبه | آرشیتکت : گروه معماران WHY

پروژه ویلای و نیم واقع در طرقبه، اثر دفتر معماری WHY Architects میباشد که در سال ۲۰۲۴ با زیربنای تقریبی ۵۲۰ مترمربع تکمیل شده است.
این خانه با هدف پاسخ به نیازهای یک خانواده چهارنفره و همچنین یک واحد اضافی (برای فرزند تازه فارغ التحصیل شده که به کار و زندگی ترکیبی میپردازد) طراحی شده است.
مشخصات پروژه
- معمار: WHY Architects
- موقعیت: طرقبه، حومهٔ مشهد، ایران
- زیربنا: ۵۲۰ مترمربع
- سال تکمیل: ۲۰۲۴
- کاربری: مسکونی خصوصی، با قابلیت جدا شدن واحد دوم


ویژگیهای کلیدی پروژه
- ترکیب سه سطح (زیرزمین یا سرویسها، همکف عمومی، طبقهٔ خصوصی و واحد دوم) که در شیب زمین طراحی شده اند.
- حیاط مرکزی که محور حرکت، دید و نورگیری شده و شاخص فضایی پروژه است.
- انعطاف پذیری بالا: دو واحد امکان ادغام یا تفکیک دارند با حفظ استقلال نسبی.
- متریال محلی، رنگهای آرام، بافت با زمین و چشمانداز هماهنگ شدهاند.
پلتفرم 23Gane | سامانه مقررات ملی ساختمان
سامانه مقررات ملی ساختمان، پلتفرمی هوشمند و رایگان برای مهندسان و معماران ایرانی است که امکان جستجوی سریع و کاربردی در مباحث مقررات ملی ساختمان و ضوابط نظام مهندسی ساختمان را فراهم میکند.

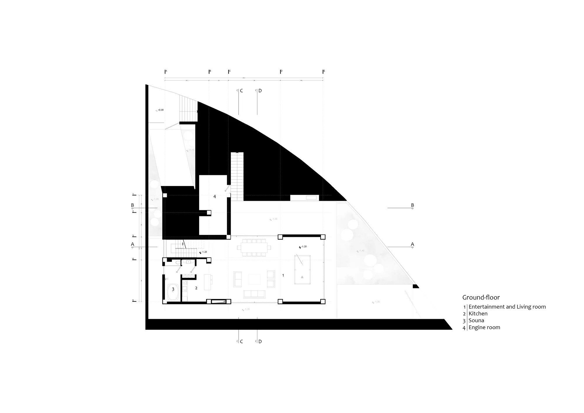
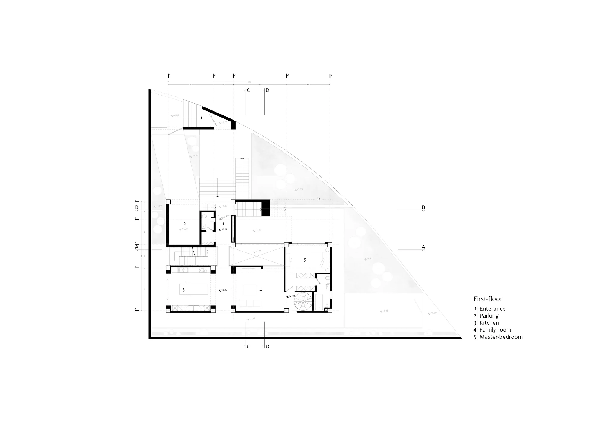
پلان معماری
پلان ساختمان در سه سطح تنظیم شده است؛ واحد اصلی در دو سطح اول، واحد مستقل در سطح بالا با دسترسی جداگانه. حیاط طبقه دوم بهعنوان رابط میان دو واحد طراحی شده است. شیب زمین با طراحی پلهها، تراسها و بازشوها مهار شده تا حرکت طبیعی و ارتباط بصری را بهبود بخشد. (بر اساس دیاگرام پروژه)
مصالح و متریال استفاده شده
- نمای بیرونی با سنگ یا متریال بومی روشن که متناسب با دامنه و زمینهٔ کوهستانی انتخاب شدهاند.
- داخل ساختمان با استفاده از سطوح صاف و رنگهای آرام طراحی شدهاست تا تمرکز بر فضای زندگی و حیاط باشد.
- همانند تصاویر، تراسها و راه پله های بیرونی نقش مهمی دارند و با طراحی ساده ولی دقیق، کیفیت فضایی را ارتقاء دادهاند.
- توجه به نور طبیعی، بازشوهای راهباز، و استفاده از کف پوش با سطح بازتابکننده برای تقویت کیفیت محیطی.
بیوگرافی معمار پروژه
دفتر معماری WHY Architects مستقر در مشهد، ایرانی است و پروژههایی در حوزهٔ مسکونی با تمرکز بر اقلیم محلی، شرایط بستر و نیازهای خانوادگی طراحی میکند. ویلای و نیم یکی از آثار شاخص این دفتر است که نشان از رویکرد آنها به تعادل میان معماری مدرن و بستر محلی دارد.




سبک معماری پروژه
این ویلا را میتوان در چارچوب معماری معاصر ارزیابی کرد اما با نگارشی که به بافت کوه پایهای و خلوت منطقه پاسخ میدهد. حجم ساختمان با حساسیت نسبت به شیب زمین طراحی شده و از منظر بصری و محیطی، خود را در دامنه جای داده است تا از برجستگی و نشستن در پهنه کوهستانی جلوگیری شود.
مفاهیم طراحی پروژه
- تفکیک دو واحد مسکونی (واحد اصلی خانواده + واحد فرزند) که از طریق حیاط دوم در طبقهٔ دوم و راهپلهٔ بیرونی مستقل به هم متصل شدهاند؛ ایدهٔ «خانهای و نیم» (Villa & a Half) در این معناست.
- ارتقاء مفهوم حیاط در معماری ایرانی، با پیچاندن و بالا بردن عنصر حیاط به فرم نرمتر و مدرن تر جهت تعامل بیشتر میان فضای درون و بیرون.
- انتخاب متریال محلی و درونگرایی نسبت به چشم انداز، بهجای فرم های برجشده که غالباً در تپه های مسکونی دیده میشوند؛ پروژه تلاش کرده است بدون آسیب زدن به محیط، خود را با بستر طبیعی پیوند دهد.
















.پرسشهای متداول
۱. چرا نام «ویلا و نیم» انتخاب شده است؟
به دلیل نیاز به دو واحد مسکونی که یکی برای خانواده اصلی و دیگری برای فرزند مستقل است؛ بنابراین واحد دوم «نیمه» یا وابسته ولی مستقل است.
۲. چگونه ارتباط درون و برون در ویلا مدیریت شده؟
با طراحی حیاط طبقه دوم، بازشوهای هوشمند، تراسها و توجه ویژه به چشمانداز و حیاط، سازهٔ معماری این ارتباط را تقویت کرده است.
۳. چرا شیب زمین مهم بود؟
پروژه در دامنهٔ تپه واقع شده و با طراحی پلهها، تراسها و جداسازی سطوح، تلاش شده است تا اثر منفی چشماندازِ شیب بر کیفیت فضای زندگی کاهش یابد.
۴. واحد مستقل چگونه عمل میکند؟
واحد دوم دارای ورودی مستقل از راهپلهٔ بیرونی است اما میتواند با واحد اصلی ارتباط داشته باشد؛ این انعطاف پذیری یکی از ویژگیهای ممتاز پروژه است.
۵. نکته برجسته معماری چیست؟
تلاش برای ایجاد خانهای متناسب با نیازهای خانوادگی امروز، در بستر طبیعی و با احترام به اقلیم و بستر، به همراه انعطافپذیری فضایی و کیفیت طراحی.









