صد طراحی برتر، پیرز وِیو اثر دیگری از زاها حدید آرشیتکتس | طرح شماره 57

پیرز وِیو اثر دیگری از زاها حدید آرشیتکتس
مقدمه
پیرز وِیو در مونپِلیه فرانسه نمونهای شاخص از تلفیق عملکرد عمومی با طراحی جسورانه است. این ساختمان خانه سه نهاد مهم فرهنگی، ورزشی و اطلاعرسانی است و تلاش کرده است تا هم هویت شهری را تقویت کند و هم تجربه فضا را به کلی متفاوت سازد.
مشخصات پروژه
- موقعیت: مونپِلیه، منطقه اوِرول، فرانسه
- معمار: زاها حدید آرشیتکتس
- کاربری: آرشیو، کتابخانه چندرسانهای و دفتر اداره ورزش منطقه
- زیربنا: حدود ۲۶٬۰۰۰ متر مربع مفید در پنج طبقه
- سال تکمیل: ۲۰۱۲




سبک معماری پروژه
معماری پیرز وِیو سبک معاصر دارد با فرمهایی سیال و حجمهایی که تداعی چوب افقی ریختهشده یا تنه افقی درخت را دارند. نماها ترکیبی از اجزای بتونی پیشساخته، شیشه و پروفیل فلزی با رنگهای طلایی و خاکستری هستند؛ فینهای عمودی طلایی علاوه بر جلوه بصری، نقش کنترل تابش آفتاب را ایفا میکنند.
مفاهیم طراحی پروژه
- یکی از مفاهیم اصلی، خلق نمادی است برای «درخت دانش»: تنه اصلی بنا محل آرشیو است، بخش میانی کتابخانهای سبکتر و بخش انتهایی که شاخهها نمای دفاتر و اداره ورزش را دارد، دارای نورگیری فراوان است.
- تقسیم خطی میان فضاهای خدماتی و فضاهای عمومی برقرار شده است: مسیر ورود، لابی اصلی، سالن نمایش، اتاق گفتگو همگی در ورودی قرار دارند تا دسترسی آسان برای مخاطب فراهم شود.
- توجه به سازگاری اقلیمی: استفاده از شیشههای بزرگ همراه با فینهای طلایی جهت کنترل تابش، همچنین فرم انحناها و سقف شیبدار برای مدیریت نور و تهویه طبیعی.





ویژگیهای کلیدی پروژه
- ابعاد بزرگ: درازا نزدیک به ۲۰۰ متر، پهنا حدود ۴۶ متر و ارتفاع حدود ۲۵ متر
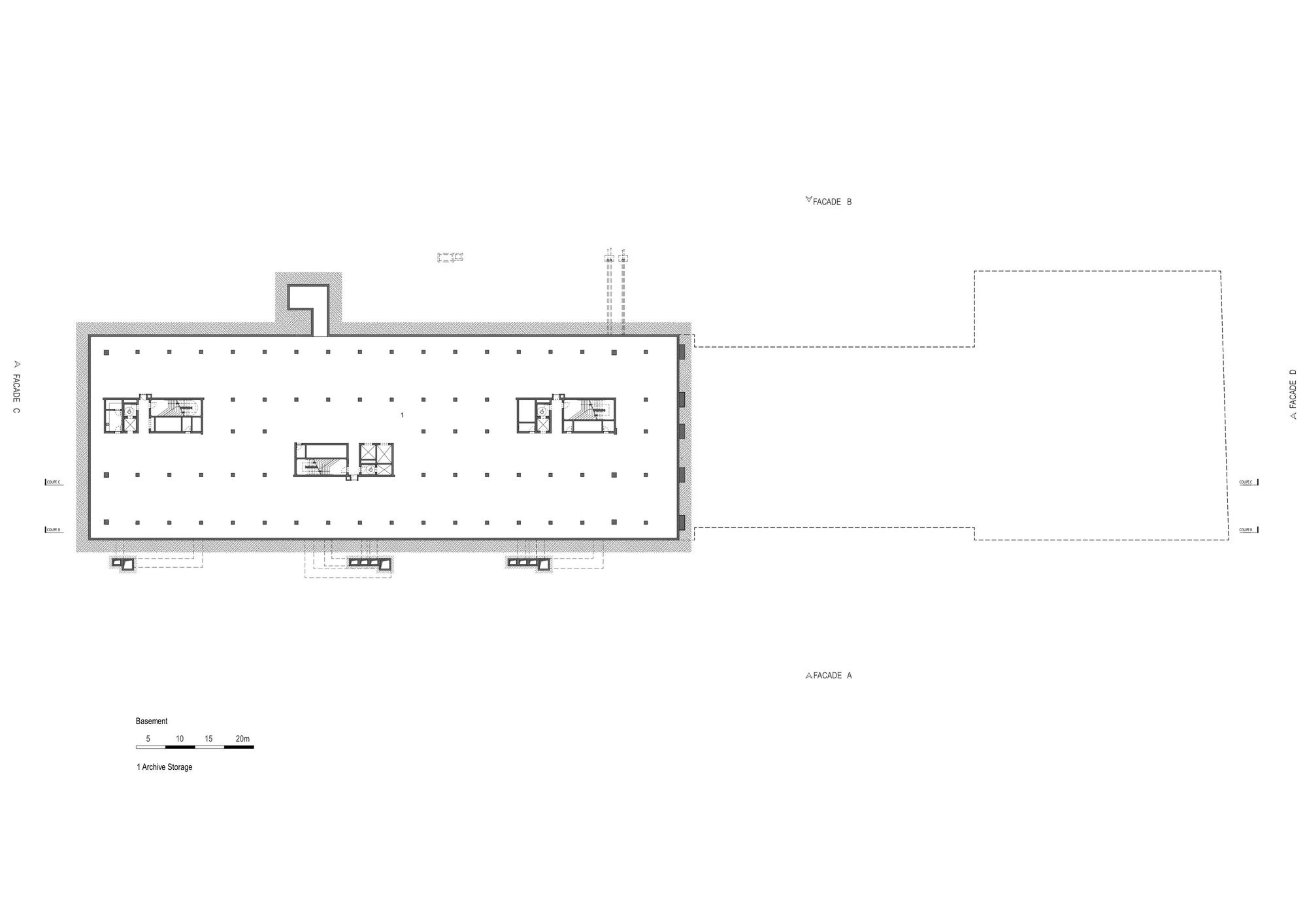
- حجم قابل توجه آرشیو با شرایط کنترل حرارت و رطوبت برای نگهداری اسناد حساس
- استفاده از بتن پیشساخته بیش از هزار قطعه با انواع اشکال مختلف برای نما
- سطوح شیشهای فراوان برای دیدن بیرون و دعوت دید بصری به فضای شهری
- آمفیتئاتر با ظرفیت حدود ۲۰۰ نفر همراه سقفی پردهدار برای ورودی و فضای عمومی مشترک
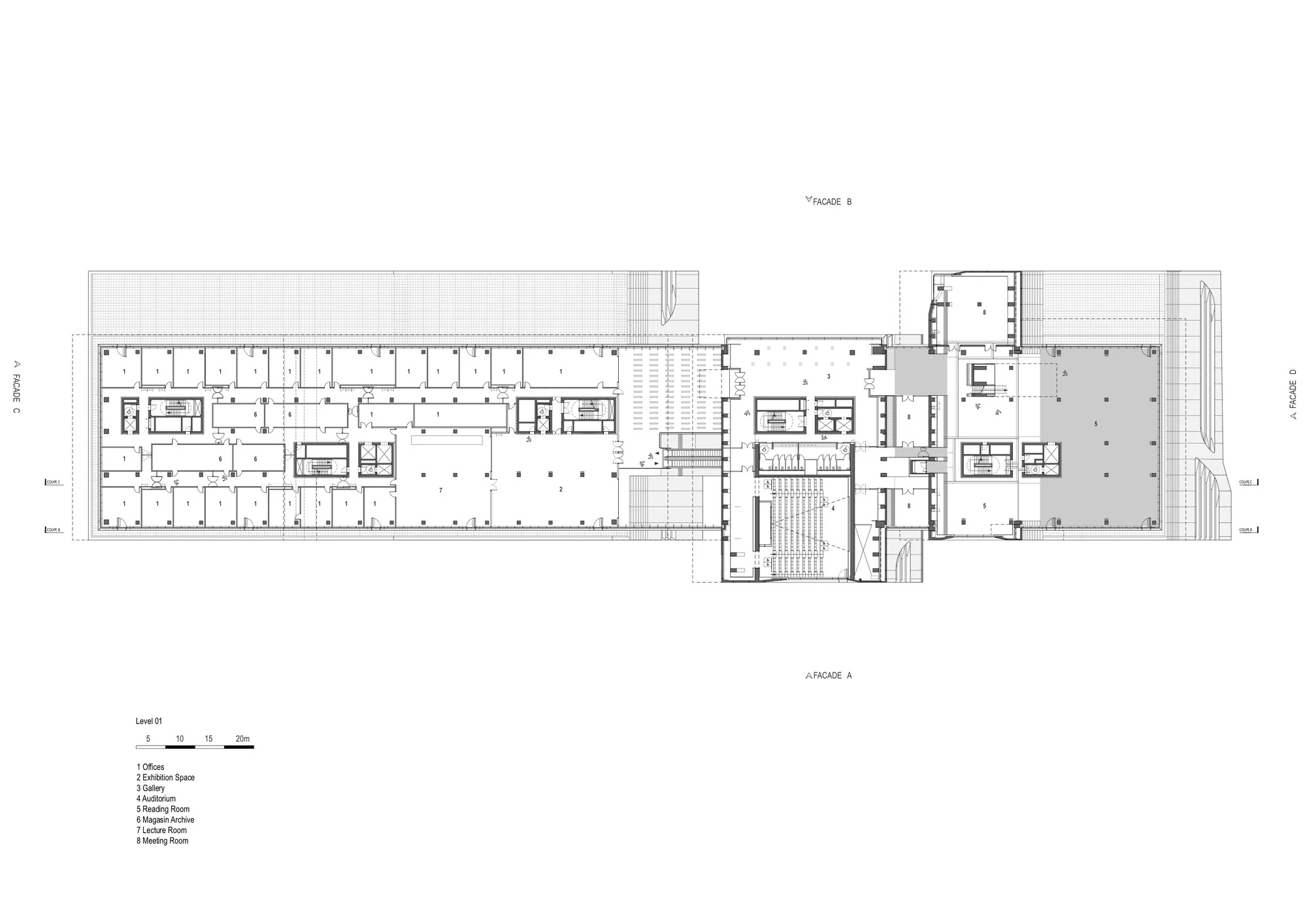
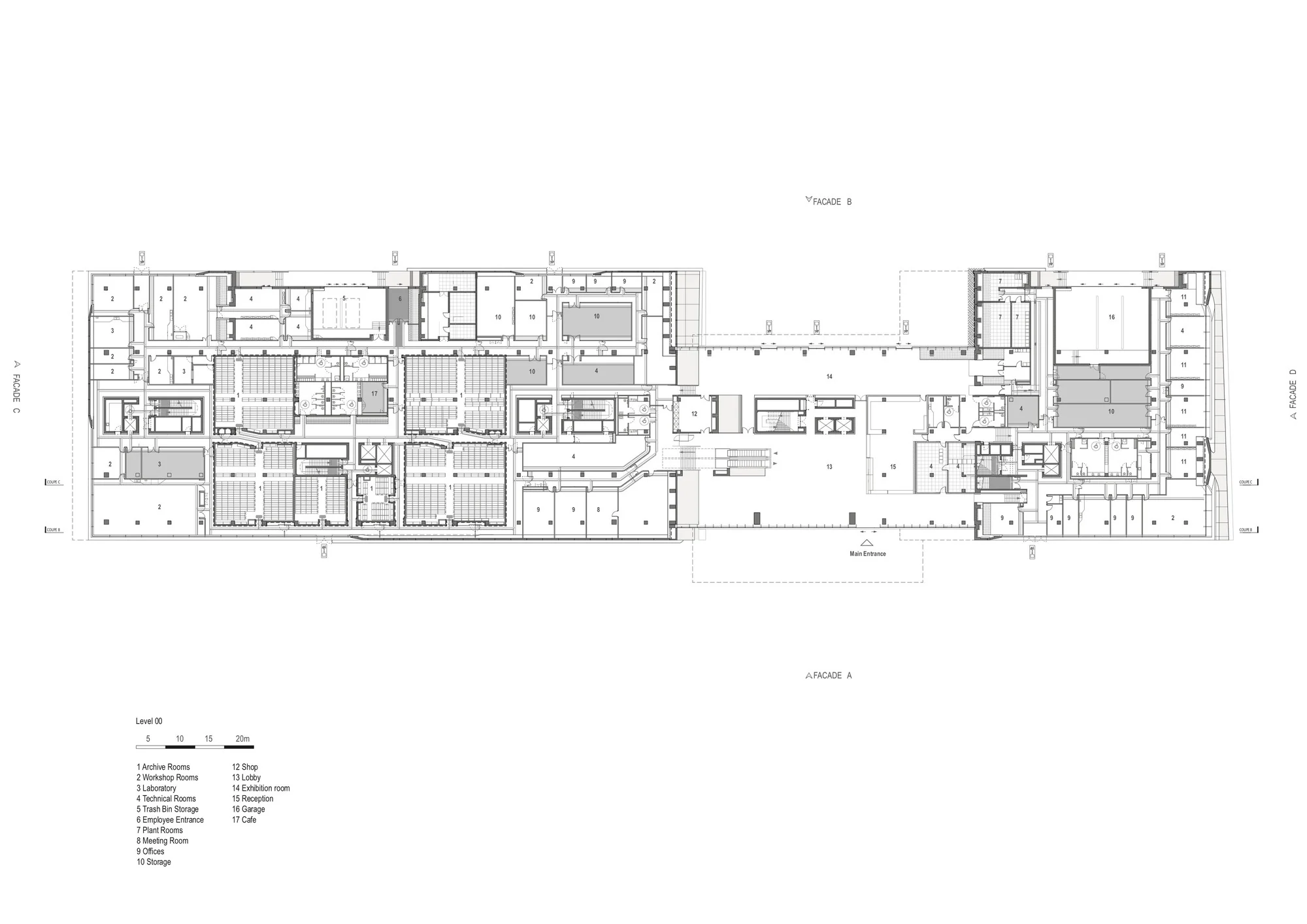
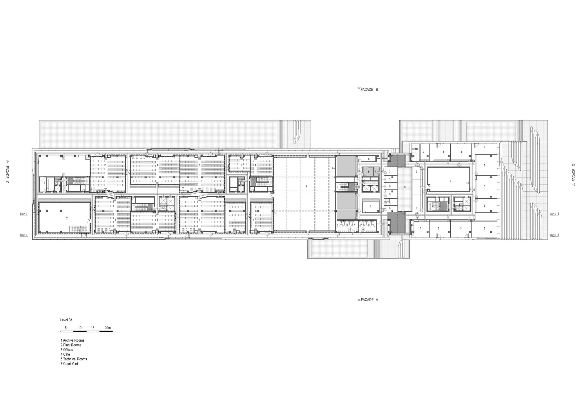
پلان معماری
پلان پیرز وِیو در پنج طبقه سازماندهی شده است؛ طبقه همکف برای عملکرد عمومی شامل لابی، سالن نمایش، فضاهای تعامل اجتماعی و دسترسی به کتابخانه و آرشیو است. طبقات بالاتر محل خوانش آرشیو و کتابخانه چندرسانهای است. فضای ورزشی و دفاتر در بخش هایی که «شاخه» نامیده شدهاند جای گرفتهاند تا نورگیری مناسب داشته باشند و دید به محیط اطراف را حفظ کنند. جریان حرکت بازدیدکننده در مسیر خطی از ورودی به فضای نمایش و سپس به طبقات خوانش ادامه دارد.





مصالح و متریال استفاده شده
- بتن پیشساخته برای نما و بخش بزرگی از سازه اصلی؛ بیش از هزار قطعه بتونی با اشکال مختلف در نما به کار رفته است.
- شیشه های بزرگ و فینهای آلومینیومی رنگ طلایی و خاکستری برای نما و پنجرهها جهت کنترل نور و زیبایی بصری.
- اسکلت فولادی برای بخش هایی با دهانه بزرگ و پلکان و بام معلق، همراه با تقویت سازهای برای بار آرشیو سنگین.
- عایق حرارتی و صوتی دقیق در بخش آرشیو به منظور حفظ شرایط محیطی مناسب برای اسناد تاریخی.
جوایز و افتخارات
پیرز وِیو توجه معماران و شهروندان را به خود جلب کرده است به عنوان پروژهای که معماری را وارد زندگی شهری کرده نه فقط به عنوان سازه بلکه به عنوان نمادی از دانش، جمع و اجتماع. در مباحث معماری عمومی فرانسه و جوامع حرفهای مورد تحسین بوده است.
پرسشهای متداول
مساحت آرشیو و حجم ذخیره اسناد در پروژه چقدر است؟
بخش آرشیو با حدود ۹٬۵۰۰ متر مربع فضا، امکان ذخیره حدود ۶۰ کیلومتر رکوردهای آرشیوی دارد.
نمای بتنی پیشساخته چه ویژگیهایی دارد؟
نمای بتنی پیشساخته با بیش از هزار قطعه مختلف، ضخامت های متفاوت و اشکال خمیده که زاویه برخی نماها تا ۳۶ درجه است، تولید شده است.
چگونه تابش نور کنترل شده است؟
با استفاده از فینهای طلایی عمودی، شیشههای بزرگ همراه با پوشش محافظ و زاویهدار شدن نماهای خاص که اجازه عبور مستقیم خورشید را کم می کند.
این اثر چه ارتباطی با مخاطب عمومی برقرار می کند؟
فضاهای عمومی گسترده شامل لابی، سالن نمایش، فضاهای خوانش و کتابخانه چندرسانهای باعث شده بنایی باز برای عموم باشد؛ نه صرفاً یک ساختمان اداری بسته.
















معرفی پلتفرم هوشمند مقررات ملی ساختمان
در پروژه های معماری در ایران، ضروری است ضوابط قانونی به شکلی دقیق رعایت شوند. استفاده از پلتفرم هوشمند مقررات ملی ساختمان که جستجوی هوشمند مباحث 23گانه مقررات ملی ساختمان را فراهم می سازد، به معماران و مهندسان کمک می کند تا مطابق با مقررات ملی ساختمان و الزامات نظام مهندسی ساختمان پیش روند؛ ابزاری کارآمد برای تضمین کیفیت، ایمنی و انطباق قانونی پروژه ها.









